NewConstruction Rammetillatelse Enebolig

Ny enebolig med garasje i Paul Holmsens vei 73, Fredrikstad

📍 Paul Holmsens vei 73 , 1613 FREDRIKSTAD

Nøkkelinfo

Sakstype
Nybygg
Bygningstype
Enebolig
Bruksareal
122 m²
Boenheter
1
Kommune
Fredrikstad
Fylke
Østfold
Gnr / Bnr
210 / 1603
Saksnummer
2026/3800
Fase
Rammetillatelse

Om byggesaken

Ny enebolig på ett plan med livsløpsstandard oppføres på samme tomt som eksisterende bolig i Paul Holmsens vei 73. Boligen har et bruksareal (BRA) på 121,8 m² og et bebygd areal (BYA) på 142 m², med en veranda på 23 m² som delvis regnes med i BYA. I tillegg bygges en frittstående garasje med saltak på 50 m² BYA og 30,8 m² BRA. Boligen har en funksjonell planløsning med 4 rom, inkludert kjøkken, stue, kontor, to soverom, bad, vaskerom og garderobe. Garasjen har saltak og er i tre. Terrengtilpasningen er gjort for å minimere visuell påvirkning, med veranda valgt fremfor støttemur. Tomten er på 623,5 m² med en utnyttelsesgrad på ca. 35 %. Det er planlagt parkering for to biler i garasjen og tilfredsstillende uteoppholdsareal. Vann- og avløpsarbeider er prosjektert i henhold til kommunale krav. Tiltaket har fått tillatelse og er under behandling for videre gjennomføring.

Produkter og materialer

Tømrer Tømrerarbeid bolig og garasje

🧱 Tre

Tømrerarbeid for bolig og garasje, inkludert kledning, tak og innvendige konstruksjoner

Tømrerarbeid for ny bolig og garasje

Maling Utvendig og innvendig maling

Maling av trepanel utvendig og innvendige overflater

Maling og overflatebehandling

Garasjeport Garasjeport i tre/metall

Antall: 1

Garasjeport til frittstående garasje med saltak

Garasjeport for biloppstilling

Elektro Ventilasjon

Ventilasjonsanlegg med kanalføringer og innregulering

Ventilasjonsanlegg for bolig

Fasade Trepanel

🧱 Tre

Utvendig kledning i tre på bolig og garasje

Trepanel som fasadekledning

Bad Våtromsinnredning

Bad med membran, støp og flisearbeider

Fullt utstyrt bad med membran og fliser

Terrasse Veranda

🧱 Tre

Veranda på 23 m² som delvis regnes med i BYA, tilpasset kupert terreng

Terrasse/veranda som uteoppholdsareal

Gulv Parkett og fliser

🧱 Eikeparkett og fliser

Eikeparkett i oppholdsrom, fliser i våtrom

Innvendige gulvflater med parkett og fliser

Dører Ytterdør

🧱 tre med glassfelt

Antall: 2

Ytterdører i bolig, inkludert inngangsdør og dør til veranda

Isolerte ytterdører med glassfelt

VVS Vann- og avløpsledninger utvendig

Nye stikkledninger for vann og avløp, omlegging til nabo Kreftings vei 16A

Vann- og avløpsledninger i grunnen, frostfri dybde og isolasjon ved behov

Mur Grunnmur

🧱 Betong

Grunnmur i betong med radonsperre

Betongmur med radonbeskyttelse

Grunnarbeid Terrengarbeid og drenering

Terrengtilpasning med minimal inngrep, drenering og overvannshåndtering på egen tomt

Grunnarbeider og drenering i henhold til kommunale krav

Dører Garasjeport

🧱 tre eller metall

Antall: 1

Garasjeport til frittstående garasje med saltak

Isolert garasjeport med manuell eller elektrisk åpning

VVS Sanitæranlegg

Innvendig vann- og avløpsinstallasjoner, inkludert bad, vaskerom og kjøkken

Sanitærinstallasjoner i bolig

Tak Saltak

🧱 Takstein eller metall

Antall: 2

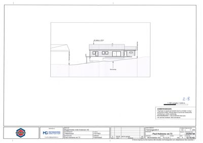
Saltak på bolig og garasje, gesimshøyde ca 3,1 m, mønehøyde ca 4,3 m

Taktekking med saltak på bolig og garasje

Trapper Innvendig trapp

🧱 tre

Antall: 1

Innvendig trapp i bolig, enkel trapp til etasje

Innvendig trapp i bolig for etasjeadkomst

Vinduer Fasadevindu

🧱 tre/aluminium

Antall: 6

Vinduer i kjøkken, stue, kontor og soverom, 3-lags energiglass

Fasadevindu til bolig med god isolasjonsevne

Plantegning

Enebolig 121.8 m²

Etasje 1 121.8 m²

Rom Areal Vinduer Dører
Entre 101 4.9 m² 0 2
WC 102 1.6 m² 0 1
Kjøkken 103 13.5 m² 1 1
Stue 104 31.3 m² 1 1
Gang 105 15.6 m² 0 2
Kontor 106 7.1 m² 1 1
Sov 107 7.8 m² 1 1
Sov 108 11.9 m² 1 1
Gard 109 7.4 m² 0 1
Bad 110 7.6 m² 0 1
Vask./Tekn. 111 6.5 m² 0 1

Fasader

Garasje

Ukjent
Materiale
Tre
Taktype
Pulttak
Vinduer
1
Dører
1
Synlige etasjer
1
1
Taktype
Saltak
Høyde
3.1 m
Mønehøyde
4.3 m
Vinduer
0
Dører
1
Synlige etasjer
1
2
Taktype
Saltak
Høyde
3.1 m
Mønehøyde
4.3 m
Vinduer
0
Dører
0
Synlige etasjer
1
3
Taktype
Saltak
Høyde
3.1 m
Mønehøyde
4.3 m
Vinduer
0
Dører
1
Synlige etasjer
1
4
Taktype
Saltak
Høyde
3.1 m
Mønehøyde
4.3 m
Vinduer
0
Dører
0
Synlige etasjer
1
Øst
Taktype
Flatt tak
Vinduer
2
Dører
0
Synlige etasjer
1
Vest
Materiale
Tre
Taktype
Saltak
Høyde
3.1 m
Mønehøyde
4.3 m
Vinduer
0
Dører
1
Synlige etasjer
1
Sør
Materiale
Tre
Taktype
Saltak
Høyde
3.1 m
Mønehøyde
4.3 m
Vinduer
0
Dører
1
Synlige etasjer
1
Nord
Materiale
Tre
Taktype
Saltak
Vinduer
0
Dører
1
Balkonger
1
Synlige etasjer
1

Hendelser

14.04.2026 Paul Holmsens Vei 73 - Eiendom 210/1603 - Riving av eksisterende bolig - Oppføring av ny bolig med tilhørende garasje - Uttalelse Teknisk forvaltning - Kommunalteknikk
16.03.2026 Tilleggsopplysninger - Paul Holmsens vei 73
16.03.2026 Tilleggsdokumentasjon - Paul Holmsens vei 73
10.03.2026 Tillatelse - Riving og oppføring av ny bolig med tilhørende garasje - Paul Holmsens vei 73 - Eiendom 210/1603
05.03.2026 Tilleggsopplysninger - Paul Holmsens vei 73
23.02.2026 Tilleggsopplysninger - Paul Holmsens vei 73
23.02.2026 Ber om flere opplysninger- Paul Holmsens vei 73
23.02.2026 Tilbakemelding på mottatte tilleggsopplysninger - Paul Holmsens vei 73
23.02.2026 Svar - Paul Holmsens vei 73
20.02.2026 Sak til uttalelse
17.02.2026 Bekreftelse på mottatt søknad - Ett-trinns søknad - Riving av eksisterende bolig o- Oppføring av ny bolig med tilhørende garasje - Paul Holmsens Vei 73 - Eiendom 210/1603
03.02.2026 Ett-trinns søknad - Paul Holmsens Vei 73 - Eiendom 210/1603 - Riving av eksisterende bolig - Oppføring av ny bolig med tilhørende garasje