NewConstruction Ferdigattest Enebolig

Ny enebolig med garasje i Pjåkaveien 2A, Tyristrand

📍 Pjåkaveien 2A , 3533 TYRISTRAND

Nøkkelinfo

Sakstype
Nybygg
Bygningstype
Enebolig
Bruksareal
224 m²
Boenheter
1
Kommune
Ringerike
Fylke
Buskerud
Gnr / Bnr
251 / 127
Saksnummer
2022/13532
Fase
Ferdigattest

Om byggesaken

Ny enebolig i to etasjer med integrert garasje på eiendommen Pjåkaveien 2A i Tyristrand. Boligen har et bebygd areal på ca. 171,2 m² og en total bruksareal på 223,5 m² inkludert garasje på 47,5 m². Bygget har saltak med gesimshøyde på 6,5 meter og mønehøyde på 8,2 meter, og er oppført i trekonstruksjon med trepanel på fasadene. Planløsningen inkluderer flere soverom, bad, teknisk rom, bod, stue og kjøkken, samt en terrasse på 56,3 m². Bygget er plassert i tråd med reguleringsplan og kommuneplan, med dokumentert sikkerhet mot skred og flom. Det er tilknytning til offentlig vann og avløp via private ledninger, og det er gjennomført nødvendig ansvarsrett og kontroll. Midlertidig brukstillatelse og ferdigattest er gitt.

Produkter og materialer

Dører Ytterdører og garasjeport

🧱 Tre

Antall: 9

Ytterdører og garasjeport i tre, inkludert inngangsdører og dør til garasje

Pipe Pipe

🧱 Mur

Antall: 1

Pipe tilknyttet peis/ovn i bolig

Pipe for ildsted i bolig

Vinduer Fasadevindu

🧱 Tre

Antall: 14

Fasadevinduer i tre, fordelt på begge etasjer

Vinduer Takvindu

🧱 Tre

Antall: 0

Ingen takvinduer oppgitt

Garasjeport Garasjeport

🧱 Tre

Antall: 1

Garasjeport i tre på fasade øst

Garasjeport til integrert garasje

Varmepumpe Luft-til-luft varmepumpe

Antall: 1

Energiforsyning med luft-til-luft varmepumpe

Varmepumpe for oppvarming av bolig

VVS Vann og avløp

Antall: 1

Tilknytning til Tyristrand Vannverk og Skjærdalen Eiendoms private avløpsledning

Vann- og avløpsinstallasjoner med godkjent tilknytning til offentlig og privat nett

Gulv Vannbåren gulvvarme

Antall: 1

Vannbåren gulvvarme installert i boligen

Varmefordeling via vannbåren gulvvarme

Tømrer Trekonstruksjoner

🧱 Tre

Antall: 1

Utførelse av tømrerarbeider og trekonstruksjoner av RingeriksHus AS

Tømrerarbeid for bolig og garasje

VVS Sanitær og varmeinstallasjoner

Antall: 1

Innvendig sanitær- og varmeinstallasjoner utført av Fossum og Sandum AS

Sanitær- og varmeinstallasjoner i bolig

Elektro Ventilasjon

Antall: 1

Ventilasjonsanlegg detaljprosjektert av Flexit/Villavent

Ventilasjonsanlegg for bolig

Terrasse Terrasse

🧱 Tre

Antall: 1

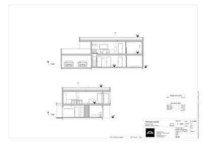
Terrasse på 56,3 m² i 2. etasje

Utendørs terrasse i 2. etasje

Grunnarbeid Sprengsteinsfylling på fast fjell

Antall: 1

Bygget står på sprengsteinsfylling oppå fast fjell, dokumentert med bilder

Grunnarbeid med sprengsteinsfylling på fast fjell for stabil grunn

Tak Saltak

🧱 Tre med taktekking

Antall: 1

Saltak med gesimshøyde 6,5 m og mønehøyde 8,2 m

Saltak med flatt takkonstruksjon i trekonstruksjon

Fasade Trepanel

🧱 Tre

Antall: 1

Trepanel på alle fasader

Trepanel som fasademateriale på alle sider av bygget

Betong Fundament og grunnmur

🧱 Betong

Antall: 1

Fundamentering på sprengsteinsfylling og fast fjell

Betongfundament og grunnmur for bolig og garasje

Plantegning

Enebolig 319.3 m²

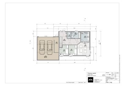
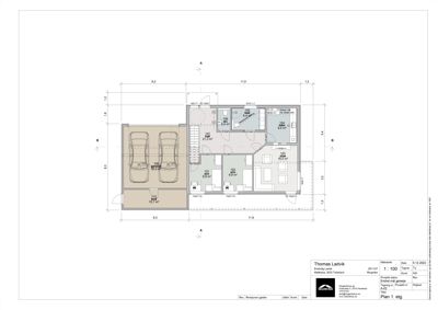
Etasje 1 146.6 m²

Rom Areal Vinduer Dører
SOV 101 9.8 m² 1 1
SOV 102 9.9 m² 1 1
stue 103 18.0 m² 1 1
tekn 104 9.4 m² 0 1
bad 105 6.4 m² 0 1
wc 106 2.4 m² 0 1
gang 107 21.3 m² 0 3
bod 108 7.7 m² 0 1
garasje 109 48.5 m² 0 1
bod 113 10.7 m² 0 1

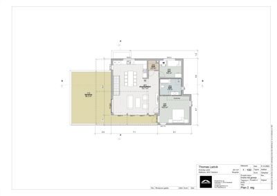
Etasje 2 172.7 m²

Rom Areal Vinduer Dører
Stue/kjøkken 201 52.1 m² 3 2
Bod 202 2.2 m² 0 1
Sov 203 8.6 m² 1 1
Bad 204 7.9 m² 0 1
Sov 205 18.5 m² 1 1
Terrasse 112 56.3 m² 0 0

Fasader

Enebolig

Nord
Materiale
Tre
Taktype
Saltak
Høyde
6.5 m
Mønehøyde
8.2 m
Vinduer
5
Dører
1
Balkonger
1
Synlige etasjer
2
Sør
Materiale
Tre
Taktype
Saltak
Høyde
6.5 m
Mønehøyde
8.2 m
Vinduer
2
Dører
1
Synlige etasjer
2
Vest
Materiale
Tre
Taktype
Saltak
Høyde
6.5 m
Mønehøyde
8.2 m
Vinduer
3
Dører
1
Synlige etasjer
2
Øst
Materiale
Tre
Taktype
Saltak
Høyde
6.5 m
Mønehøyde
8.2 m
Vinduer
2
Dører
2
Synlige etasjer
2

Hendelser

16.04.2026 Ferdigattest - Bygging av enebolig med garasje
10.04.2026 Søknad om ferdigattest
31.05.2024 Midlertidig brukstillatelse - tiltak med ansvarsrett - Gnr/bnr 251/127 - Pjåkaveien 2A - Enebolig med garasje
29.05.2024 Søknad om midlertidig brukstillatelse
04.09.2023 Svar innsyn i byggesak
31.05.2023 Innsyn i byggesak
14.03.2023 Tilbakemelding fra nabo
31.01.2023 Tilbakemelding på henvendelse
30.01.2023 Tilbakemelding angående klage - bygging av enebolig og garasje - Pjåkaveien - gnr/bnr 251/127
27.01.2023 Tilbakemelding fra nabo angående klage på sak 867/22
13.01.2023 Til orientering - varsel om oppstart av arbeider før søknad
13.01.2023 Tilbakemelding angående varsel om oppstart av byggearbeider før søknad
06.01.2023 Tilbakemelding angående trukket klage på sak 867/22
04.01.2023 Tilbakemelding angående klage på sak 867/22
20.12.2022 Tillatelse til tiltak - Gnr/bnr 251/127 - Pjåkaveien - Bygging av enebolig med garasje
14.12.2022 Tilleggsdokumentasjon
08.12.2022 Tilbakemelding om mangler - Gnr/bnr 251/127 - Pjåkaveien - Bygging av enebolig og garasje
05.12.2022 Søknad om bygging av enebolig og garasje