NewConstruction Rammetillatelse Enebolig

Ny enebolig med garasje i Plankedalsveien 73, Asker

📍 Plankedalsveien 73 , 1389 HEGGEDAL

Nøkkelinfo

Sakstype
Nybygg
Bygningstype
Enebolig
Bruksareal
191 m²
Boenheter
1
Kommune
Asker
Fylke
Akershus
Gnr / Bnr
212 / 314
Saksnummer
24/4341
Fase
Rammetillatelse

Om byggesaken

Ny enebolig på ca. 190,6 m² BRA med to etasjer og mønehøyde på ca. 8,6 meter, oppført på eiendom i Plankedalsveien 73, Asker. Boligen har flere soverom, bad, vaskerom, kjøkken, stue og gangarealer, samt en balkong på 8,6 m². Det oppføres også en frittliggende garasje på ca. 49,9 m² med valmtak og tegl takmateriale, samt en bod på 48,4 m². Bygget ligger i et flomutsatt område og sikres med terrengheving til kote 167,30 og en flomvoll opp til kote 167,45. Det er gjennomført miljøkartlegging med fokus på kantvegetasjon og fremmede arter, og tiltak for revegetering og flomsikring er planlagt. Vann- og avløpsanlegg tilknyttes offentlig nett med nødvendige godkjenninger og rettigheter. Prosjektet har fått dispensasjon fra krav om bebyggelsesplan og er i fase rammetillatelse med tillatelse til tiltak i ett trinn.

Produkter og materialer

Fasade Tre kledning

🧱 Tre

Antall: 1

Tre kledning på garasje og bolig

Fasade kledning for bolig og garasje

Vinduer Fasadevindu

🧱 Tre/aluminium

Antall: 14

Flere vinduer med ulike størrelser, inkludert Pihla UO122 9x21, A-5.6x12, F4-6x16, F4-8x16, A-9x12, A-9x11, med 3-lags energiglass antatt

Fasadevinduer til enebolig i ulike rom som stue, soverom og kjøkken

Annet Fjerning av fremmede arter

Bekjempelse av fremmede arter som gravmyrt, rødhyll og vinterkarse i anleggsfasen for å hindre spredning

Miljøtiltak for å hindre spredning av fremmede arter

Tømrer Bygging av trekonstruksjoner

🧱 Tre

Montering av trekonstruksjoner for bolig, garasje og bod

Tømrerarbeid for bolig og tilhørende bygg

Dører Ytterdører og balkongdører

🧱 Tre/aluminium

Antall: 12

Ytterdører og balkongdører i tre/aluminium, inkludert inngangsdører og dører til balkong og uteareal

Ytterdører og balkongdører til enebolig

Miljø Revegetering kantvegetasjon

🧱 Løvtrær og busker (Salix myrsinifolia, Salix pentandra, Salix lapponum, Alnus incana, Salix caprea, Prunus padus)

Revegetering av kantvegetasjon langs Plankedalsbekken for å sikre habitat og biologisk mangfold

Miljøtiltak for kantvegetasjon og bekkeøkologi

Tak Valmtak

🧱 Tegl takstein

Antall: 1

Valmtak med tegl takstein på garasje og enebolig

Taktekking for bolig og garasje

Grunnarbeid Terrengjustering og flomsikring

🧱 Massedeponering, jord, tetteduk

Terrengheving til kote 167,30 og flomvoll opp til kote 167,45 for flomsikring i henhold til flomvurdering

Grunnarbeid for flomsikring av bolig og uteområder

Garasjeport Port til garasje

Antall: 1

Garasjeport på garasje med valmtak

Garasjeport for biladkomst

VVS Vann- og avløpsinstallasjon

Tilknytning til offentlig vann- og avløpsnett, inkl. tilbakeslagsventil, vannmåler, overvannshåndtering med virvelkammer og sandfang, samt krav til sikring mot forurensning

VVS-installasjoner for bolig og tilknytning til kommunalt nett

Betong Fundament og grunnmur

🧱 Betong

Fundamentering og betongkonstruksjoner for bolig og garasje

Betongarbeid for fundament og bærende konstruksjoner

Trapper Innvendig trapp

🧱 Tre/stål

Antall: 1

Innvendig trapp mellom etasjer i enebolig

Innvendig trapp for adkomst mellom etasjer

Plantegning

Enebolig 190.6 m²

Etasje 1 190.6 m²

Rom Areal Vinduer Dører
Stue 3696 37.6 m² 1 2
Soverom 1 3173 12.9 m² 1 2
Soverom 2 3117 15.9 m² 1 2
Kjøkken 3196 24.2 m² 1 1
Oppvaskrom 4500 33.1 m² 0 1
Vaskerom 4399 8.3 m² 0 1
Bad 1890 9.9 m² 0 1
Toalett 1899 4.3 m² 0 1
Walk-in closet 3173 2.5 m² 0 1
Gang 4723 25.9 m² 0 4
Inngang 533 5.6 m² 0 1
Sovestue 3699 15.9 m² 1 1
Kjøkken 3697 24.2 m² 0 1
Spisestue 3698 33.1 m² 0 1
Gang 3700 25.9 m² 0 4
Entré 3701 5.6 m² 0 2
Vaskerom 3702 8.3 m² 0 1
Toalett 3703 4.4 m² 0 1
Bad 3704 10.0 m² 0 1
Sovestue 2 3705 12.9 m² 1 1
Walk-in closet 3706 2.5 m² 0 1
Garderobesrom 3198 2.5 m² 0 1
Baderom 3133 9.9 m² 0 2
Toalett 3111 4.3 m² 0 1
Gang 3190 25.9 m² 0 4
Soverom 3149 14.9 m² 1 2
Skap 4501 33.1 m² 0 1
Gang 3134 2.5 m² 0 1
Toalett 3189 4.3 m² 0 1
Gang 3191 25.9 m² 0 4
Soverom 3192 14.0 m² 1 2
Kjokken 3193 24.2 m² 1 2
Overbyggt uteareal 3194 15.8 m² 1 1
Bod 3195 8.3 m² 0 1
Gang 3695 25.9 m² 0 4
Entré 3694 5.6 m² 0 1
Vaskerom 3693 8.3 m² 0 1
Toalett 3692 4.4 m² 0 1
Bad 3691 10.0 m² 0 1
Sovestue 2 3690 12.9 m² 1 1
Walk-in closet 3689 2.5 m² 0 1
Stue 101 34.0 m² 2 2
Soverom 5 102 16.9 m² 1 1
Soverom 4 103 16.9 m² 1 1
Soverom 2 104 18.8 m² 1 1
Soverom 3 105 14.9 m² 1 1
Baderom 2 106 7.1 m² 0 1
Toalett 107 3.2 m² 0 1
Balkong 108 8.6 m² 0 1
Bedroom 2 4899 18.8 m² 0 1
Bedroom 4 4198 16.9 m² 0 1
Salon Salon 34.0 m² 2 2
Balcony Balcony 8.6 m² 0 1
Bathroom 2 Bathroom 2 7.1 m² 0 1
Toilet Toilet 3.2 m² 0 1
Soverom 5 Bedroom 5 13.4 m² 2 1
Soverom 2 Bedroom 2 14.6 m² 2 1
Soverom 4 Bedroom 4 13.8 m² 2 1
Bad 2 Bath 2 5.3 m² 0 1
Toalett 2 Toilet 2 2.5 m² 0 1
Soverom 3 Bedroom 3 12.4 m² 2 1
Salon 5798 34.0 m² 2 2
Bathroom 2 2977 7.1 m² 0 1
Toilet 1575 3.2 m² 0 1

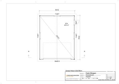
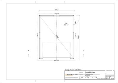
Garasje 49.9 m²

Etasje 1 49.9 m²

Rom Areal Vinduer Dører
Garasje 10121 49.9 m² 0 0
Garasje 101 49.9 m² 0 0

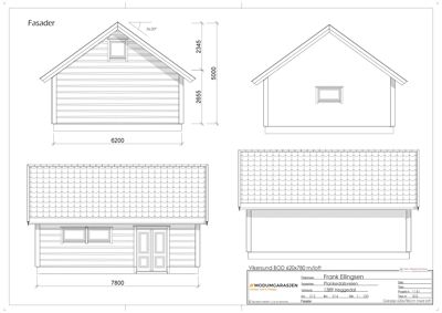
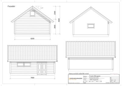
Fasader

Garasje

Vest
Materiale
Tre
Taktype
Valmtak
Takmat.
Tegl
Høyde
3.9 m
Mønehøyde
5.0 m
Vinduer
0
Dører
0
Synlige etasjer
1
Sør
Materiale
Tre
Taktype
Valmtak
Takmat.
Tegl
Høyde
3.9 m
Mønehøyde
5.0 m
Vinduer
1
Dører
1
Synlige etasjer
1
Nord
Materiale
Tre
Taktype
Valmtak
Takmat.
Tegl
Høyde
3.9 m
Mønehøyde
5.0 m
Vinduer
1
Dører
0
Synlige etasjer
1
Øst
Materiale
Tre
Taktype
Valmtak
Takmat.
Tegl
Høyde
3.9 m
Vinduer
1
Dører
1
Synlige etasjer
1

Hendelser

08.04.2026 212/314 Plankedalsveien 73 - Statsforvalterens vedtak i klagesak - opprettholder kommunens vedtak av 011225 klage
15.01.2026 212/314 Plankedalsveien 73 - Oversendelse av klagesak - klage på vedtak om dekning av saksomkostninger etter fvl § 36 klage
23.12.2025 212/314 Plankedalsveien 73 - Klage på vedtak om sakskostnader klage
02.12.2025 212/314 Plankedalsveien 73 - Dekning av sakskostnader
02.12.2025 212/314 Plankedalsveien 73 - Tillatelse til tiltak i ett trinn for nybygg enebolig med innvilget dispensasjon byggetillatelse
01.12.2025 212/314 Plankedalsveien 73 - Vedr. krav om dekning av sakskostnader
26.11.2025 212/314 Plankedalsveien 73 - Krav om dekning av sakskostnader etter medhold i klage klage
24.11.2025 212/314 Plankedalsveien 73 - Svar på brev av 051125 - Dekning av sakskostnader etter medhold i klage klage
06.11.2025 212/314 Plankedalsveien 73 - Vedr. Krav om sakskostnader etter medhold i klage klage
06.11.2025 212/314 Plankedalsveien 73 - Supplering av søknad søknad
05.11.2025 212/314 Plankedalsveien 73 - Ufullstendig søknad II søknad
04.11.2025 212/314 Plankedalsveien 73 - Krav om dekning av sakskostnader etter medhold i klage klage
23.10.2025 212/314 Plankedalsveien 73 Klage tas til følge. Vedtak oppheves klage
09.09.2025 212/314 Plankedalsveien 73 - Tilbakemelding på saksbehandling
08.09.2025 212/314 Plankedalsveien 73 Kvittering for mottatt klage klage
09.08.2025 212/314 Plankedalsveien 73 - Klage på vedtak klage
21.07.2025 212/314 Plankedalsveien - Avslag på søknad om tiltak i ett trinn for nybygg enebolig avslag
22.06.2025 212/314 Plankedalsveien - Klage på lang saksbehandlingstid og bytte av saksbehandlere klage
19.06.2025 212/314 Plankedalsveien - Svar - Etterlyser tilbakemelding
02.05.2025 212/314 Plankedalsveien - Etterlyser tilbakemelding
02.04.2025 212/314 Plankedalsveien - Gjennomføringsplan
01.04.2025 212/314 Plankedalsveien - Supplering av søknad søknad
20.03.2025 212/314 Plankedalsveien - Kommentarer til saksbehandlingen
12.03.2025 212/314 Plankedalsveien - Svar på e-post sendt 07.03.25
07.03.2025 212/314 Plankedalsveien - Ufullstendig søknad søknad
28.12.2024 212/314 Plankedalsveien - Svar på spørsmål om saksbehandlingstid
10.12.2024 212/314 Plankedalsveien - Søknad om nybygg enebolig søknad