NewConstruction Ferdigattest Enebolig

Ny enebolig med garasje og terrengarbeider i Rådyrsvingen 16, Drammen

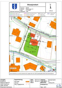
📍 Rådyrsvingen 16 , 3032 DRAMMEN

Nøkkelinfo

Sakstype
Nybygg
Bygningstype
Enebolig
Bruksareal
205 m²
Boenheter
1
Kommune
Drammen
Fylke
Buskerud
Gnr / Bnr
65 / 249
Saksnummer
21/14993
Fase
Ferdigattest

Om byggesaken

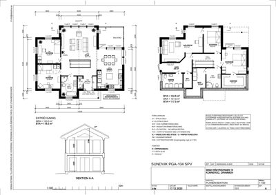
Ny enebolig på 205 m² BRA med sokkeletasje og én etasje over, oppført i tre med saltak tekket med teglstein. Boligen har 4 soverom, bad, vaskerom, kjellerstue, kjøkken og stue med store vindusflater for godt lysinnslipp. Det er etablert en dobbelgarasje på 48 m² med bod. Tomten er terrassert med støttemurer av betong og stablestein, trapper og terrengjusteringer som tilpasser bygget til det skrånende terrenget. Overvann håndteres lokalt, og bygget er tilknyttet offentlig vann- og avløpsnett. Det er gjennomført dispensasjoner for plassering av garasje og terrengfyllinger utenfor regulerte byggegrenser. Bygget er ferdigstilt og det foreligger ferdigattest.

Arbeidsomfang

- Endret løsning for terrengjusteringer og støemurer på ubebygde deler av eiendommen. - Oppføring av støemurer av betong inn mot boligens grunnmur mot øst og vest. - Flytting av eksisterende stablesteinsmur på nordøstre del slik at den ligger på grensen mellom eiendom 16 og 18 for bedre arealutnyttelse. - Etablering av fylling på nordøstre del for å skape parkerings- og snuplass. - Oppføring av ny stablesteinsmur som avgrenser fyllingen mot øst. - Etablering av skråning og trapp mellom tomtas øvre del (nord) og nedre del (sør) for å gi gangadkomst mellom inngangsetasje og underetasje.

Produkter og materialer

Fasade Kledning

🧱 Stående trepanel

Stående trepanelkledning på bolig

Fasade med stående trepanelkledning

Pipe Pipe og ildsted

Antall: 1

Montering av pipe og ildsted i bolig

Pipe og ildsted for bolig

Trapper Innvendig trapp

🧱 Tre

Antall: 1

Trapp mellom to nivåer i bolig, tilpasset terreng

Innvendig trapp i bolig mellom sokkeletasje og hovedetasje

Elektro El-installasjoner

El-installasjoner i bolig, inkludert el-kabler og el-skap

Elektriske installasjoner i bolig

Terrasse Balkong/altan

🧱 Tre

Antall: 1

Balkong/altan på bolig, tilpasset regulerte byggegrenser

Utendørs balkong/altan for bolig

VVS Vann- og avløpsledninger

Legging av vann- og avløpsledninger utenfor byggverket, tilkobling til offentlig nett

Vann- og avløpsinstallasjoner utvendig

Tak Saltak

🧱 Teglstein

Antall: 1

Saltak tekket med teglstein, mønehøyde ca 6.6-8.6 m

Saltak med teglstein på bolig

VVS Sanitærinstallasjoner

Prosjektering og montering av sanitærutstyr og rørsystemer, inkludert vannbåren varme

Sanitærinstallasjoner i bolig

Garasjeport Dobbel garasjeport

Antall: 1

Dobbelgarasje med port, tilpasset 2 biloppstillingsplasser

Garasjeport for dobbelgarasje

Vinduer Takvindu

Antall: 0

Ingen takvinduer nevnt

Vinduer Fasadevindu

🧱 Tre med 3-lags energiglass

Antall: 8

Vinduer i varierende størrelse, inkludert 3 vinduer i stue, 1 i kjøkken, 1 i hvert soverom

Fasadevindu i tre for bolig med god lysinnslipp

Ventilasjon Balansert ventilasjonsanlegg

Installasjon av komplett balansert ventilasjonsanlegg

Ventilasjonssystem for bolig

Grunnarbeid Terrengjustering og støttemurer

🧱 Betong og stablestein

Støttemurer av betong og stablestein, terrengfyllinger og skjæringer, fallsikring på murtopper

Terrengarbeider med støttemurer og terrengjusteringer for tilpasning til tomtens nivåforskjeller

Dører Ytterdører

🧱 Tre

Antall: 7

Ytterdører i bolig og garasje, inkludert 2 dører i entré, 1 dør til bad, 1 dør til bod, 1 dør til garasje

Ytterdører i tre for bolig og garasje

Gulv Innvendige gulv

Gulv i bolig, inkludert lamellgulv med bevegelsesfuger

Innvendige gulv i bolig

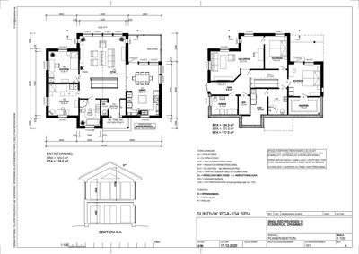
Plantegning

Garasje 48.0 m²

Etasje 1 48.0 m²

Rom Areal Vinduer Dører
Bod BOD 12.0 m² 0 1

Enebolig 205.0 m²

Etasje 1 103.5 m²

Rom Areal Vinduer Dører
Entré 101 4.0 m² 0 2
Bad 115 7.3 m² 0 1
Soverom 141 12.8 m² 1 1
Soverom 142 12.8 m² 1 1
Stue 131 36.0 m² 3 1
Kjøkken 121 23.0 m² 1 1

Etasje 0 101.5 m²

Rom Areal Vinduer Dører
Kjellerstue 113 22.2 m² 1 1
Gang 114 8.6 m² 0 3
Soverom 111 10.0 m² 1 1
Soverom 112 14.1 m² 1 1
Vaskerom 115 6.7 m² 0 1
Bod 116 2.8 m² 0 1
Bod 117 8.3 m² 0 1
WC 118 6.6 m² 0 1
Garderobe 119 7.5 m² 0 1
Hall 120 12.3 m² 0 2
Kjellerstue 11 22.2 m² 1 1
Soverom 12 10.0 m² 1 1
Gang 13 8.6 m² 0 3
Soverom 14 14.1 m² 1 2
Vaskerom 15 6.7 m² 0 1
Bod 16 2.8 m² 0 1
Bod 17 8.3 m² 0 1
WC 18 6.6 m² 0 1
Garderobe 19 7.5 m² 0 1
Hall 20 12.3 m² 0 2

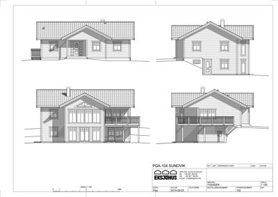
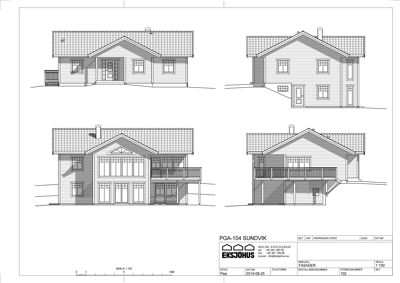
Fasader

Eksjøhus

Nord
Materiale
Tre
Taktype
Saltak
Takmat.
Tegl
Høyde
2.0 m
Mønehøyde
4.0 m
Vinduer
2
Dører
1
Balkonger
1
Synlige etasjer
1
Øst
Materiale
Tre
Taktype
Saltak
Takmat.
Tegl
Høyde
6.6 m
Mønehøyde
8.3 m
Vinduer
3
Dører
2
Synlige etasjer
2
Sør
Materiale
Tre
Taktype
Saltak
Takmat.
Tegl
Høyde
6.4 m
Mønehøyde
8.6 m
Vinduer
6
Dører
1
Balkonger
1
Synlige etasjer
2
Vest
Materiale
Tre
Taktype
Saltak
Takmat.
Tegl
Høyde
6.4 m
Mønehøyde
8.6 m
Vinduer
3
Dører
1
Balkonger
1
Synlige etasjer
2

Hendelser

14.04.2026 Rådyrsvingen 16, ferdigattest for oppføring av enebolig og garasje
07.04.2026 Rådyrsvingen 16 Søknad om ferdigattest 65/249 søknad
26.11.2025 Rådyrsvingen 16, Innmålinger VA
11.07.2025 Rådyrsvingen 16, tillatelse til endring av tidligere gitt tillatelse med dispensasjon dispensasjon
21.05.2025 Rådyrsvingen 16 Søknad om endring av gitt tillatelse eller godkjenning 65/249 vedtak
09.09.2024 Rådyrsvingen 16, svar på forespørsel om behov for endringssøknad
20.08.2024 Rådyrsvingen 16, Forespørsel om behov for endringssøknad før ferdigattest ferdigattest
09.08.2022 Innmåling av bolig og garasje "som bygget"
08.08.2022 Rådyrsvingen 16, Supplering av søknad - Ansvarlig for innmåling og utstikking 65/249 søknad
29.06.2022 Rådyrsvingen 16, Midlertidig brukstillatelse for enebolig midlertidig_brukstillatelse
21.06.2022 Rådyrsvingen 16, melding om mottatt søknad søknad
20.06.2022 Rådyrsvingen 16 Søknad om midlertidig brukstillatelse 65/249 midlertidig_brukstillatelse
14.06.2022 Rådyrsvingen 16 Supplering av søknad 65/249 søknad
05.08.2021 Rådyrsvingen 16, Tillatelse til oppføring av enebolig og garasje med dispensasjon dispensasjon
17.06.2021 Saksprotokoll Hovtt, 16062021, Sak 149/21, Rådyrsvingen 16, dispensasjon fra regulert byggegrense for garasje og terrengfylling dispensasjon
01.06.2021 Rådyrsvingen 16, Ettersendelse av oppdatert gjennomføringsplan
27.05.2021 Rådyrsvingen 16, Gjennomføringsplan og erklæring om ansvarsrett
30.04.2021 Rådyrsvingen 16 - Tilleggsopplysninger med oppdatert situasjonskart og terrengprofil
29.04.2021 Rådyrsvingen 16, tilbakemelding på søknad om oppføring av enebolig og garasje søknad
20.03.2021 Rådyrsvingen 16, melding om mottatt søknad søknad
19.03.2021 Rådyrsvingen 16, Søknad om tillatelse i ett trinn søknad