NewConstruction UnderBehandling Enebolig

Ny enebolig med garasje i Rauhaugvegen 36, Ulefoss

📍 Rauhaugvegen 36

Nøkkelinfo

Sakstype
Nybygg
Bygningstype
Enebolig
Bruksareal
194 m²
Boenheter
1
Kommune
Nome
Fylke
Telemark
Gnr / Bnr
21 / 36
Saksnummer
26/1176
Fase
Under behandling

Om byggesaken

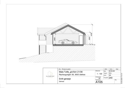
Ny frittliggende enebolig med tilhørende garasje på eiendommen Rauhaugvegen 36 i Ulefoss. Boligen har et samlet bruksareal på ca. 194 m², fordelt på to etasjer med saltak og trekledning. Planløsningen inkluderer stue, kjøkken, bad, vaskerom og flere ganger. Garasjen er plassert i forlengelse av boligen mot sør. Bygget er tilpasset tomtens topografi med begrensede terrenginngrep, drenerende masser under grunnmur, og hensyn til eksisterende VA-ledninger med minimum 4 meters avstand. Det er etablert adkomst og parkering på egen tomt med snuplass. Fasader er i tre med saltak og tegl takmateriale på sørfasade. Prosjektet inkluderer nødvendige tekniske installasjoner og tilknytninger til offentlig vann og avløp.

Produkter og materialer

Vinduer Fasadevindu

Antall: 20

Vinduer fordelt på fasader: Øst 4, Vest 11, Nord 3, Sør 2

Fasadevinduer i tre etasjer

Fasade Trekledning

🧱 Tre

Trekledning på alle fasader

Yttervegger kledd med trepanel

Garasjeport Garasjeport

Antall: 2

Garasjeport på sørfasade og østfasade

Garasjeporter til tilhørende garasje

Gulv Innvendige gulv

Innvendige gulv i bolig

Rekkverk Balkongrekkverk

Antall: 4

Balkonger med rekkverk på flere fasader

Rekkverk på balkonger

Pipe Pipe/skorstein

Antall: 1

Krav om pipe/skorstein iht. TEK17 § 14-4

Pipe/skorstein for enebolig

Terrasse Terrasse

Antall: 1

Terrasse på bolig

Utendørs terrasseareal

VVS Sanitærinstallasjoner

Sanitærinstallasjoner utført av GASS OG RØRSERVICE AS

VVS-installasjoner for bolig

Grunnarbeid Avkjørsel og snuplass

🧱 Grus

Avkjørsel og snuplass med grusdekke

Opparbeidelse av adkomst og snuplass på egen tomt

Grunnarbeid Utgraving og fylling

🧱 Drenerende masser (pukk)

Utgraving ned til fjell, fylling med drenerende masser, maks 1m fylling over VA-ledninger

Grunnarbeid med hensyn til terreng og VA-ledninger

Mur Grunnmur og kjellervegger

🧱 Mur

Grunnmur og kjellervegger i mur

Fundamentering og kjellervegger i mur

Dører Ytterdører og balkongdører

Antall: 5

Dører fordelt på fasader: Øst 1, Vest 1, Nord 1, Sør 1, garasjeport 2

Ytterdører og garasjeporter

Isolasjon Radonsperre

🧱 Radonduk

Radonsperre med radonduk iht. TEK17

Radonsperre under bolig

Bad Bad og våtrom

Antall: 2

Bad og vaskerom med våtromsstandard

Bad og vaskerom med nødvendig utstyr og membran

Ventilasjon Ventilasjonsanlegg

Ventilasjonsanlegg med uavhengig kontroll

Ventilasjonsanlegg iht. krav

Tak Saltak med tegl

🧱 Tegl

Saltak med tegl på sørfasade

Saltak med tegl takmateriale

Tømrer Trekonstruksjoner

🧱 Tre

Tømrerarbeid og montering av trekonstruksjoner utført av DRANGEDAL HUS OG HYTTEBYGG AS

Tømrerarbeid for bolig og garasje

Elektro Elektriske installasjoner

Elektriske installasjoner iht. TEK17

Fasader

Enebolig

Øst
Materiale
Tre
Taktype
Saltak
Vinduer
4
Dører
1
Balkonger
1
Synlige etasjer
1
Vest
Materiale
Tre
Taktype
Saltak
Vinduer
11
Dører
1
Balkonger
2
Synlige etasjer
2
Nord
Materiale
Tre
Taktype
Saltak
Vinduer
3
Dører
1
Balkonger
1
Synlige etasjer
2
Sør
Materiale
Tre
Taktype
Saltak
Takmat.
Tegl
Høyde
6.5 m
Mønehøyde
8.2 m
Vinduer
2
Dører
1
Balkonger
1
Synlige etasjer
2

Hendelser

21.04.2026 Mangler ved søknad - endret plassering
20.04.2026 Endret plassering av bolig
20.04.2026 Oppfølging søknad bolig Rauhaugvegen 36 - endring av plassering
24.02.2026 Tilbakemelding om mangler ved søknad om oppføring av enebolig, Rauhaugvegen 36 - Gbnr 21/36
17.02.2026 Søknad om oppføring av bolig, Rauhaugvegen - gbnr 21/36