NewConstruction Igangsettingstillatelse Enebolig

Ny enebolig med anneks på Røde grinda 20, Hvaler

📍 Røde grinda 20 , 1692 NEDGÅRDEN

Nøkkelinfo

Sakstype
Nybygg
Bygningstype
Enebolig
Bruksareal
180 m²
Boenheter
1
Kommune
Hvaler
Fylke
Østfold
Gnr / Bnr
29 / 270
Saksnummer
2024/2617
Fase
Igangsettingstillatelse

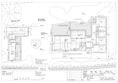
Om byggesaken

Ny enebolig på ca. 139 m² BRA med tilhørende anneks/uthus/verksted på ca. 41 m² oppføres på eiendommen Røde grinda 20 i Hvaler kommune. Boligen er ettplans med saltak, delt i to volumer med et lavere mellombygg, og har en funksjonell romfordeling med stue/kjøkken, flere soverom, bad, arbeidsrom og tekniske rom. Anneks/uthus bygges i tilknytning til boligen med saltak og tradisjonell trepanelkledning behandlet med jernvitrol for grånet utseende. Taket på hovedbygget dekkes med mørk gråsort stålplate med integrerte solceller på sørsiden. Bygget er tilpasset terrenget med trinnfri adkomst og minimal terrenginngrep. Det er lagt vekt på stedstilpasning med hensyn til kulturmiljø og landskap, og det foreligger nabosamtykker for plassering nærmere nabogrense enn normalt. Prosjektet inkluderer også VA-tilknytning med prosjektering og graving for vann og avløp.

Produkter og materialer

Dører Ytterdører

🧱 Tre

Antall: 6

Ytterdører i tre til bolig og anneks

Ytterdører for bolig og anneks, tilpasset tradisjonell stil

Tømrer Innvendige vegger og tak

🧱 Tre

Innvendige konstruksjoner i tre for bolig og anneks

Tømrerarbeid for bolig og anneks

Grunnarbeid Fundamentering og terrengarbeid

Fundamentering på søyler eller ringmur, terrengbearbeiding for trinnfri adkomst

Grunnarbeid for bolig og anneks med tilpasning til terreng

Fasade Stående granpanel

🧱 Granpanel behandlet med jernvitrol

Fasade i stående granpanel behandlet med jernvitrol for grånet utseende

Fasadebekledning for bolig og anneks i grånet trepanel

Trapper Innvendig trapp

🧱 Tre

Antall: 1

Innvendig trapp mellom etasjer i bolig

Trapp for forbindelse mellom 1. og 2. etasje

Gulv Parkett og fliser

Gulvbelegg i oppholdsrom og våtrom

Innvendige gulvflater med parkett og fliser

Vinduer Fasadevindu

🧱 Tre med tradisjonell form og inndeling

Antall: 9

Vinduer med tradisjonell form og inndeling, tilpasset kulturmiljø

Fasadevinduer i tre med tradisjonell utforming for bolig og anneks

VVS Vann- og avløpsinstallasjon

Prosjektering og graving for tilknytning til kommunalt vann- og avløpsnett

VA-installasjoner inkludert ledningsnett og tilkobling

Tak Saltak med stålplatetak

🧱 Gråsort stålplate med integrerte solceller

Antall: 2

Mørk gråsort stålplatetak med integrerte solcellepaneler på sørsiden

Saltak med integrerte solceller for hovedhus og anneks

Terrasse Terrasse med rampe

🧱 Tre

Terrasse med rampe for trinnfri adkomst

Uteplass med tilpasset adkomst

Bad Sanitærutstyr og fliser

Bad med sanitærutstyr og flislagte overflater

Innredning og overflater for bad i bolig og anneks

Elektro Solcelleanlegg

Integrerte solcellepaneler på taket mot sør

Solcelleanlegg integrert i taket for energiproduksjon

Plantegning

Enebolig 169.0 m²

Etasje 2 30.0 m²

Rom Areal Vinduer Dører
Sov 201 9.5 m² 0 1
Sov/vevstue 202 7.5 m² 0 1
Bodloft 203 2.5 m² 0 1
Teknisk 204 0.0 m² 0 0
Mesanin 205 4.0 m² 0 0
Åpent ned 206 0.0 m² 0 0

Etasje 1 139.0 m²

Rom Areal Vinduer Dører
Stue/kjøkken 101 49.5 m² 2 2
Arbeids/yogarom 102 13.5 m² 1 1
Entre/gang 103 16.5 m² 0 3
Sov 1 104 15.0 m² 1 1
Sov 2 105 9.2 m² 1 1
Sov 3 106 12.0 m² 1 1
Bad 107 6.8 m² 0 1
Bad 108 5.0 m² 0 1
Bod 109 4.0 m² 1 1
Matbod 110 2.0 m² 0 1

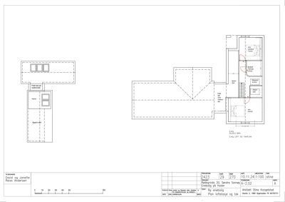
Fasader

Uthus/Anneks/Verksted

Nord
Materiale
Tre
Taktype
Saltak
Høyde
17.5 m
Mønehøyde
18.3 m
Vinduer
2
Dører
1
Synlige etasjer
1
Vest
Materiale
Tre
Taktype
Saltak
Høyde
16.7 m
Mønehøyde
18.3 m
Vinduer
3
Dører
0
Synlige etasjer
1

Hus

Øst
Materiale
Tre
Taktype
Saltak
Høyde
6.0 m
Mønehøyde
8.3 m
Vinduer
2
Dører
1
Synlige etasjer
1
Sør
Materiale
Tre
Taktype
Saltak
Høyde
6.0 m
Mønehøyde
8.3 m
Vinduer
4
Dører
1
Synlige etasjer
1

Hendelser

15.04.2026 Søknad om igangsettingstillatelse - 29/270 - Røde grinda 20
24.02.2026 Oversendelse av revidert prosjektet ny bolig og VA - bolig og anneks - 29/270 - Røde grinda 20
17.02.2026 Supplering av søknad - bolig og anneks - 29/270 - Røde grinda 20
14.10.2025 Svar på tilbakemelding - signerte samtykker - bolig og anneks - 29/270 - Røde grinda 20
07.10.2025 Supplering av søknad - bolig og anneks - 29/270 - Røde grinda 20
23.09.2025 Supplering av søknad - bolig og anneks - 29/270 - Røde grinda 20
10.06.2025 Oversendelse av sak til uttalelse - bolig og anneks - 29/270 - Røde grinda 20
10.06.2025 Uttalelse - oppføring av ny enebolig - bolig og anneks - 29/270 - Røde grinda 20
10.06.2025 Orientering om mottatt uttalelse - behov av omprosjektering - bolig og anneks - 29/270 - Røde grinda 20
12.02.2025 Tilbakemelding - søknad om rammetillatelse - bolig og anneks - 29/270 - Røde grinda 20
12.02.2025 Svar - tilbakemelding fra kommunen - bolig og anneks - 29/270 - Røde grinda 20
02.12.2024 Søknad om rammetillatelse - bolig og anneks - 29/270 - Røde grinda 20
23.10.2024 Foreløpig oppsummering - bolig og anneks - 29/270 - Røde grinda 20
10.10.2024 Anmodning om forhåndsuttalelse eller forhåndskonferanse - bolig og anneks - 29/270 - Røde grinda 20