NewConstruction UnderBehandling Enebolig

Ny enebolig med sekundærleilighet i Rogneveien 13, Spikkestad

📍 Rogneveien 13 , 3430 SPIKKESTAD

Nøkkelinfo

Sakstype
Nybygg
Bygningstype
Enebolig
Bruksareal
260 m²
Boenheter
2
Kommune
Asker
Fylke
Akershus
Gnr / Bnr
285 / 443
Saksnummer
20/1220
Fase
Under behandling

Om byggesaken

Ny enebolig med sokkelleilighet på totalt ca. 260 m² BRA fordelt på to etasjer. Hoveddelen har stue, kjøkken, flere soverom, bad og boder, mens sekundærleiligheten er fysisk adskilt med eget inngangsparti. Bygget har saltak med teglstein, trekledning og flere vinduer og dører fordelt på fasadene. Det er etablert ny adkomst med midlertidig status, og uteområdene planeres. Bygget er tilknyttet offentlig vann- og avløpsnett, men har hatt utfordringer med sanitærabonnement pga. kapasitetsproblemer i området. Det foreligger godkjente dispensasjoner for avstand til sidevassdrag, gesimshøyde og bebyggelsesplan. Prosjektet har gjennomgått full ansvarsrett med flere foretak involvert i prosjektering, utførelse og kontroll. Midlertidig brukstillatelse er gitt, men ferdigattest er foreløpig ikke utstedt pga. manglende ansvarserklæring fra ansvarlig søker.

Produkter og materialer

Gulv Vannbåren gulvvarme

Vannbåren gulvvarme i hoved- og sekundærleilighet

Vannbåren gulvvarme i bolig

Mur Stablemur

🧱 Mur

Stablemur ved uteområder som del av terrengarbeid

Stablemur for terrengstøtte

Pipe Pipe og ildsted

Antall: 1

Pipe og ildsted installert av NORDPEIS AS

Pipe og ildsted i bolig

Grunnarbeid Drenering og overvannshåndtering

Overvannsplan og drenering med infiltrasjonskum og drensrør til steinfylling, utført av BGG Entreprenør AS og EM Teknikk AS

Drenering og overvannshåndtering på tomt

Garasjeport Garasjeport

Antall: 1

Garasjeport på fasade nordvest, garasje ikke omsøkt i denne sak

Garasjeport til fremtidig garasje

Terrasse Markterrasse

🧱 Tre

Antall: 1

Markterrasse med terrasse dør i sekundærleilighet

Terrasse i tre med tilhørende dør

Rekkverk Rekkverk på balkong

Antall: 2

Rekkverk på balkonger på fasade nordvest og sørøst

Rekkverk på balkonger

Tømrer Byggelementer og trekonstruksjoner

🧱 Tre

Tømrerarbeid og montering av trekonstruksjoner utført av Forhandler HA Ferdighus AS og Innlandet Elementfabrikk AS

Tømrerarbeid og prefabrikkerte byggelementer

Grunnarbeid Graving og planering

Graving, grunnarbeid og planering av terreng utført av BGG Entreprenør AS

Grunnarbeid og terrengplanering

Tak Saltak med teglstein

🧱 Teglstein

Antall: 1

Saltak med teglstein som takmateriale på hovedbygning og sokkelleilighet

Saltak med teglstein som takmateriale

Maling Utvendig maling

Utvendig maling av trekledning

Maling av utvendig trekledning

Trapper Innvendig trapp

Antall: 1

Innvendig trapp mellom etasjer

Innvendig trapp i bolig

Vinduer Fasadevindu

🧱 Tre med 3-lags energiglass

Antall: 28

Vinduer fordelt på fasader, inkludert 6 på nordøst, 3 på nordvest, 5 på sørøst, og tilsvarende i sokkelleilighet

Fasadevindu i tre med energiglass for hoved- og sekundærleilighet

Fasade Trekledning

🧱 Tre

Antall: 1

Trekledning på alle fasader for hovedbygning og sokkelleilighet

Trekledning på fasader

Dører Ytterdør og terrassedør

🧱 Tre

Antall: 14

Ytterdører og terrassedører fordelt på fasader, inkludert 2 dører på nordøst, 2 på nordvest, 2 på sørøst, og tilsvarende i sokkelleilighet

Ytterdører og terrassedører i tre for hoved- og sekundærleilighet

Betong Betongkonstruksjoner inkl. radon

🧱 Betong

Betongarbeider utført av Viken Betong AS, inkludert radonsikring

Betongkonstruksjoner og radonsikring

Elektro Elektroinstallasjoner

Elektroinstallasjoner utført av ansvarlig foretak

Elektriske installasjoner i bolig

Ventilasjon Ventilasjonsanlegg

Ventilasjons- og klimainstallasjoner utført av SYSTEMAIR AS

Ventilasjonsanlegg for bolig

Bad Våtrom med membran og fliser

Våtromsarbeider med membran, flislegging og fall til sluk utført av BOVG Bygg og Våtrom AS

Våtrom med membran og fliser

VVS Sanitærinstallasjoner og vannbåren varme

Sanitærinstallasjoner, vannforsyning, avløp og vannbåren gulvvarme utført av VEAS Rør AS

Sanitær- og vanninstallasjoner med vannbåren varme

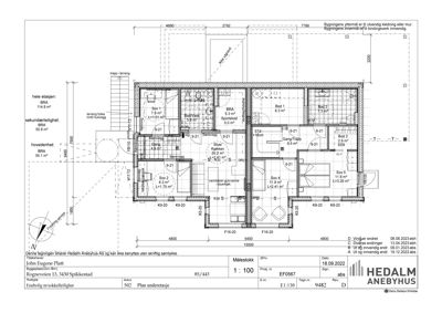
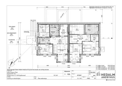
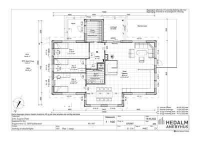
Plantegning

Enebolig 259.6 m²

Etasje 0 114.8 m²

Rom Areal Vinduer Dører
Sov 1 001 7.9 m² 1 1
Bad/Vask 002 5.8 m² 0 1
Sportsbod 003 5.0 m² 0 1
Gang 004 4.9 m² 0 2
Sov 2 005 8.3 m² 1 1
Stue/Kjøkken 006 20.2 m² 2 2
Bod 1 007 8.3 m² 1 1
Gang/Trapp 008 9.5 m² 0 2
Bad 2 009 7.3 m² 0 1
Bod 2 010 2.9 m² 0 1
Sov 4 011 11.8 m² 1 1
Sov 5 012 11.8 m² 1 1

Etasje 1 144.8 m²

Rom Areal Vinduer Dører
Stue/Kjøkken 101 66.4 m² 3 2
Gang 102 8.1 m² 0 3
Sov 1 103 11.8 m² 1 1
Sov 2 104 9.5 m² 1 1
Sov 3 105 13.2 m² 1 1
Bad 1 106 6.0 m² 0 1
Entre 107 7.0 m² 0 2
Repos 108 0.0 m² 0 1

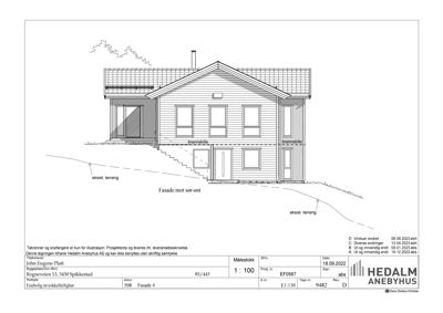
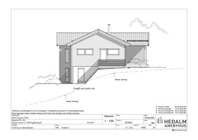
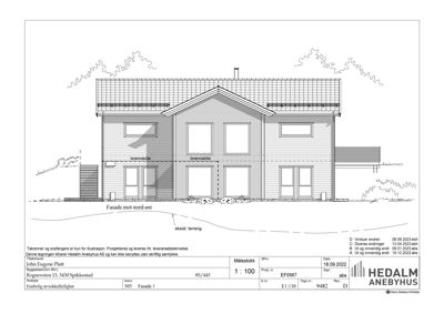
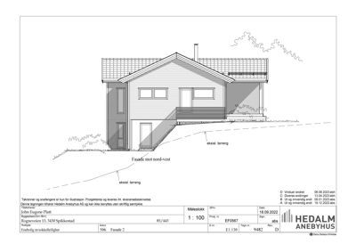
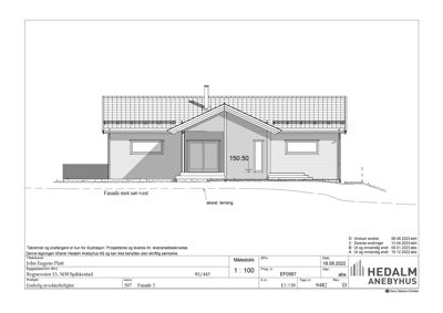
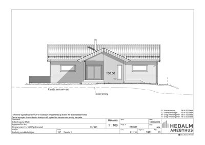
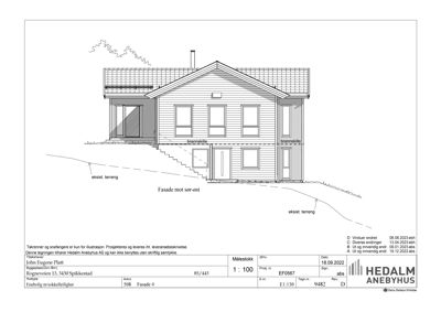
Fasader

Enebolig

Nordøst
Materiale
Tre
Taktype
Saltak
Takmat.
Tegl
Vinduer
6
Dører
2
Synlige etasjer
2
Nordvest
Materiale
Tre
Taktype
Saltak
Takmat.
Tegl
Vinduer
3
Dører
2
Balkonger
1
Synlige etasjer
2
Sør-øst
Materiale
Tre
Taktype
Saltak
Takmat.
Tegl
Vinduer
5
Dører
2
Balkonger
1
Synlige etasjer
2

Enebolig m/sokkelleilighet

Nord-øst
Materiale
Tre
Taktype
Saltak
Takmat.
Tegl
Vinduer
6
Dører
2
Synlige etasjer
2
Nordvest
Materiale
Tre
Taktype
Saltak
Takmat.
Tegl
Vinduer
3
Dører
2
Balkonger
1
Synlige etasjer
2
Sørvest
Materiale
Tre
Taktype
Saltak
Takmat.
Tegl
Vinduer
2
Dører
1
Synlige etasjer
1

Hendelser

10.04.2026 285/443 Rogneveien 13 - Supplerende dokumentasjon
29.03.2026 285/443 Rogneveien 13 - Avvisning av søknad om ferdigattest
05.02.2025 285/443 Rogneveien 13 - Korrespondanse
03.02.2025 285/443 Rogneveien 13 - Videre saksbehandling
07.11.2024 285/443 Rogneveien 13 - Ufullstendig søknad II - Ansvarserklæring
05.11.2024 285/443 Rogneveien 13 - Samsvarserklæring
05.08.2024 285/443 Rogneveien 13 - Ferdig utfylt ferdigattestskjema
24.07.2024 285/443 Rogneveien 13 - Ufullstendig søknad - Søknad om selvbygger
04.07.2024 285/443 Rogneveien 13 - Søknad om ferdigattest
24.04.2024 285/443 Rogneveien 13 - Ny ansvarlig søker
24.04.2024 285/443 Rogneveien 13 - Supplering av søknad
10.04.2024 285/443 Om uteområde - Nybygg enebolig med sekundærleilighet
05.04.2024 285/443 Rogneveien 13 - Ønsker veiledning for ferdigstillelse av uteområde
27.02.2024 285/443 Rogneveien 13 - Midlertidig brukstillatelse - Nybygg enebolig med sekundærleilighet
13.02.2024 285/443 Rogneveien 13 - Supplering av søknad
30.01.2024 285/443 Rogneveien 13 - Søknad om midlertidig brukstillatelse
27.05.2023 285/443 Supplerende dokumentasjon - Nybygg enebolig med sekundærleilighet
30.03.2023 285/443 Igangsettingstillatelse - Nybygg enebolig med sekundærleilighet
09.03.2023 285/443 Adkomst - Etterspurt informasjon / dokumentasjon - Nybygg enebolig med sekundærleilighet
28.02.2023 285/443 Vedrørende bruk av bom til adkomst
24.02.2023 285/443 Adkomst - trenger litt mer dokumentasjon
21.02.2023 285/443 Ber om status og svar på søknad om igangsettingstillatelse - Nybygg enebolig med sekundærleilighet
02.02.2023 285/443 Supplering av søknad - Nybygg enebolig med sekundærleilighet
11.07.2022 285/443 Mangler i søknad om igangsettingstillatelse - Nybygg enebolig med sekundærleilighet
08.07.2022 285/443 Søknad om igangsettingstillatelse - Nybygg enebolig med sekundærleilighet
28.06.2022 285/443 Vedrørende melding om endring ansvarlig søker - Nybygg enebolig med sekundærleilighet
20.06.2022 285/443 Melding om endring av ansvarsrett - Nybygg enebolig med sekundærleilighet
18.05.2022 285/443 Ad møte - Nybygg enebolig med sekundærleilighet
18.05.2022 285/443 Ønsker møte om godkjent byggesøknad og avslag tilkobling vann og avløp - Nybygg enebolig med sekundærleilighet
26.04.2022 285/443 Nytt svar angående avslag på søknad om sanitærabonnement der rammetillatelse er innvilget
05.04.2022 285/443 Vedrørende avslag på søknad om sanitærabonnement - Nybygg enebolig med sekundærleilighet
31.03.2022 285/443 Svar om avslag på søknad om sanitærabonnement der rammetillatelse er innvilget - Nybygg enebolig med sekundærleilighet
10.02.2021 285/443 Ny ansvarsrett - Nybygg enebolig med sekundærleilighet
29.05.2020 285/443 Søknad om dispensasjon fra krav om tomtedelings- og bebyggelsesplan - Nybygg enebolig med sekundærleilighet
25.05.2020 285/443 Godkjent dispensasjon og rammetillatelse - Nybygg enebolig med sekundærleilighet
08.05.2020 285/443 Purring - Svar på tilbakemelding - Nybygg enebolig med sekundærleilighet
28.04.2020 285/443 Svar på tilbakemelding - Nybygg enebolig med sekundærleilighet
12.04.2020 285/443 Oversendelse rapport - Nybygg enebolig med sekundærleilighet
31.03.2020 285/443 Ber om status for søknaden - Nybygg enebolig med sekundærleilighet
27.03.2020 285/443 Kapasitet i brannkum - Nybygg enebolig med sekundærleilighet
27.03.2020 285/443 Videresender bekreftelse på kapasitet i brannkum - Nybygg enebolig med sekundærleilighet
26.03.2020 285/443 Tilbakemelding vedrørende tilstandsvurdering
15.03.2020 285/443 Svar på mangelbrev av 270220 - Nybygg enebolig med sekundærleilighet
04.03.2020 285/443 - E-postkorrespondanse angående sidevassdragdispensasjon (KTA/VOV)
28.02.2020 285/443 Etterlyser svar på søknad - Nybygg enebolig med sekundærleilighet
27.02.2020 285/443 - Ufullstendig søknad om rammetillatelse - Nybygg enebolig med sekundærleilighet
28.01.2020 285/443 Revidert forslag til løsning - Framtidig garasje / biloppstillingsplasser - Nybygg enebolig med sekundærleilighet