NewConstruction UnderBehandling Enebolig

Ny enebolig med garasje i Sjølystveien 41, Sætre

📍 Sjølystveien 41 , 3475 SÆTRE

Nøkkelinfo

Sakstype
Nybygg
Bygningstype
Enebolig
Bruksareal
219 m²
Boenheter
1
Kommune
Asker
Fylke
Akershus
Gnr / Bnr
353 / 559
Saksnummer
20/3373
Fase
Under behandling

Om byggesaken

Ny enebolig med totalt bruttoareal på ca. 218,8 m² fordelt på underetasje (120,5 m²) og 1. etasje (98,3 m²). Boligen har 1 trapp, 2 bad, 2 stuer, kjøkken, teknisk rom, bod og utvendig bod. Bygget har saltak og flatt tak, med fasader i tre og glass, og pipe. Carporten er ombygd til garasje med samme mål. Tomten er bratt med naturlig terreng og uteoppholdsareal på 210 m². Det er etablert støttemur under 1,5 m ved parkeringsplass, med avstandserklæring fra nabo. Det er pågående bygging av steintrapp i terrenget som krever dispensasjon. Endringer i forhold til opprinnelig søknad inkluderer heving av huset, utvidet kjeller, fasadeendringer, og fjernet støttemurer/trapper mot vest. Prosjektet nærmer seg ferdigstillelse høsten 2026.

Produkter og materialer

Tak Saltak og flatt tak

Saltak på øst og vestfasade, flatt tak på sør og nordfasade

Tak med saltak og flatt tak, mønehøyde ca 9,5 m, gesimshøyde 2,3-3,8 m

Mur Støttemur

🧱 Betong eller naturstein

Antall: 2

To støttemurer som fundament for parkeringsplass, maks 1,5 m høy, med avstandserklæring fra nabo

Støttemurer ved parkeringsplass i tilknytning til garasje

Fasade Trepanel og glassfasade

🧱 Tre og glass

Trepanel på fasader sør, nord, vest; glassfasade på østfasade

Fasade med trepanel og glass, saltak og flatt tak

Elektro Solceller

Solceller på tak mot sør i endret fasade

Solcelleanlegg på tak for energiproduksjon

Terrasse Terrasse og veranda

Terrasse på 41,4 m², veranda mot øst og vest i endret fasade

Uteoppholdsareal med terrasse og veranda

Grunnarbeid Terrengtilpasning og drenering

Terreng tilpasset uten store fyllinger/skjæringer, overvannshåndtering med dreneringsrør og kum, naturlig drenering i sandholdig morenejord

Grunnarbeid for bolig og uteareal, inkludert drenering og overvannshåndtering

Vinduer Fasadevindu

🧱 Tre og glass

Antall: 21

Fasade sør 7 vinduer, fasade nord 2 vinduer, fasade øst 10 vinduer, fasade vest 2 vinduer

Vinduer i tre og glass i ulike fasader, inkludert redusert vindusflate mot øst i endring

Trapper Innvendig trapp

Antall: 1

1 trapp i bolig

Innvendig trapp mellom etasjer

VVS Vann og avløp

🧱 PE80 vannrør, PVC kloakkrør

Privat vann fra borehull, tilkobling til felles avløpsanlegg med tinglyst avtale

Vann- og avløpsanlegg for bolig med privat vann og tilkobling til felles avløpsnett

Garasjeport Garasjeport på vestfasade

Antall: 1

Garasjeport på vestfasade, carport ombygd til garasje

Garasjeport for biloppstilling

Dører Ytterdører og garasjeport

🧱 Tre og glass

Antall: 9

Fasade sør 3 dører, fasade nord 2 dører, fasade øst 1 dør, fasade vest 2 dører, garasjeport på vestfasade

Ytterdører i tre og glass, samt garasjeport på vestfasade

Gulv Innvendige gulv

Ikke spesifisert i dokumenter, men bolig med oppholdsrom, bad og teknisk rom

Innvendige gulv i bolig, antatt standard materialvalg

Bad Bad og WC

Antall: 2

Bad 1 på 16 m², bad 2 på 7 m², WC-vask 3,9 m²

Bad og WC med sanitærinstallasjoner

Trapper Steintrapp utendørs

🧱 Norsk granitt

Antall: 1

Steintrapp gjenbrukt fra Tønsberg kommune, halvferdig i april 2026, lagt i naturlig terreng uten grunnarbeider

Utendørs steintrapp for adkomst til nedre uteoppholdsareal, krever dispensasjon

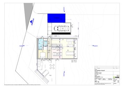
Plantegning

Enebolig 218.8 m²

Etasje 0 120.5 m²

Rom Areal Vinduer Dører
Oppholdsrom 001 29.1 m² 1 1
Teknisk 002 5.0 m² 0 1
Bad 003 7.0 m² 0 1
Bod 004 10.9 m² 0 1
Utvendig bod 005 26.7 m² 0 1

Etasje 1 98.3 m²

Rom Areal Vinduer Dører
Stue 101 36.0 m² 2 1
Kjøkken 102 13.2 m² 1 1
Gang 103 11.0 m² 0 2
Sov 1 104 9.8 m² 1 1
Bad 1 105 6.0 m² 0 1
WC-Vask 106 3.9 m² 0 1

Fasader

Enebolig

Sør
Materiale
Tre
Taktype
Flatt tak
Høyde
2.3 m
Vinduer
7
Dører
3
Synlige etasjer
2
Nord
Materiale
Tre
Taktype
Flatt tak
Vinduer
2
Dører
2
Synlige etasjer
1
Øst
Materiale
Glass
Taktype
Saltak
Høyde
7.0 m
Mønehøyde
9.5 m
Vinduer
10
Dører
1
Balkonger
1
Synlige etasjer
2
Vest
Materiale
Tre
Taktype
Saltak
Høyde
3.9 m
Mønehøyde
3.6 m
Vinduer
2
Dører
2
Synlige etasjer
1

Hendelser

21.04.2026 353/559 Sjølystveien 41 - Svar på henvendelse om søknadsplikt for steintrapp og godkjenning av tegninger
21.04.2026 353/559 - Svar på tilbakemelding
21.04.2026 353/559 Sjølystveien 41 - Detaljerte endringer
20.04.2026 353/559 Sjølystveien 41 - Spørsmål om behov for dispensasjonssøknad for steintrapp og godkjenning av tegninger
07.04.2026 353/559 - Tilbakemelding på brev om manglende ferdigattest eller midlertidig brukstillatelse
25.03.2026 353/559 Tillatelse til tiltak i ett trinn - Oppføring av bolig og carport - Manglende ferdigattest eller midlertidig brukstillatelse
28.08.2020 353/559 Reduksjon av byggesaksgebyr - Søknad om nytt bygg
13.08.2020 353/559 Om mangler og avstandserklæring
13.08.2020 353/559 Supplerende dokumentasjon
18.06.2020 353/559 Søknad om refusjon av gebyr - Bolig og carport
12.06.2020 353/559 Tillatelse til tiltak i ett trinn - Oppføring av bolig og carport.
13.05.2020 353/559 E-postkorrespondanse - Søknad om nytt bygg
13.05.2020 353/559 - Svarbrev etterspurte opplysninger - Søknad om nytt bygg
30.04.2020 353/559 Oversendelse dokumentasjon - Søknad om nytt bygg