NewConstruction Igangsettingstillatelse Enebolig

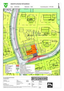
Ny enebolig med garasje og støttemur på Skaftåsen 33, Birkeland

📍 Skaftåsen 33 , 4760 BIRKELAND

Nøkkelinfo

Sakstype
Nybygg
Bygningstype
Enebolig
Bruksareal
386 m²
Boenheter
1
Kommune
Birkenes
Fylke
Agder
Gnr / Bnr
87 / 321
Saksnummer
2022/2127
Fase
Igangsettingstillatelse

Om byggesaken

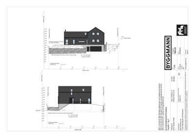
Ny enebolig på tre plan inkludert kjeller med integrert garasje oppføres på tomt på Skaftåsen 33 i Birkeland. Boligen har et bruksareal på 385,7 m² og bebygd areal på 174,1 m², med saltak og gesims- og mønehøyde på henholdsvis ca. 5,2 og 7,7 meter. Bygget utføres i tradisjonelt reisverk med naturfarget stående trekledning og ikke-reflekterende taktekking. Boligen har store vindusflater mot vest og sør, samt takvinduer i loftsetasje. Tomten planeres og mures opp med natursteinsmurer mot sør, vest og nord, med maksimal høyde på 2,5 meter. Det er etablert adkomst med innkjøring til garasje mot sørøst, med parkeringsplass foran garasje i henhold til kommunens parkeringsnorm. Tiltaket har gjennomgått dispensasjonsbehandling for flytting av avkjørsel og plassering av støttemur utenfor regulert byggegrense, og tillatelse er gitt med vilkår om plassering og utførelse i henhold til godkjente tegninger og situasjonsplan.

Produkter og materialer

VVS Innvendig VA/sanitæranlegg

Innvendig VA og sanitæranlegg utført av Rørleggermester Jarle Håkedal AS

Sanitærinstallasjoner i bolig

Vinduer Fasadevindu

🧱 tre

Antall: 14

Vinduer i fasader mot nord, sør, øst og vest, dimensjoner varierende, med god lysinnslipp

Fasadevindu i tradisjonell utførelse med trekarmer

Gulv Innvendige gulv

Innvendige gulv i bolig, type ikke spesifisert

Gulv i boligetasjer

Grunnarbeid Planering og støttemurer

Planering av tomt, tilpasning av terreng, støttemurer i henhold til reguleringsplan

Grunnarbeid for bolig og uteområder

Dører Ytterdør

🧱 tre

Antall: 3

Ytterdører i fasade, inkludert inngangsdør og balkongdører

Ytterdører i tre med glassfelt

Mur Forstøtningsmur

🧱 Naturstein

Forstøtningsmur i naturstein, maks høyde 2,5 meter, plassert i tomtegrense mot sør, vest og nord

Natursteinsmur tilpasset terreng og nabolagets murer

Tak Saltak

🧱 ikke-reflekterende tekking

Antall: 1

Saltak med takfall 35 grader, gesimshøyde ca. 5,2 m, mønehøyde ca. 7,7 m

Saltak med tradisjonell tekking

Trapper Innvendig trapp

Antall: 1

Innvendig trapp til 2. etasje montert 07.05.2025

Innvendig trapp mellom etasjer

Terrasse Terrasse utenfor balkongdører

Antall: 1

Terrasse utenfor balkongdører, gjenstående arbeid ved midlertidig brukstillatelse

Uteoppholdsareal tilknyttet bolig

Ventilasjon Ventilasjonsanlegg

Ventilasjonsanlegg for boenheten inkl. kanalføringer, utført av SMARTVENT AS

Ventilasjon for bolig med branncellebegrensning

Garasjeport Integrert garasjeport

Antall: 1

Garasjeport integrert i bolig, med innkjøring mot sørøst

Garasjeport for integrert garasje i kjeller

Pipe Ildsted og pipe

Antall: 1

Ildsted og pipe må sluttmonteres, gjenstående arbeid ved midlertidig brukstillatelse

Peis og pipe i bolig

Fasade Kledning

🧱 Naturfarget stående trekledning

Naturfarget stående trekledning på alle fasader

Tradisjonell trekledning i naturfarge

Vinduer Takvindu

Antall: 5

Velux 3 i 1 løsning, inkludert rømingsvindu, dimensjoner 780x1800 mm og 780x1400 mm

Takvinduer for loftsetasje med god lysinnslipp og rømningsvei

Betong Kjeller og garasje

🧱 Thermomur

Kjeller og garasje oppføres i thermomur, gasstett konstruksjon

Betongkonstruksjon for kjeller og garasje

Maling Innvendig maling

Innvendig maling av vegger og tak

Overflatebehandling innvendig

Rekkverk Rekkverk på støttemurer

Rekkverk på støttemurer over 0,5 m høyde

Sikkerhetsrekkverk på støttemurer

Elektro El-installasjoner

El-installasjoner i henhold til gjeldende forskrifter

Elektriske installasjoner i bolig

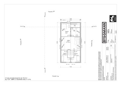
Plantegning

Enebolig 64.8 m²

Etasje 2 64.8 m²

Rom Areal Vinduer Dører
Soverom 201 14.7 m² 1 1
WIC 202 4.3 m² 1 1
Bad 203 8.8 m² 1 1
Lofstue 204 30.0 m² 3 1

Fasader

Enebolig

Nord
Materiale
Tre
Taktype
Saltak
Høyde
6.5 m
Mønehøyde
8.2 m
Vinduer
5
Dører
1
Synlige etasjer
2
Sør
Materiale
Tre
Taktype
Flatt tak
Høyde
6.5 m
Vinduer
3
Dører
2
Synlige etasjer
2

Hendelser

21.04.2026 Utsatt frist for ferdigattest gnr 87 bnr 321
20.04.2026 Ber om utsettelse på frist for ferdigattest gnr 87 bnr 321
12.05.2025 Gnr 87 bnr 321 - Skaftåsen 33 - midlertidig brukstillatelse for bolig
09.05.2025 Søknad om midlertidig brukstillatelse 87/321
05.05.2025 Supplering av søknad
29.08.2023 Underretning om matrikkelføring
25.08.2023 Oversendelse av vedtak - tillatelse til oppføring av bolig
09.08.2023 Gnr. 87 bnr. 321 - Skaftåsen 33 - tillatelse til oppføring av bolig
24.07.2023 Avklaring p-plass Skaftåsen 33
24.07.2023 Revidert situasjonskart med p-plasser
09.06.2023 Søknad om tillatelse i ett trinn
18.04.2023 Forberedende klagebehandling - klage på avslag om flytting av avkjørsel på gnr. 87 bnr. 321
29.03.2023 Klage på vedtak
10.03.2023 Oversendelse av avslag på søknad om flytting av avkjørsel og oppføring av bolig på gnr. 87 bnr. 321
09.03.2023 Avslag på søknad om flytting av avkjørsel og oppføring av bolig på gnr. 87 bnr. 321
03.03.2023 Tilbakemelding om vurdering fra veimyndighet
27.02.2023 Oversendelse av dokumenter - oppføring av enebolig på eiendom gnr 87 bnr 321
24.02.2023 Orientering om behandling av søknad på gnr 87 bnr 321
27.01.2023 Kommentar til veimyndighets uttalelse vedrørende flytting av innkjørsel
18.01.2023 Etterspør status i byggesaken
27.12.2022 Skaftåsen 33 Supplering av søknad 87/321
07.12.2022 Etterlysning av dispensasjonssøknad