NewConstruction Ferdigattest Enebolig

Ny enebolig med basseng og forstøtningsmurer på Skålevigsgarden 16A

📍 Skålevigsgarden 16A , 4625 FLEKKERØY

Nøkkelinfo

Sakstype
Nybygg
Bygningstype
Enebolig
Bruksareal
488 m²
Boenheter
1
Kommune
Kristiansand
Fylke
Agder
Gnr / Bnr
2 / 897
Saksnummer
23/23596
Fase
Ferdigattest

Om byggesaken

Ny enebolig på totalt 487,5 m² BRA fordelt på underetasje, 1. og 2. etasje med parkeringskjeller under terreng. Boligen har flere soverom, bad, vaskerom, bod, kjellerstue, heis og garasje på 106,1 m². Bygget har saltak og fasader i mur og tre, med pipe og garasjeport. Det etableres også et basseng og forstøtningsmurer, hvor murene mot vei skal være stablesteinsmur av naturstein. Forstøtningsmurene har høyde opptil 1,7 meter, med enkelte deler inntil 2,3 meter i innkjørsel. Basseng og murer er plassert delvis utenfor regulert byggegrense etter innvilget dispensasjon. Bygget er tilpasset terrenget med hevet gulv i 1. etasje og parkeringskjeller under. Uteområdene er delvis uferdige ved midlertidig brukstillatelse, med ferdigstillelse planlagt innen oktober 2026.

Produkter og materialer

Betong Parkeringskjeller og fundamenter

🧱 Betong

Parkeringskjeller under terreng, grunnmur og forstøtningsmurer

Betongarbeid for parkeringskjeller, grunnmur og forstøtningsmurer, inkl. radonsikring

VVS Sanitæranlegg og varme/kulde

Sanitæranlegg, varme- og kuldeinstallasjon, utvendig VA inkl. overvannssystem

VVS-installasjoner for bolig og uteområder

Mur Forstøtningsmurer

🧱 Naturstein stablesteinsmur

Forstøtningsmurer opp til 1,7 m høyde, med deler inntil 2,3 m i innkjørsel, stablesteinsmur av naturstein mot vei

Oppføring av forstøtningsmurer i naturstein, tilpasset terreng og reguleringsplan

Grunnarbeid Terrengarbeid og grunnarbeid

Grunn- og terrengarbeid inkl. åpen overvannshåndtering, tiltaksklasse 1

Grunnarbeid for enebolig med parkeringskjeller, terrengtilpasning og overvannshåndtering

Garasjeport Garasjeport

Antall: 1

Garasjeport til parkeringskjeller

Garasjeport til parkeringskjeller under terreng

Terrasse Uteområder og uteplass

Uteområder gjenstår ved midlertidig brukstillatelse, ferdigstilles våren/sommeren 2026

Opparbeidelse av uteområder og uteplass

Heis Løfteplattform/heis

Antall: 1

Heis installert i bolig for tilgjengelighet

Heis for tilgjengelighet mellom etasjer

Gulv Innvendige gulv

Innvendige gulv i bolig, type ikke spesifisert

Dører Innvendige og utvendige dører

Antall: 38

Totalt 38 dører inkludert ytterdører, innerdører og garasjeport

Dører til bolig, bod, garasje og heis

Bad Bad og våtrom

Antall: 4

Bad og våtrom med membranarbeid og fuktsikring

Bad og våtrom i bolig med nødvendig membran og radonsikring

Tak Saltak

Saltak på bolig og garasje

Taktekking med saltak på bolig og garasje

Vinduer Fasadevinduer

Antall: 37

Totalt 37 vinduer fordelt på alle etasjer og fasader

Vinduer til bolig i ulike rom og etasjer

Basseng Utendørs basseng

Antall: 1

Basseng plassert delvis utenfor regulert byggegrense, lavt i terrenget og lite synlig

Utendørs basseng til bolig

Trapper Innvendige trapper

Antall: 2

To trapper i bolig, inkludert trapp i hall og kjeller

Innvendige trapper mellom etasjer

Ventilasjon Ventilasjonsanlegg

Ventilasjonsanlegg for bolig

Ventilasjonsinstallasjon i bolig

Fasade Mur og tre

🧱 Mur og tre

Fasader i mur og tre, med pipe og garasjeport

Fasadearbeid med mur og tre, inkludert pipe og garasjeport

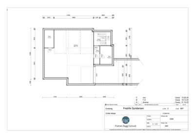
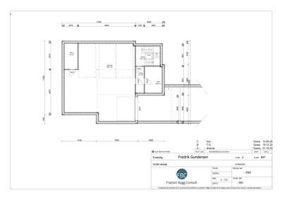
Plantegning

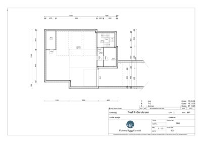
Enebolig 487.5 m²

Etasje 0 200.6 m²

Rom Areal Vinduer Dører
Gang 101 10.5 m² 0 2
Bod 102 7.4 m² 0 1
Bod 103 10.0 m² 0 1
Garasje 104 106.1 m² 0 0
Kjellerstue kjellerstue 26.1 m² 0 1
Soverom 1 soverom_1 13.8 m² 1 1
Gang gang 2.9 m² 0 2
Garderobe garderobe 10.0 m² 0 1
Bad bad 14.4 m² 0 1
Bod bod 12.2 m² 0 1
Vaskerom vaskerom 11.6 m² 0 1
Hall/trapp hall_trapp 11.4 m² 0 0
Soverom 1 Soverom 1 13.8 m² 0 2
Garasje Garasje 106.1 m² 0 0
Heis heis 4.1 m² 0 2
Heis 105 0.0 m² 0 0

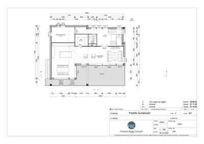
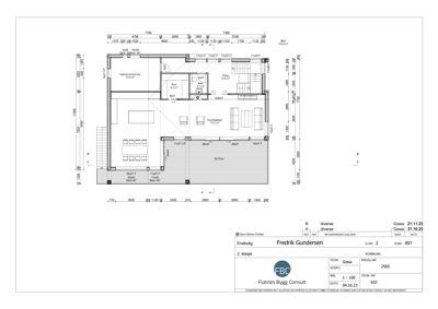
Etasje 1 164.1 m²

Rom Areal Vinduer Dører
kjellerstue 101 21.4 m² 1 1
Soverom 1 102 13.8 m² 1 1
Soverom 1 103 11.9 m² 1 1
Soverom 1 104 13.3 m² 1 1
Bad 105 14.4 m² 0 1
Bad 106 5.9 m² 0 1
Gang 107 8.8 m² 0 2
Gang 108 2.9 m² 0 1
Garderobe 109 10.0 m² 0 1
Vaskerom 110 11.6 m² 0 1
Bod 111 12.2 m² 0 1
Hall/trapp 112 11.4 m² 0 1
Bod 113 1.9 m² 0 1
Kjellerstue kjellerstue 21.4 m² 1 1
Soverom 1 Soverom 1 11.9 m² 0 2
Gang Gang 7.9 m² 0 3
Bad Bad 5.7 m² 0 1
Hall/trapp Hall/trapp 13.9 m² 0 2
Garderobe Garderobe 10.0 m² 0 1
Vaskerom Vaskerom 11.6 m² 0 1
Bod Bod 12.2 m² 0 1
heis 114 0.0 m² 0 0

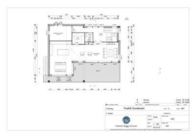
Etasje 2 122.8 m²

Rom Areal Vinduer Dører
Gjesterom/kontor Gjesterom/kontor 15.0 m² 3 1
Bod Bod 6.2 m² 1 1
Bad Bad 3.1 m² 0 1
Gang Gang 13.6 m² 0 2
Stue/kjøkken Stue/kjøkken 72.3 m² 4 1
Gjesterom/kontor 201 15.0 m² 1 1
Stue/kjøkken 202 72.3 m² 4 1
Gang 203 13.6 m² 0 2
Bod 204 6.2 m² 1 1
Bad 205 3.1 m² 0 1

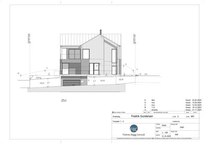
Fasader

Enebolig

Syd
Materiale
Mur
Taktype
Saltak
Høyde
6.5 m
Mønehøyde
8.2 m
Vinduer
10
Dører
2
Synlige etasjer
2
Nord
Materiale
Tre
Taktype
Saltak
Høyde
6.5 m
Mønehøyde
8.2 m
Vinduer
6
Dører
1
Synlige etasjer
2
Vest
Materiale
Tre
Taktype
Saltak
Høyde
6.5 m
Mønehøyde
8.2 m
Vinduer
2
Dører
1
Synlige etasjer
2
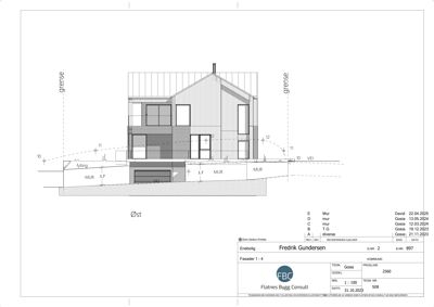
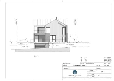
Øst
Materiale
Mur
Taktype
Saltak
Høyde
6.4 m
Mønehøyde
8.1 m
Vinduer
5
Dører
1
Synlige etasjer
2
Sør
Materiale
Mur
Taktype
Saltak
Høyde
6.5 m
Mønehøyde
8.2 m
Vinduer
10
Dører
2
Balkonger
1
Synlige etasjer
2

Hendelser

16.04.2026 2023023596-27 Skålevigsgarden 16A, 2/897 - midlertidig brukstillatelse for enebolig
23.03.2026 2023023596-26 Skålevigsgarden 16A Søknad om midlertidig brukstillatelse 2/897
01.08.2024 2023023596-25 Skålevigsgarden 16A 2/897/0/0, enebolig - rettelse av inkurie i vedtak datert 05.07.2024
05.07.2024 2023023596-24 Skålevigsgarden 16A - GB. 2/897 - tillatelse til oppføring av enebolig, basseng og forstøtningsmurer
28.06.2024 2023023596-23 Skålevigsgarden 16A 2/897- lokal godkjenning av foretak for grunn og terrengarbeider - tiltaksklasse 1 - Vesterøya Maskin AS
27.06.2024 2023023596-22 Skålevigsgarden 16A 2/897/0/0, supplering av søknad
27.06.2024 2023023596-21 Skålevigsgarden 16A 2/897/0/0, enebolig - Søknad lokal godkjenning
14.06.2024 2023023596-19 Utbyggingsstaben bekrefter - anleggsbidrag Skålevigsgarden 16A ok.
13.06.2024 2023023596-18 Skålevigsgarden 16A 2/897/0/0, søknad om tillatelse etter pbl 20-3 med 3 ukers saksbehandling
21.05.2024 2023023596-17 Skålevigsgarden 16A - GB. 2/897 - dispensasjon for endret avkjørsel, høyde på forstøtningsmurer, forstøtningsmurer og basseng utenfor byggegrenser, samt topp gulv 1. etg.