NewConstruction Ferdigattest Enebolig

Ny enebolig med sekundær boenhet i Skogerveien 29, Drammen

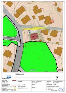
📍 Skogerveien 29 , 3041 DRAMMEN

Nøkkelinfo

Sakstype
Nybygg
Bygningstype
Enebolig
Bruksareal
158 m²
Boenheter
1
Kommune
Drammen
Fylke
Buskerud
Gnr / Bnr
111 / 549
Saksnummer
25/14838
Fase
Ferdigattest

Om byggesaken

Ny enebolig i to etasjer med totalt 158,4 m² BRA, hvorav 92,4 m² er bebygd areal, oppført i tradisjonell stil med trekledning og saltak. Boligen inneholder flere soverom, kjøkken/stue, bad/vaskerom og loftstue. Første etasje inkluderer en sekundær boenhet med egen inngang, men med intern forbindelse til hoveddelen. Bygget er plassert på en tomt på 716,9 m² med uteareal og parkering for tre biler. Fundament og grunnmur er i betong med radonsikring, og det er etablert lokal overvannshåndtering i tråd med NS 3845. Tekniske installasjoner inkluderer vann, avløp, elektrisitet, varmepumpe luft-til-luft, elektriske varmekabler og ovn/peis. Det er gjennomført uavhengig kontroll av lufttetthet og våtrom. Bygget har god arkitektonisk utforming og tilfredsstiller gjeldende krav i TEK17.

Arbeidsomfang

- Oppføring av ny enebolig med sekundær boenhet (ca 92,4 m² bebygd areal) - Tilpasning av grunnarbeider og fundamentering for ny bebyggelse - Oppføring av hovedhus og sekundær boenhet inkl. bærende konstruksjoner - Murerarbeid for yttervegger og innvendige romdelinger - Takkonstruksjon med takdekk og takrenner - Installasjon av vinduer og dører - Oppføring av balkong/parkeringsareal (36 m²) - Tilslutning til offentlig vann- og avløpsanlegg - Tilpasning av overvannshåndtering

Produkter og materialer

Dører Ytterdører

🧱 Tre eller glass

Antall: 7

Ytterdører til hovedinngang og sekundær boenhet, samt innvendige dører

Dører for adkomst og intern kommunikasjon

Gulv Innvendige gulv

Ikke spesifisert i dokumenter, men tømrerarbeid og innvendige overflater er utført

Innvendige gulv og overflater

Utendørs Uteareal og landskapsforming

Opparbeidelse med skjæring, fylling, natursteinmur inntil 1 m høyde, og lokal overvannshåndtering med pukkmagasin og regnbed

Terrengtilpasning og overvannshåndtering

Ventilasjon Ventilasjonsanlegg

Komplett ventilasjonsanlegg installert

Ventilasjon og klimainstallasjoner

VVS Sanitærinstallasjoner

Sanitærutstyr med bunnledninger og rørsystemer innvendig og utvendig, evt. vannbåren varme

Vann- og avløpsinstallasjoner

Betong Plasstøpte betongkonstruksjoner

🧱 Betong

Forskalings-, armerings- og utstøpningsarbeider for fundamenter, vegger, søyler, bjelker og dekker

Betongarbeider for bærende konstruksjoner

Vinduer Fasadevindu

🧱 Tre eller aluminium

Antall: 14

Vinduer i varierende størrelse for godt lysinnfall

Fasadevindu for oppholdsrom og soverom

VVS Varme

Elektriske varmekabler, ovn/kamin/peis, varmepumpe luft-til-luft

Varmefordeling og energiforsyning

Fasade Trekledning

🧱 Tre

Kombinasjon av stående og liggende kledning i tre

Utvendig trekledning for fasade

Grunnarbeid Fundament og grunnmur

🧱 Betong

Betongfundament med radonsikring, forstøtningsmur/stablemur

Grunnarbeid og fundamentering

Trapper Innvendig trapp

🧱 Tre eller betong

Antall: 1

Innvendig trapp mellom etasjer

Trapp for intern kommunikasjon mellom etasjer

Tak Saltak

🧱 Takstein eller tilsvarende

Saltak med ark i sørvendt takflate fjernet i illustrasjon

Tak med saltak konstruksjon

Parkering Biloppstillingsplasser

Antall: 3

Tre biloppstillingsplasser i tråd med kommuneplanens krav

Parkering for biler på egen tomt

Maling Innvendig og utvendig maling

Standard maling av treverk og innvendige flater antatt utført

Maling og overflatebehandling

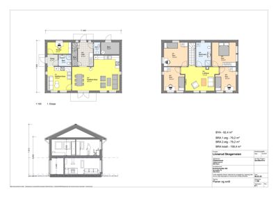
Plantegning

Enebolig 158.4 m²

Etasje 1 79.2 m²

Rom Areal Vinduer Dører
Kjøkken/stue 011 12.9 m² 1 1
Kjøkken/stue 007 32.2 m² 1 1
Hall 008 8.3 m² 0 2
Sov 001 12.9 m² 1 1
Sov 002 12.9 m² 1 1
Sov 005 10.4 m² 1 1
Sov 005 10.3 m² 1 1
Lofstue 004 17.2 m² 2 1
Bad/vask 006 8.2 m² 0 1

Etasje 2 79.2 m²

Rom Areal Vinduer Dører
Sov 001 12.9 m² 1 1
Sov 002 12.9 m² 1 1
Sov 005 10.4 m² 1 1
Sov 005 10.3 m² 1 1
Lofstue 004 17.2 m² 2 1
Bad/vask 006 8.2 m² 0 1

Hendelser

08.04.2026 Skogerveien 29, ferdigattest for oppføring av enebolig med sekundær boenhet ferdigattest
30.03.2026 Skogerveien 29, sekundær boenhet - Behov for klargjøring
17.03.2026 Skogerveien 29, etterspurt dokumentasjon
11.03.2026 Skogerveien 29, Tilleggsdokumentasjon til søknad om ferdigattest ferdigattest
10.03.2026 Skogerveien 29 Søknad om ferdigattest 111/549 ferdigattest
14.11.2025 Skogerveien 29, skade på naboeiendom etter byggearbeid/sprengningsarbeid - Skogerveien 17
02.09.2025 Skogerveien 29, tillatelse til oppføring av enebolig med en sekundær boenhet
26.08.2025 Skogerveien 29, spørsmål om sakens status
13.08.2025 Skogerveien 29, oversender etterspurt dokumentasjon - Overvannshåndtering og særskilt løyve
01.08.2025 Skogerveien 29, vi trenger flere opplysninger for å behandle søknaden din søknad
31.07.2025 Skogerveien 29, etterlyser svar på spørsmål om status
08.07.2025 Skogerveien 29, spørsmål om status
20.06.2025 Skogerveien 29 Supplering av søknad 111/549 søknad
16.06.2025 Skogerveien 29, vi trenger flere opplysninger for å behandle søknaden søknad
13.06.2025 111/549 Skogerveien 29, Kopi: Avkjørselstillatelse
23.05.2025 Skogerveien 29 Supplering av søknad 111/549 søknad
13.05.2025 Skogerveien 29, vi trenger flere opplysninger for å behandle søknaden din søknad
25.04.2025 Kopi: 111/549 Skogerveien 29 - Foreløpig tilbakemelding på søknad om avkjørsel søknad
14.04.2025 Skogerveien 29 Søknad om tillatelse i ett trinn 111/549 søknad