NewConstruction Ferdigattest Enebolig

Ny enebolig med dispensasjon i Skomakergata 7, Drammen

📍 Skomakergata 7

Nøkkelinfo

Sakstype
Nybygg
Bygningstype
Enebolig
Bruksareal
56 m²
Boenheter
1
Kommune
Drammen
Fylke
Buskerud
Saksnummer
23/09379
Fase
Ferdigattest

Om byggesaken

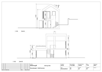
Ny frittstående enebolig i to etasjer med et bebygd areal på 45 m² og totalt bruksareal på 56,2 m² er oppført på en tomt på 212 m² i Skomakergata 7, Drammen. Boligen har saltak, trekledning og pipe, og inneholder blant annet kjøkken/stue, to soverom, bad, vaskerom, hall og walk-in-closet. Det er etablert terrasse på 11,7 m² i 1. etasje og takterrasse med utsikt mot fjorden. Eiendommen har én biloppstillingsplass på terreng. Utearealet er opparbeidet med gress, platting, sandkasse og lekeapparater, og det er gitt dispensasjon fra krav til minste uteoppholdsareal. Bygget er oppført med godkjente materialer og tekniske løsninger i henhold til TEK17, og det foreligger ferdigattest for tiltaket.

Arbeidsomfang

- Oppføring av ny enebolig på eiendommen Skomakergata 7 (gnr 112, bnr 515). - Opparbeidelse av uteoppholdsareal på 212 m² som oppfyller krav til lek, sittegruppe og beplantning. - Opparbeidelse av takterrasse på 15 m² med fjordutsikt, soling og rekreasjonsfunksjon. - Flytting og beholdelse av eksisterende epletrær og bresk på tomta. - Fjerning av lite uthus som står på tomta. - Tilrettelegging av parkeringsareal til bruk som lekareal når bilen ikke er parkert.

Produkter og materialer

Grunnarbeid Tomteutgraving og opparbeidelse

Tomteutgraving, planering, asfaltert innkjøring og parkeringsplass, tilbakefylling med jord og grus, gressplen, sandkasse og lekeapparater

Uteareal opparbeidelse

Ventilasjon Ventilasjonsanlegg med kanalføringer

Ventilasjonsanlegg for boenheten med kanalføringer

Ventilasjon for inneklima

Grunnarbeid Fundament og støpt plate

🧱 Betong

Støpt plate på mark med fundamentering og radontiltak

Grunnmur og fundamentering

Dører Ytterdører og terrassedør

🧱 Tre

Antall: 6

Ytterdører og dører til terrasse og bad

Dører for adkomst og utgang til terrasse

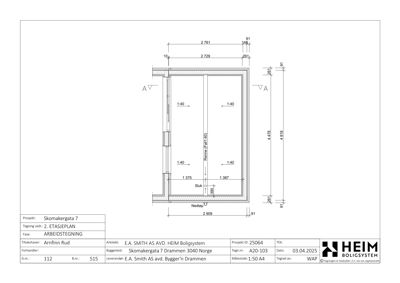
Trapper Innvendige trapper

Antall: 2

To trapper i boligen mellom etasjer

Innvendige trapper for etasjeadkomst

Vinduer Fasadevindu i tre

🧱 Tre med 3-lags energiglass

Antall: 8

Vinduer i fasader øst, vest, nord og sør, U-verdi ca 0,79 W/m²K

Vinduer i boligen for dagslys og utsyn

Elektro Elektriske installasjoner

Elektriske installasjoner i henhold til TEK17

El-installasjoner i bolig

Tak Saltak med takstein

🧱 Trekonstruksjon med takstein

Saltak med takstein, takflate ca. 48 m²

Tak på eneboligen

Terrasse Terrasse og platting

🧱 Tre

Terrasse på 11,7 m² i 1. etasje og platting ved inngang

Uteoppholdsareal på terreng og takterrasse

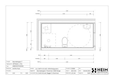
VVS Sanitæranlegg

Sanitærinstallasjoner i bad og vaskerom, inkl. vann og avløp tilkoblet kommunalt nett

Vann- og avløpsinstallasjoner

Pipe Murpipe

🧱 Murstein

Antall: 1

Pipe for ildsted i bolig

Pipe for oppvarming

Maling Utvendig og innvendig maling

Maling av trepanel utvendig og innvendige overflater

Overflatebehandling

Gulv Eikeparkett og fliser

🧱 Eik og keramiske fliser

Eikeparkett i oppholdsrom, fliser på bad

Innvendige gulvflater

Fasade Trekledning, stående smal panel

🧱 Tre

Stående smal trekledning i naturbasert farge

Utvendig kledning på alle fasader

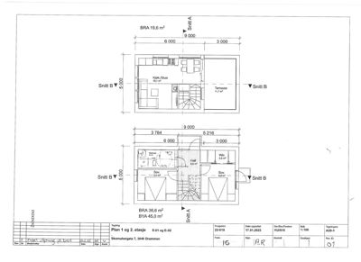
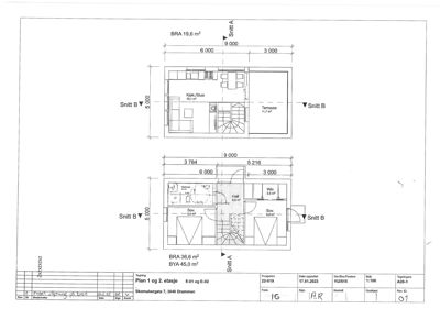
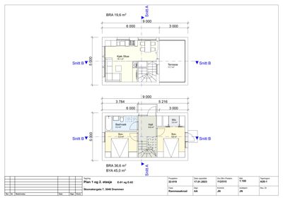
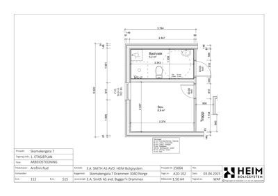
Plantegning

Enebolig 56.2 m²

Etasje 1 19.6 m²

Rom Areal Vinduer Dører
Kjøk./Stue 101 19.1 m² 1 2
Terrasse 102 11.7 m² 0 0

Etasje 2 36.6 m²

Rom Areal Vinduer Dører
Bad/vask 201 5.2 m² 0 1
Sov. 202 9.0 m² 1 1
Hall 203 8.9 m² 0 2
Wic 204 2.5 m² 0 1
Sov. 205 9.2 m² 1 1

Hovedbygg 0.0 m²

Etasje 1 0.0 m²

Rom Areal Vinduer Dører
Stue 112_515 90.0 m² 0 0
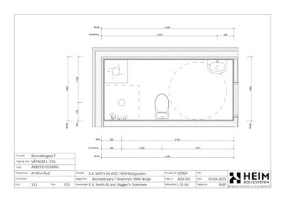
Våtrom 101 5.7 m² 0 1

Asbuilt innmålt støpt plate 0.0 m²

Etasje 0 0.0 m²

Rom Areal Vinduer Dører

VÅTROM 1. ETG. 10.5 m²

Etasje 1 10.5 m²

Rom Areal Vinduer Dører
Våtrom 101 10.5 m² 0 1

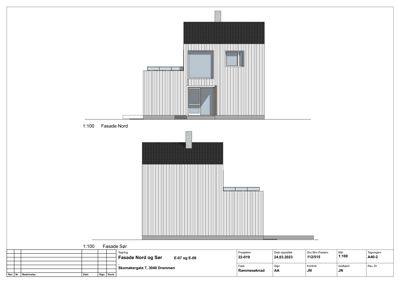
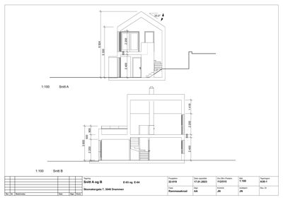
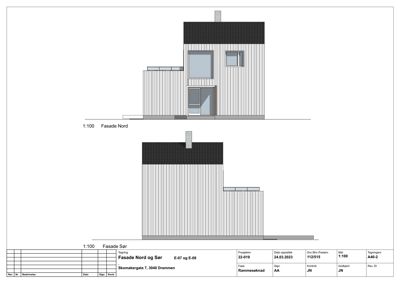
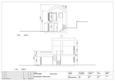
Fasader

Enebolig

Øst
Materiale
Tre
Taktype
Saltak
Høyde
5.3 m
Mønehøyde
6.9 m
Vinduer
4
Dører
1
Balkonger
1
Synlige etasjer
2
Vest
Materiale
Tre
Taktype
Saltak
Vinduer
5
Dører
1
Synlige etasjer
2
Nord
Materiale
Tre
Taktype
Saltak
Vinduer
2
Dører
1
Balkonger
1
Synlige etasjer
2
Sør
Materiale
Tre
Taktype
Saltak
Vinduer
0
Dører
0
Synlige etasjer
2

Hendelser

07.04.2026 Skomakergata 7, ferdigattest for oppføring av enebolig ferdigattest
30.03.2026 Skomakergata 7, Søknad om ferdigattest ferdigattest
27.11.2025 Skomakergata 7-innmåling bygg
05.06.2025 Skomakergata 7, igangsettingstillatelse for oppføring av enebolig igangsettingstillatelse
27.05.2025 Skomakergata 7, komplettering av søknad om oppføring av enebolig søknad
26.05.2025 Skomakergata 7, vi trenger flere opplysninger for å behandle søknaden din igangsetting av oppføring av enebolig igangsettingstillatelse
23.05.2025 Skomakergata 7, søknad om igangsettingstillatelse igangsettingstillatelse
25.08.2023 Skomakergata 7, særskilt løyve
25.08.2023 Skomakergata 7, rammetillatelse for oppføring av enebolig med dispensasjon fra krav til uteoppholdsareal rammetillatelse
23.08.2023 Saksprotokoll Hovtt, 22082023, Sak 95/23, Skomakergata 7, oppføring av enebolig med dispensasjon fra krav til uteoppholdsareal dispensasjon
07.06.2023 Skomakergata 7, supplerende dokumentasjon - sol/skyggediagrammer mm.
24.03.2023 Skomakergata 7, utfyllende opplysninger vedr. krav til minste uteoppholdsareal
09.03.2023 Skomakergata 7, vi trenger flere opplysninger for å behandle din rammesøknad om oppføring av enebolig med dispensasjon fra krav til minste uteoppholdsareal dispensasjon
04.03.2023 Skomakergata 7, melding om mottatt søknad søknad
03.03.2023 Skomakergata 7, Søknad om rammetillatelse rammetillatelse