NewConstruction Soeknad Enebolig

Ny enebolig med utleiedel på Slepphaugen 81, Oppdal

📍 Slepphaugen 81 , 7340 OPPDAL

Nøkkelinfo

Sakstype
Nybygg
Bygningstype
Enebolig
Bruksareal
288 m²
Boenheter
2
Kommune
Oppdal
Fylke
Trøndelag - Trööndelage
Gnr / Bnr
288 / 205
Saksnummer
2026/9963
Fase
Søknad

Om byggesaken

Ny enebolig med utleiedel på totalt 288 m² fordelt på to etasjer. Bygget har saltak og trekledning, med flere fasader utstyrt med vinduer og dører, inkludert garasjeporter på nord- og sørfasade. Første etasje inneholder blant annet hall, vaskerom, bod, TV-stue, gang, soverom og bad, samt carport på 73,6 m² og terrasse på 37,3 m². Andre etasje har stor stue/kjøkken på 60,67 m², fire soverom, to bad, flere boder og gangarealer. Prosjektet inkluderer også tekniske installasjoner som balansert ventilasjon, sanitæranlegg og radonsperre. Det er planlagt bruk av tre som hovedmateriale for fasader og saltak som taktype.

Produkter og materialer

Bad Bad og vaskerom

Antall: 3

Tre bad og ett vaskerom i bolig og utleiedel

Bad og vaskerom med sanitærinstallasjoner

Vinduer Fasadevindu

🧱 Tre med 3-lags energiglass

Antall: 21

Vinduer i tre på fasader øst (5), nord (8), vest (3) og sør (5)

Fasadevinduer i tre med energiglass for bolig og utleiedel

Ventilasjon Balansert ventilasjon

Antall: 2

Balansert ventilasjon med ett anlegg per boenhet

Ventilasjonsanlegg for bolig og utleiedel

Tømrer Trekonstruksjon

🧱 Tre

Tømrerarbeid og montering av trekonstruksjon

Tømrerarbeid for oppføring av boligens trekonstruksjon

Garasjeport Garasjeporter

Antall: 2

Garasjeporter på nord- og sørfasade

Garasjeporter tilknyttet boligens carport og garasje

Grunnarbeid Fundament og radonsperre

Grunn og fundament med radonsperre

Fundamentering med radonsperre for bolig

Dører Ytterdører og garasjeporter

🧱 Tre og glass

Antall: 5

Dører på fasade øst (1), vest (2), sør (1) og garasjeporter på nord og sørfasade

Ytterdører i tre og glass, samt garasjeporter tilknyttet bolig

Fasade Trekledning

🧱 Tre

Trekledning på alle fasader

Trekledning som ytterkledning på bolig

VVS Innvendig sanitæranlegg

Innvendig sanitæranlegg for bolig og utleiedel

Sanitæranlegg inkludert bad og vaskerom

Terrasse Terrasse

Antall: 1

Terrasse på 37,3 m² tilknyttet bolig

Utendørs terrasseareal

Tak Saltak

🧱 Tre konstruksjon med taktekking

Antall: 1

Saltak over hele bygget og carport

Saltak i tre for bolig og carport

Trapper Innvendige trapper

Antall: 2

To trapper i bolig mellom etasjer

Innvendige trapper for adkomst mellom etasjer

Gulv Innvendige gulvflater

Gulv i bolig og utleiedel, spesifikasjoner ikke detaljert i dokumenter

Innvendige gulvflater i bolig og utleiedel

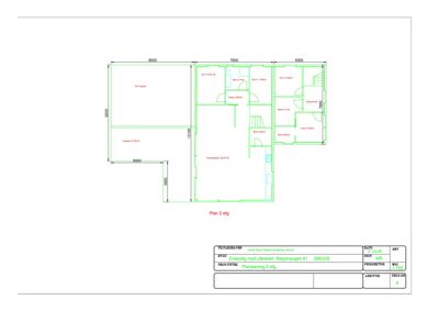
Plantegning

Enebolig 288.0 m²

Etasje 2 288.0 m²

Rom Areal Vinduer Dører
Stue/kjøkken 201 60.7 m² 0 1
Sov 1 202 7.3 m² 0 1
Sov 2 203 7.6 m² 0 1
Sov 3 204 9.6 m² 0 1
Sov 4 205 7.5 m² 0 1
Bad 206 4.8 m² 0 1
Bad 207 6.1 m² 0 1
Gang 208 8.6 m² 0 0
Gang 209 2.9 m² 0 0
Bod 210 3.4 m² 0 1
Bod 211 2.9 m² 0 1
Tak Carport 212 73.6 m² 0 0
Terrasse 213 37.3 m² 0 0

Fasader

Enebolig

Øst
Materiale
Tre
Taktype
Saltak
Vinduer
5
Dører
1
Synlige etasjer
2
Nord
Materiale
Tre
Taktype
Saltak
Vinduer
8
Dører
0
Synlige etasjer
2
Vest
Materiale
Tre
Taktype
Saltak
Vinduer
3
Dører
2
Balkonger
1
Synlige etasjer
2
Sør
Materiale
Tre
Taktype
Saltak
Vinduer
5
Dører
1
Balkonger
1
Synlige etasjer
2
Ukjent
Taktype
Saltak
Vinduer
0
Dører
0
Synlige etasjer
2

Hendelser

21.04.2026 288/205 - Retur av byggesak
20.04.2026 288/205 - Søknad om tillatelse til tiltak på eiendom