NewConstruction UnderBehandling Enebolig

Ny enebolig etter riving av brannskadd bolig på Småvikane 6

📍 Småvikane 6 , 5410 SAGVÅG

Nøkkelinfo

Sakstype
Nybygg
Bygningstype
Enebolig
Bruksareal
464 m²
Boenheter
1
Kommune
Fitjar
Fylke
Vestland
Gnr / Bnr
51 / 6
Saksnummer
2025/1520
Fase
Under behandling

Om byggesaken

Ny enebolig på totalt 464 m² BRA fordelt på tre etasjer bygges på tomt hvor tidligere enebolig på 169 m² ble revet etter brannskade. Boligen har 1 trapp, 14 vinduer og 18 dører, og består av flere soverom, bad, kjøkken, stue, TV-stue, trimrom, bod og teknisk rom. Fasaden er i tre med saltak og flatt tak, og bygget har pipe. Det etableres minirenseanlegg Biovac Dynamic 2 med slamavskiller for avløp, og det er gjennomført grundige grunnundersøkelser med infiltrasjonstest og kornfordelingsanalyse. Det foreligger godkjente ansvarsretter for prosjektering og utførelse, og ferdigattest for riving er gitt. Ny bolig har redusert mønehøyde og er plassert med dispensasjon for strandsonen, med godkjent situasjonskart og nabovarsling uten merknader.

Produkter og materialer

Grunnarbeid Tomteplanering og drenering

Antall: 1

Planering og rydding av tomt etter riving, etablering av overvannsrør

Grunnarbeid for ny bolig og avløpsanlegg

Betong Betongkonstruksjoner og fundamentering

Antall: 1

Utført av Sætrevik Byggservice AS, sentral godkjenning tiltaksklasse 1

Betongarbeid for fundamentering og radonmembran

Tak Saltak og flatt tak

🧱 Tre, taktekking ikke spesifisert

Antall: 1

Saltak på fasader Sør/Øst, Sør/Vest og Nord/Vest, flatt tak på Nord/Øst

Tak med saltak og flatt tak på ny bolig

Grunnarbeid Grunnundersøkelser og utstikking

Antall: 1

Sjakting, skovelboring, infiltrasjonstest, kornfordelingsanalyse, koordinater for bygg

Grunnundersøkelser for avløpsanlegg og bygg, utstikking av husets hjørner

Vinduer Fasadevindu i tre

🧱 Tre

Antall: 14

Vinduer i fasader Sør/Øst, Nord/Øst, Sør/Vest og Nord/Vest

Totalt 14 vinduer fordelt på 3 etasjer

Trapper Innvendig trapp

Antall: 1

Innvendig trapp mellom etasjer, tegnet av leverandør

En trapp i bolig

Tømrer Tømrerarbeid og montering av trekonstruksjoner

🧱 Tre

Antall: 1

Utført av Smith Byggsystemer AS, sentral godkjenning tiltaksklasse 2

Oppføring av trekonstruksjoner for ny enebolig i tre med saltak og flatt tak

Terrasse Terrasse på 52,7 m²

🧱 Tre

Antall: 1

Terrasse tilknyttet bolig, 52,7 m² i 1. etasje

Utendørs terrasse i tre

Gulv Innvendige gulvflater

Ikke spesifisert i dokumentene

Innvendige gulv i bolig

Maling Innvendig og utvendig maling

Ikke spesifisert i dokumentene

Maling av fasade og innvendige flater

Elektro Elektrisk installasjon for minirenseanlegg

Antall: 1

15A kurs med jordfeilautomat, overspenningsvern, strømtilførsel til styreskap

Elektrisk installasjon for drift av minirenseanlegg

VVS Minirenseanlegg Biovac Dynamic 2 med slamavskiller

🧱 Glassfiber tank, PE rør

Antall: 1

Minirenseanlegg dimensjonert for 10 pe, med biologisk/kjemisk rensing, styreskap, alarmsystem og krav til slamtømming

Avløpsrensing med minirenseanlegg og slamavskiller, inkludert utslippsgrøft med Ø110 mm rør med hull

Dører Ytterdører og innerdører

Antall: 18

Ytterdører og innerdører i bolig, inkludert terrassedør

Totalt 18 dører i boligens 3 etasjer

Ventilasjon Ventilasjonssystem for bolig

Antall: 1

Prosjektert og utført av Sætrevik Byggservice AS

Ventilasjon i bolig

Riving Miljøsanering og riving av brannskadd enebolig

Antall: 1

Saneringsrapport med asbest, PCB og ftalater, avfallshåndtering med dokumentasjon og sluttrapport

Riving og miljøsanering av brannskadd enebolig oppført i 1952, totalrenovert i 2005

Plantegning

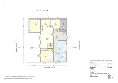
Erstatningsbolig 463.7 m²

Etasje 2 154.9 m²

Rom Areal Vinduer Dører
Stue 201 67.8 m² 3 1
Sov. 202 14.6 m² 1 1
Sov. 203 8.5 m² 1 1
Kjøkken 204 26.4 m² 1 1
Gang 205 6.4 m² 0 2
Wc 206 5.3 m² 0 1
Terrasse 207 9.8 m² 0 1

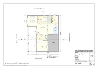
Etasje 1 154.9 m²

Rom Areal Vinduer Dører
TV-stue 101 32.7 m² 1 3
Sov. 102 17.4 m² 1 2
Sov. 103 10.2 m² 1 2
Sov. 104 10.2 m² 1 2
Sov. 105 20.5 m² 1 2
Gang 106 22.6 m² 0 4
Bad 107 13.3 m² 0 1
Tehn./vask. 108 12.2 m² 0 1
Bod 109 9.5 m² 0 1

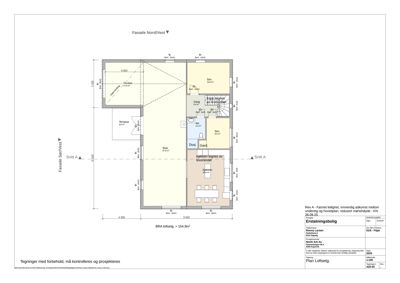
Etasje 0 153.9 m²

Rom Areal Vinduer Dører
Kjellerstue/hall Kjellerstue/hall 58.2 m² 0 3
Soverom Sov. 12.7 m² 1 1
Gang Gang 5.2 m² 0 3
Soverom Sov. 7.7 m² 1 1
Bad Bad 6.7 m² 0 1
Soverom Sov. 7.7 m² 1 1
Bod Bod 18.5 m² 0 2
Trimrom Trimrom 31.5 m² 0 1

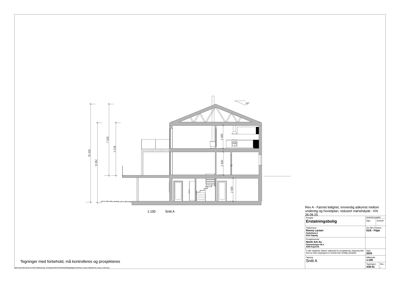
Fasader

Erstatningsbolig

Sør/Øst
Materiale
Tre
Taktype
Saltak
Høyde
5.1 m
Mønehøyde
7.1 m
Vinduer
4
Dører
1
Balkonger
1
Synlige etasjer
2
Nord/Øst
Materiale
Tre
Taktype
Flatt tak
Høyde
5.1 m
Mønehøyde
5.1 m
Vinduer
7
Dører
1
Synlige etasjer
1
Sør/Vest
Materiale
Tre
Taktype
Saltak
Høyde
5.1 m
Mønehøyde
8.1 m
Vinduer
9
Dører
2
Balkonger
2
Synlige etasjer
3
Nord/Vest
Materiale
Tre
Taktype
Saltak
Høyde
5.1 m
Mønehøyde
8.1 m
Vinduer
6
Dører
1
Synlige etasjer
3

Hendelser

09.04.2026 51/6 Ferdigattest for riving av brannskada bustad
08.04.2026 51/6 Førespurnad om tilleggsinformasjon grunna manglar i søknad
08.04.2026 51/6 Innsending av tilleggsinformasjon
26.03.2026 51/6 Søknad om ferdigattest
15.12.2025 51/6 Dåfjorden Vedtak- Løyve til oppføring av einebustad og etablering av minireinseanlegg, løyve til utslepp
04.12.2025 51/6 Utsleppsøknad Småvikane 6, 5410 Sagvåg
21.11.2025 51/6 Supplerande dokumentasjon
19.11.2025 51/6 Revidert situasjonskart m/ rutenett
19.11.2025 51/6 Framleis manglar i byggesøknad
14.11.2025 51/6 Innsending av tilleggsinformasjon
06.11.2025 51/6 Førespurnad om tilleggsinformasjon grunna manglar i søknad
28.10.2025 51/6 - Søknad om oppføring av bustad
22.09.2025 51/6 Dåfjorden Vedtak- løyve til riving av brannskadd einebustad
12.09.2025 51/6 Søknad om løyve til tiltak - Riving av einebustad
12.09.2025 Stadfesting på motteken søknad - 51/6 Søknad om løyve til tiltak - Riving av einebustad