NewConstruction UnderBehandling Enebolig

Ny enebolig med dobbel garasje i Solastrandvegen 66, Sola

📍 Solastrandvegen 66 , 4055 SOLA

Nøkkelinfo

Sakstype
Nybygg
Bygningstype
Enebolig
Bruksareal
406 m²
Boenheter
1
Kommune
Sola
Fylke
Rogaland
Gnr / Bnr
14 / 140
Saksnummer
25/815
Fase
Under behandling

Om byggesaken

Ny enebolig på totalt 406,4 m² fordelt på to etasjer bygges på Solastrandvegen 66 i Sola kommune. Boligen har 6 soverom, to stuer, kjøkken, vaskerom, to bad, garderober, gang, entre, trimrom, verksted, vinrom, kontor og dobbel garasje på 37,2 m². Bygningen har flatt tak og fasader i tre og stål, med pipe og garasjeport. Eksisterende bolig og garasje fra før 1960 rives. Ny bolig har betydelig større bruksareal (387,2 m²) enn dagens bebyggelse (83 m²). Tomten ligger i LNF-område med dispensasjon fra kommuneplanens forbud mot nye boliger. Tiltaket er nabovarslet uten merknader, men har fått negativ innstilling fra kommunedirektør og Statsforvalteren pga. natur- og landbrukshensyn.

Produkter og materialer

Isolasjon Bygningsisolasjon

Isolasjon i vegger, tak og gulv for bolig og garasje

Elektro Elektrisk anlegg

Elektrisk installasjon for bolig og garasje

VVS Sanitær og varme

VVS-installasjoner for bolig med bad, WC, vaskerom og varme

Bad Baderomsinnredning

Antall: 2

Bad i begge etasjer med sanitærutstyr

Fasade Tre- og stålfasade

🧱 Tre og stål

Antall: 1

Fasade i tre og stål med svart farge på stålfasade

Betong Fundament og grunnmur

Betongfundament og grunnmur for ny bolig og garasje

Dører Ytterdører og glassdører

🧱 Tre og glass

Antall: 12

Ytterdører og glassdører til hagestuer og innganger, totalt 12 dører

Tak Flatt tak

Antall: 1

Flatt tak på bolig og garasje, med pipe

Grunnarbeid Tomteopparbeidelse

Opparbeidelse av tomt til boligformål, inkludert opparbeidelse av innkjørsel og utearealer

Grunnarbeid for ny bolig og garasje på tomt som tidligere har stått med bolig og garasje til forfall

Pipe Pipemur

Antall: 1

Pipe til bolig

Tømrer Bygging av bolig og garasje

🧱 Treverk

Tømrerarbeid for oppføring av ny enebolig med dobbel garasje

Gulv Innvendige gulv

Innvendige gulv i bolig, inkludert bad og oppholdsrom

Terrasse Hagestue

Antall: 2

To hagestuer på 10 m² hver med glassvegger og dører

Garasjeport Dobbel garasjeport

Antall: 1

Garasjeport til dobbel garasje på 37,2 m²

Vinduer Fasadevindu

🧱 Tre og stål ramme

Antall: 20

Fasadevindu i tre og stål, totalt ca. 20 vinduer fordelt på begge etasjer og hagestuer

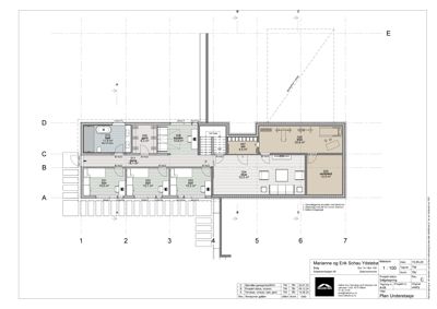
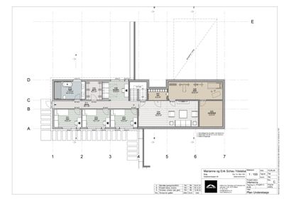
Plantegning

Enebolig 406.4 m²

Etasje 1 226.2 m²

Rom Areal Vinduer Dører
Sov 101 19.0 m² 1 1
Stue 102 41.4 m² 3 1
Gang 103 5.6 m² 0 2
Kjøkken 105 34.8 m² 2 1
Vask/bod 106 12.0 m² 1 1
WC 107 2.3 m² 0 1
Gard 108 4.8 m² 0 1
Entre 109 5.0 m² 0 1
Gard 110 10.0 m² 0 1
Bad 111 6.7 m² 0 1
Garasje 113 37.2 m² 0 1
Hagestue 116 10.0 m² 3 1
Hagestue 104 10.0 m² 3 1

Etasje 0 180.2 m²

Rom Areal Vinduer Dører
Sov 001 10.6 m² 1 1
Sov 002 10.7 m² 1 1
Sov 003 10.3 m² 1 1
Stue 004 33.6 m² 1 1
Verksted 005 12.9 m² 1 1
Trim 006 20.8 m² 1 1
Vin 007 4.5 m² 1 1
Kontor 008 10.8 m² 1 1
Gard 009 6.3 m² 1 1
Bad 010 11.9 m² 0 1
Gang 011 14.1 m² 0 0

Fasader

Enebolig

Nordvest
Materiale
Tre
Taktype
Flatt tak
Vinduer
2
Dører
1
Synlige etasjer
1
Nordøst
Materiale
Tre
Vinduer
4
Dører
2
Synlige etasjer
1
Sørøst
Materiale
Stål
Taktype
Flatt tak
Vinduer
1
Dører
1
Synlige etasjer
1

Hendelser

06.03.2026 Vedtak i klagesak - byggesak - Sola 14/140 - Solastrandvegen 66 - oppføring av enebolig - Rogaland fylke
15.07.2025 Behandling av søknad - Oppføring av bolig - Solastrandvegen 66
22.05.2025 Behandling av søknad - Oppføring av bolig - Solastrandvegen 66