NewConstruction UnderBehandling Enebolig

Ny enebolig med integrert garasje på Søre Slettevollen 10

📍 Søre Slettevollen 10 , 6908 FLORØ

Nøkkelinfo

Sakstype
Nybygg
Bygningstype
Enebolig
Bruksareal
321 m²
Boenheter
1
Kommune
Kinn
Fylke
Vestland
Gnr / Bnr
23 / 307
Saksnummer
2026/1637
Fase
Under behandling

Om byggesaken

Ny enebolig med integrert garasje bygges på Søre Slettevollen 10 i Florø. Boligen har et totalt bruksareal på ca. 320,8 m² og et bebygd areal (BYA) på 205,4 m², fordelt på en etasje med rom som stue/kjøkken, bad, vaskerom, gang, garderobe og matbod. Garasjen er på ca. 43,4 m² med pulttak og trevegger, integrert i boligens arkitektoniske uttrykk. Boligen har moderne fasade med blanding av tradisjonell stående kledning og fasadeplater, store glassflater i front, og pulttak. Bygget er nedgravd i bakkant for å tilpasse terrenget, og uteområdet har et sørvendt privat uteoppholdsareal på 254 m². Grunnforholdene er dokumentert som stabile med masseutskifting til fjell. Prosjektet har godkjent dispensasjon for tomteutnyttelse på 32,7 % BYA, noe som overstiger regulert 25 %, men vurderes som forsvarlig. Garasjen er plassert innenfor byggegrense etter revidert søknad. Det er godkjent sanitærmelding for tilkobling til kommunalt vann og avløp. Prosjektet har full ansvarsrett og kontrollordning med flere involverte fagforetak.

Produkter og materialer

Dører Ytterdører og innerdører

🧱 Tre/kompositt

Antall: 7

1 ytterdør i stue/kjøkken, 1 dør til bad, 1 dør til vaskerom, 2 dører i gang, 1 dør til garderobe, 1 dør til matbod

Dører for adkomst og romavgrensning i bolig

Fasade Tre kledning og fasadeplater

🧱 Tre og fasadeplater

Blanding av tradisjonell stående kledning og fasadeplater

Fasadebekledning for bolig og garasje

Betong Gulvplate og støttemurer

🧱 Plasstøpt betong

Støping av gulvplate, støttemurer under 2 m

Betongarbeid for fundament og konstruksjon

Tak Pulttak

🧱 Taktekking ikke spesifisert

Antall: 2

Pulttak på bolig og garasje

Taktekking for bolig og garasje

VVS Rørleggerarbeid innvendig og utvendig

Tilkobling til kommunalt vann- og avløpsnett, godkjent sanitærmelding

VVS-installasjoner for bolig

Ventilasjon Ventilasjonsanlegg og kanaler

Prosjektering og montering av ventilasjonsanlegg

Ventilasjon for bolig

Garasjeport Port til garasje

🧱 Ikke spesifisert

Antall: 1

Garasjeport på garasje med pulttak

Port for biladkomst til garasje

Avfallshåndtering Kildesortering og deponering

Avfallsplan med kildesortering av byggeavfall

Miljømessig håndtering av byggeavfall

Puss og flis Membranlegging og flisarbeid

Puss- og flisarbeider inkludert membranlegging i våtrom

Overflatebehandling i bad og våtrom

Isolasjon Isolasjon mot grunn og i vegger

🧱 200 mm isolasjon mot grunn

Isolasjon i gulv og vegger iht. tegninger

Isolasjon for energieffektivitet

Maling Utvendig og innvendig maling

Maling av fasade og innvendige overflater

Overflatebehandling for beskyttelse og estetikk

Tømrer Byggeteknikk og montering

🧱 Treverk

Tømrerarbeid for bolig og garasje, montering og byggeteknikk

Tømrerarbeid for konstruksjon og innredning

Vinduer Fasadevindu

🧱 Glass, tre/aluminium

Antall: 7

Store glassflater i front, 6 vinduer i stue/kjøkken, 1 vindu i matbod

Fasadevinduer i boligen for dagslys og utsyn

Elektro El-installasjoner

Prosjektering og utførelse av elektroarbeid

Elektriske installasjoner i bolig

Grunnarbeid Masseutskifting og fundamentering

🧱 Masseutskifting til fjell, betongfundament

Dokumentert masseutskifting og fundamentering på fjell

Grunnarbeid for stabil byggegrunn

Trapper Innvendig trapp

🧱 Tre

Antall: 1

Innvendig trapp mellom etasjer

Trapp for intern kommunikasjon i boligen

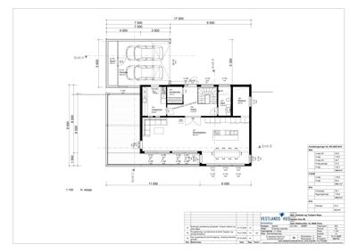
Plantegning

Enebolig 205.1 m²

Etasje 1 205.1 m²

Rom Areal Vinduer Dører
Stue/kjøkken 101 58.4 m² 6 1
Bad 102 4.9 m² 0 1
Vaskerom 103 9.6 m² 0 1
Gang 104 11.6 m² 0 2
Garderobe 105 3.5 m² 0 1
Matbod 106 6.8 m² 1 1

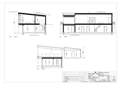
Fasader

Garasje

Øst
Materiale
Tre
Taktype
Pulttak
Vinduer
0
Dører
0
Synlige etasjer
1
Nord
Taktype
Flatt tak
Vinduer
0
Dører
0
Synlige etasjer
1
Sør
Materiale
Tre
Taktype
Flatt tak
Vinduer
1
Dører
1
Synlige etasjer
1
Vest
Taktype
Pulttak
Vinduer
0
Dører
0
Synlige etasjer
1

Hendelser

17.04.2026 Vedtak - Gbnr 23/307 - Søre Slettevollen 10 - Einebustad og garasje
17.04.2026 2128: Tilkobling vann og avløp Søre Slettevollen 10, saksnummer 26/1637
10.04.2026 Etterspør dokumentasjon, Søre Slettevollen 10, saksnummer 26/1637
31.03.2026 Supplering av søknad gbnr 23/307
31.03.2026 Supplering av søknad gbnr 23/307
24.03.2026 Tilbakemelding på søknad om tiltak,
24.03.2026 Svar på tilbakemelding på søknad gbnr 23/307
19.02.2026 Suplering til søknad om tillatelse i ett trinn gbnr 23/307
03.02.2026 Søknad om tillatelse i ett trinn gbnr 23/307