Facade
Fasadetegning som viser bygningens utseende fra vest og øst.
1 / 8
NewConstruction
UnderBehandling
Enebolig
Ny enebolig med carport i Sørreisaveien 477, Sørreisa
📍 Sørreisaveien 477 , 9310 SØRREISA
Nøkkelinfo
- Sakstype
- Nybygg
- Bygningstype
- Enebolig
- Bruksareal
- 145 m²
- Boenheter
- 1
- Kommune
- Sørreisa
- Fylke
- Troms - Romsa - Tromssa
- Gnr / Bnr
- 2 / 105
- Saksnummer
- 2025/304
- Fase
- Under behandling
Om byggesaken
Ny enebolig i én etasje på 145,2 m² BRA med tilhørende carport oppføres på eiendommen Sørreisaveien 477. Boligen erstatter en tidligere bolig som ble totalskadet i brann, og er plassert mot vest for bedre solforhold, utsikt og adkomst. Bygget har saltak og trekledning, med moderne arkitektonisk uttrykk tilpasset omkringliggende bebyggelse. Planløsningen inkluderer tre soverom, stue, kjøkken, bad, vaskerom, WC, bod, gang og entre. Fasadene har flere vinduer og dører, og det er pipe og garasjeport. Tomten er utvidet med arealoverføring, og tiltaket har dispensasjon fra byggegrense mot fylkesvei og byggeforbud i strandsonen.
Produkter og materialer
Gulv
Innvendige gulv
Innvendige gulv i boligrom
Garasjeport
Carport med port
Antall: 1
Carport med garasjeport tilknyttet boligen
Vinduer
Fasadevindu
Antall: 13
Totalt 13 fasadevinduer fordelt på soverom, stue og kjøkken
Tak
Saltak
Saltak på hele bygget
Saltak som takkonstruksjon
Maling
Innvendig og utvendig maling
Maling av innvendige og utvendige flater
Fasade
Trekledning
🧱 Tre
Trekledning på alle fasader
Yttervegger kledd med trepanel
Bad
Baderomsinnredning
Antall: 1
Bad med sanitærutstyr og fliser
Pipe
Murt pipe
Antall: 1
Pipe på taket for ildsted
Dører
Ytterdører og terrassedører
Antall: 9
9 dører inkludert inngangsdør og dører til uteområder
Tømrer
Bygging av enebolig
Tømrerarbeid for oppføring av bolig i tre
Elektro
Elektrisk anlegg
Elektrisk installasjon for bolig
VVS
Sanitær og varme
Installasjon av vann, avløp, varme og ventilasjon
Grunnarbeid
Tomtearbeid og fundamentering
Fundament og terrengtilpasning i bratt fjellskrent
Grunnarbeid for fundamentering og terrengtilpasning
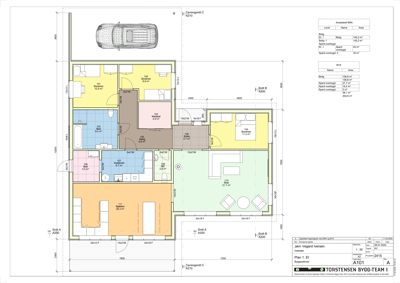
Plantegning
Enebolig 145.2 m²
Etasje 1 145.2 m²
| Rom | Areal | Vinduer | Dører |
|---|---|---|---|
| Soverom 100 | 8.9 m² | 1 | 1 |
| Soverom 101 | 10.5 m² | 1 | 1 |
| Klesbod 102 | 4.9 m² | 0 | 1 |
| Bad 103 | 9.5 m² | 0 | 1 |
| Soverom 104 | 11.3 m² | 1 | 1 |
| Gang 105 | 9.8 m² | 0 | 3 |
| Entre 106 | 4.7 m² | 0 | 1 |
| Vaskerom 107 | 8.7 m² | 0 | 1 |
| WC 108 | 2.8 m² | 0 | 1 |
| Bod 109 | 4.5 m² | 0 | 1 |
| Stue 110 | 31.7 m² | 2 | 1 |
| Kjøkken 111 | 28.3 m² | 2 | 1 |
Fasader
Enebolig
Vest
- Materiale
- Tre
- Taktype
- Saltak
- Vinduer
- 2
- Dører
- 1
- Synlige etasjer
- 1
Øst
- Materiale
- Tre
- Taktype
- Saltak
- Vinduer
- 3
- Dører
- 0
- Synlige etasjer
- 1
Nord
- Materiale
- Tre
- Taktype
- Saltak
- Vinduer
- 1
- Dører
- 1
- Synlige etasjer
- 1
Sør
- Materiale
- Tre
- Taktype
- Saltak
- Vinduer
- 5
- Dører
- 1
- Synlige etasjer
- 1
Hendelser
21.04.2026
Søknad om utslipstilatelse Sørreisaveien 477
27.05.2025
Dispensasjon strandsonen og byggegrense fylkesvei - gnr 2 bnr 105