NewConstruction UnderBehandling Enebolig

Ny enebolig med underjordisk garasje på Strømnesåsen 26, Råde

📍 Strømnesåsen 26 , 1643 RÅDE

Nøkkelinfo

Sakstype
Nybygg
Bygningstype
Enebolig
Bruksareal
350 m²
Boenheter
1
Kommune
Råde
Fylke
Østfold
Gnr / Bnr
99 / 27
Saksnummer
2024/809
Fase
Under behandling

Om byggesaken

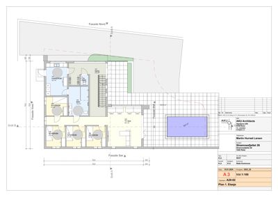
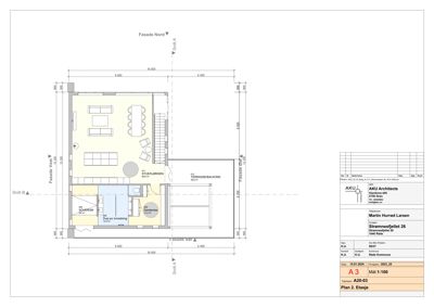
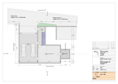
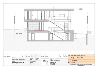
Ny enebolig på totalt ca. 350 m² BRA fordelt på to etasjer med saltak og flatt tak, plassert på Strømnesåsen 26 i Råde kommune. Boligen har integrert underjordisk garasje på ca. 39 m² med adkomst fra nord, samt flere soverom, bad, vaskerom, teknisk rom, stuer og terrasse/balkongarealer på begge etasjer. Bygget er tilpasset tomtens terreng med minimal fylling og skjæring, og har varmekabler i nedkjøringen til garasjen. Fasader er i tre med saltak og flatt tak, og det er lagt vekt på et harmonisk uttrykk med variasjon i kledning og farger. Utearealene oppfyller krav til minimum uteoppholdsareal (MUA) på over 300 m². Bygget skal ha vannbåren varme i alle plan. Prosjektet har gjennomgått flere søknadsrunder med oppdaterte tegninger og redegjørelser, og er under behandling med krav om tilpasning til reguleringsplan og byggegrenser.

Produkter og materialer

Isolasjon Bygningsisolasjon

Isolasjon i vegger, tak og gulv iht. TEK

Isolasjon for energieffektiv bolig

Gulv Parkett og fliser

Standard parkett i oppholdsrom, fliser på bad og vaskerom

Innvendige gulv med parkett og fliser i våtrom

Elektro Elektrisk anlegg

Standard elektrisk installasjon iht. TEK

Elektrisk anlegg for bolig og garasje

Betong Kjeller og garasje

Betongkonstruksjoner for kjeller og garasje

Betongkonstruksjoner for underjordisk garasje og kjeller

Fasade Trefasade med saltak og flatt tak

🧱 Tre

Saltak med mønehøyde opptil 8,6 m, flatt tak på deler av bygget, ikke-reflekterende takmateriale

Trefasader med saltak og flatt tak, harmonisk uttrykk med variasjon i kledning og farge

Bad Sanitærutstyr og innredning

Antall: 3

Bad og wc med dusj, toalett og innredning iht. plantegninger

Bad og wc med komplett sanitærutstyr

Dører Ytterdører og balkongdører i tre

🧱 Tre

Antall: 15

Ytterdører og balkongdører iht. plantegninger, inkludert garasjeport i kjeller

Ytterdører og balkongdører i tre, samt garasjeport

Garasjeport Integrert garasjeport i kjeller

Antall: 1

Garasje på 38,8 m² under terreng med adkomst fra nord, varmekabler i nedkjøring

Integrert underjordisk garasje med port og varmekabler i nedkjøringsrampe

Ventilasjon Mekanisk ventilasjon

Ventilasjonsanlegg iht. TEK

Mekanisk ventilasjon med varmegjenvinning

Vinduer Fasadevindu i tre

🧱 Tre

Antall: 39

Vinduer fordelt på to etasjer, inkludert balkongvinduer, antall og plassering iht. tegninger

Fasadevinduer i tre med varierende størrelse tilpasset romfunksjoner

Grunnarbeid Tomtearbeid og fundamentering

Grunnarbeid med terrengtilpasning, støttemurer og varmekabler i nedkjøring

Grunnarbeid med tilpasning til terreng og fundamentering av bolig og garasje

Maling Utvendig og innvendig maling

Maling av trefasader og innvendige overflater

Maling av fasader og innvendige vegger og tak

Terrasse Terrasse og balkong

🧱 Tre eller kompositt

Antall: 2

Terrasse på 31,7 m² og balkong på 44,2 m² iht. tegninger

Utendørs terrasse og balkongarealer tilknyttet boligen

Trapper Innvendig trapp

Antall: 1

Innvendig trapp mellom etasjer iht. plantegninger

Innvendig trapp i eneboligen

VVS Vannbåren varme

Vannbåren varme i alle plan

Oppvarming med vannbåren varme i hele boligen

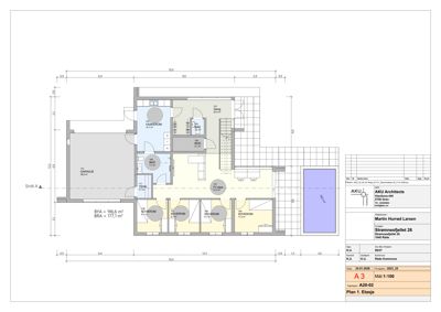
Plantegning

Enebolig 350.3 m²

Etasje 1 196.6 m²

Rom Areal Vinduer Dører
Stue/kjøkken 011 89.3 m² 3 2
Terrasse/balkong 012 31.7 m² 0 0
Garderobe 009 12.5 m² 0 1
Soverom 008 12.9 m² 1 1
Daglig wc/inndeling 007 11.8 m² 0 1
Gang 101 27.5 m² 0 3
BAD 102 1.8 m² 0 1
VASKEROM 103 15.7 m² 0 1
SOVEROM 104 9.1 m² 1 1
BAD 105 13.2 m² 0 1
SOVEROM 106 9.1 m² 1 1
SOVEROM 107 9.1 m² 1 1
SOVEROM 108 9.1 m² 1 1
TV stue 116 43.1 m² 1 1
Soverom 109 11.2 m² 1 1
TV.stue 110 37.0 m² 0 0
TEKN. 111 3.1 m² 0 1
GARASJE 112 38.8 m² 0 0

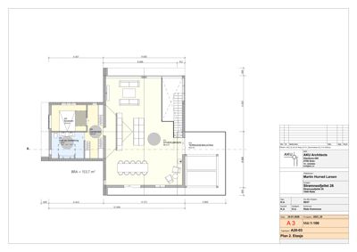
Etasje 2 153.7 m²

Rom Areal Vinduer Dører
Soverom 009 12.9 m² 1 1
Garderobe 009 12.6 m² 0 1
Dusj wc innredning 009 11.8 m² 0 1
STUE/KJØKKEN 011 99.3 m² 1 1
TERRASSE/BALKONG 012 44.2 m² 0 0

Fasader

Enebolig

Sørvest
Materiale
Tre
Taktype
Saltak
Høyde
7.5 m
Mønehøyde
56.8 m
Vinduer
6
Dører
1
Balkonger
1
Synlige etasjer
2
Nordvest
Materiale
Tre
Taktype
Saltak
Høyde
7.5 m
Mønehøyde
56.8 m
Vinduer
4
Dører
1
Synlige etasjer
2
Nordøst
Materiale
Tre
Taktype
Saltak
Høyde
6.8 m
Mønehøyde
8.6 m
Vinduer
5
Dører
1
Balkonger
1
Synlige etasjer
2
Sørøst
Materiale
Tre
Taktype
Saltak
Høyde
6.8 m
Mønehøyde
8.6 m
Vinduer
4
Dører
1
Balkonger
1
Synlige etasjer
2
Materiale
Tre
Taktype
Flatt tak
Høyde
6.6 m
Mønehøyde
54.6 m
Vinduer
10
Dører
0
Synlige etasjer
2
Materiale
Tre
Taktype
Flatt tak
Høyde
5.8 m
Mønehøyde
54.6 m
Vinduer
10
Dører
1
Balkonger
1
Synlige etasjer
2

Hendelser

16.04.2026 Supplering av søknad gnr 99 bnr 27 - Strømnesåsen 26
19.03.2026 Tilbakemelding på søknad om tiltak - videre prosess i saken - gnr 99 bnr 27 - Strømnesåsen 26
11.02.2026 Supplering av søknad - gnr 99 bnr 27 - Strømnesåsen 26
24.05.2024 Supplering av søknad - gnr 99 bnr - 27 Strømnesåsen 26
29.04.2024 Tilbakemelding på søknad - gnr 99 bnr 27 - Strømnesåsen 26
20.02.2024 Søknad om tillatelse i ett trinn - gnr 99 bnr 27 - Stråmnesåsen 26