NewConstruction Rammetillatelse Enebolig

Gjenoppføring av enebolig i Strømsbuveien 12, Arendal

📍 Strømsbuveien 12 , 4836 ARENDAL

Nøkkelinfo

Sakstype
Nybygg
Bygningstype
Enebolig
Bruksareal
219 m²
Boenheter
1
Kommune
Arendal
Fylke
Agder
Gnr / Bnr
501 / 626
Saksnummer
2026/7356
Fase
Rammetillatelse

Om byggesaken

Ny enebolig på ca. 219 m² fordelt på to etasjer med tilsvarende fotavtrykk som tidligere bolig, men med ca. 50 cm høyere plassering i terrenget. Boligen bygges med stående, høvlet tømmerkledning og saltak med betongstein i rød farge. Det etableres ny grunnmur og støttemur med naturstein som gjenbrukes fra eksisterende murer på tomten. Bygget inneholder stue/kjøkken, flere soverom, bad/vaskerom og boder. Det er én innvendig trapp og utvendig betongtrapp prosjekteres. Boligen tilpasses eksisterende byggegrunn og terreng, med nødvendig drenering og overvannshåndtering. Brannsikkerhet ivaretas i henhold til utarbeidet brannkonsept. Det gis dispensasjon fra krav til romhøyde, byggegrense mot vei og tilknytningsplikt til fjernvarme. Eiendommen ligger i kulturmiljø og tiltaket er godkjent som en tilnærmet kopi av den nedbrente boligen.

Produkter og materialer

Dører Ytterdør og skyvedører

🧱 Tre eller tilsvarende

Antall: 6

Ytterdør i hovedinngang, skyvedører til bod og terrasser

Ytterdører og skyvedører til bolig og bod

Terrasse Terrasse med rekkverk

🧱 Stående bord rekkverk

Terrasse med rekkverk av stående bord, benk tilpasses vinduer

Uteoppholdsareal med terrasse og rekkverk

Trapper Innvendig trapp og utvendig betongtrapp

🧱 Betong utvendig, tre innvendig

Antall: 2

Innvendig trapp i bolig, utvendig betongtrapp prosjekteres og tilpasses

Trapper for etasjeadkomst og utvendig terrengtilpasning

Grunnarbeid Fundamentering og drenering

Ny grunnmur støpes, drenering sikres for fuktbeskyttelse, forsterkning av grunn anbefalt med bergbolter

Grunnarbeider med fundamentering, drenering og grunnforsterkning

Isolasjon Isolasjon i vegger og etasjeskiller

🧱 Kompakt isolasjon, ca. 250 mm i gulv på grunn

Økt isolasjon i alle etasjer, kompakt isolasjon i gulv på grunn

Isolasjon for bedre energiytelse og bokvalitet

Tak Saltak med betongstein

🧱 Betongstein, rød farge

Saltak med betongstein i rød farge, branncellebegrensende takkonstruksjon

Taktekking med betongstein på saltak, branncellebegrensende konstruksjon

Fasade Tømmerkledning

🧱 Stående, høvlet tømmerkledning

Kledning type stående, høvlet tømmerkledning, tilpasses historiske foto og beskrivelse

Ytterkledning av stående høvlet tømmerkledning for fasade

Elektro Elektrisk anlegg

Elektrisk anlegg prosjekteres i henhold til gjeldende krav

Elektriske installasjoner i bolig

Brannvern Brannkonsept og brannalarmanlegg

Brannkonsept utarbeidet av FIRESAFE AS, brannalarmanlegg og ledesystem prosjekteres og utføres

Brannsikkerhetstiltak i bolig i henhold til brannkonsept

Vinduer Fasadevindu

🧱 Tre eller tilsvarende, 3-lags energiglass antatt

Antall: 14

Vinduer i fasade, tilpasset historisk utseende, 3-lags energiglass antatt

Fasadevindu til bolig, totalt 14 stk fordelt på etasjer

VVS Oppvarming og vann/avløp

Oppvarming med elektrisitet og ildsted, tilknytning til offentlig vann og avløp videreføres

VVS-installasjoner for bolig med vann, avløp og oppvarming

Maling Utvendig maling

Utvendig maling av treverk i henhold til tradisjonell utførelse

Overflatebehandling av fasade

Mur Naturstein støttemur

🧱 Naturstein fra eksisterende mur

Gjenetablering av støttemur med naturstein fra rivingen

Støttemur i naturstein for terrengstøtte og estetikk

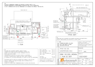
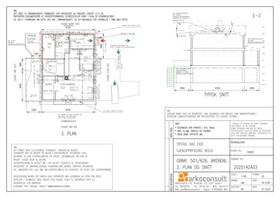
Plantegning

Enebolig 218.7 m²

Etasje 3 103.5 m²

Rom Areal Vinduer Dører
STUE/KJØKKEN 301 32.6 m² 3 1
SOV-1 302 7.6 m² 1 1
ALKOVE 303 0.0 m² 0 0
SOV-2 304 6.2 m² 1 1
GANG 305 7.1 m² 0 2
BAD/VASK 306 6.2 m² 0 1
BOD 307 6.2 m² 0 1

Etasje 1 115.2 m²

Rom Areal Vinduer Dører
Gang/Bod 101 5.3 m² 0 2
Stue/Kjøkken 102 16.6 m² 2 1
Sov 103 6.1 m² 1 1
Bad/Vask 104 4.9 m² 0 1
Bod 105 39.4 m² 0 1

Fasader

Enebolig

Sørøst
Materiale
Tre
Taktype
Saltak
Vinduer
5
Dører
1
Synlige etasjer
2

Hendelser

17.04.2026 Sentral godkjenning
17.04.2026 BYGG-26_00335 - Tryg forsikring NUF
17.04.2026 Rammetillatelse - Strømsbuveien 12 - 501/626 - Gjenoppføring av bolig
30.03.2026 Tilbakemelding overvann BYGG-26/00335
30.03.2026 Supplering - 501/626/0/0 - Strømsbuveien 12 - gjenreising av boligbygg
30.03.2026 Tilbakemelding - 501/626 - Strømsbuveien 12 - gjenreising av boligbygg
26.03.2026 501/626 - Kulturminnefaglig uttalelse - gjenreising av boligbygg
10.03.2026 501/626 - Uttalelse fra kommunal veimyndighet - gjennoppføring av bolig
04.03.2026 Oversender for høring - 501/626/0/0 - Strømsbuveien 12 - gjenreising av boligbygg
03.03.2026 Strømsbuveien 12, melding om mottatt søknad
02.03.2026 Strømsbuveien 12 Søknad om rammetillatelse 501/626