NewConstruction Ferdigattest Enebolig

Ny enebolig med carport i Sundegaten 40, Flekkefjord

📍 Sundegaten 40A , 4405 FLEKKEFJORD

Nøkkelinfo

Sakstype
Nybygg
Bygningstype
Enebolig
Bruksareal
322 m²
Boenheter
1
Kommune
Flekkefjord
Fylke
Agder
Gnr / Bnr
203 / 261
Saksnummer
23/02508
Fase
Ferdigattest

Om byggesaken

Ny enebolig i to etasjer med totalt bruksareal på ca. 322 m² oppført i tre. Første etasje inneholder stue/kjøkken på 53,4 m² med fire vinduer og en dør, hall/trapp, vaskerom, bad, soverom, og garderobe. Andre etasje har loftstue, tre soverom, bad, bod, samt overbygd areal på 21,6 m² og balkong på 48,6 m². Bygget har saltak med takvinduer og trefasade. Det er etablert carport som del av tiltaket. Bygget er tilknyttet kommunalt vann- og avløpsnett, med vannbåren gulvvarme og elektrisk energiforsyning. Prosjektet er ferdigstilt og det foreligger ferdigattest.

Produkter og materialer

Isolasjon Isolasjon i vegger, tak og gulv

Isolasjon i vegger, tak og gulv for energikrav

Isolasjon for varme- og lydisolering

Grunnarbeid Riving og miljøsanering, grunnarbeider

Riving av eksisterende bolig, miljøsanering, grunnarbeider og terrenginngrep

Riving og grunnarbeid for nybygg

Fasade Trekledning

🧱 Tre

Trekledning på alle fasader (nord, sør, vest, øst)

Trekledning som fasademateriale for bolig

Gulv Fliser og eikeparkett

🧱 Fliser, eikeparkett

Fliser i våtrom, eikeparkett i øvrige rom

Gulvbelegg i våtrom og oppholdsrom

Elektro Elektrisk energiforsyning

Elektrisk energiforsyning til bolig

Elektrisk anlegg for bolig

Terrasse Balkong og overbygd uteareal

🧱 Tre

Balkong på 48,6 m² og overbygd areal på 21,6 m² i 2. etasje

Utearealer i form av balkong og overbygd terrasse

Bad Våtromsinnredning

Antall: 2

Bad i 1. og 2. etasje med våtromsinnredning og fliser

Fullt utstyrte bad med fliser og sanitærutstyr

Maling Innvendig og utvendig maling

Innvendig og utvendig maling av treflater

Maling av fasade og innvendige overflater

Dører Ytterdører og skyvedører

🧱 Tre

Antall: 9

Ytterdører i tre, inkludert skyvedør i stue/kjøkken, fordelt på fasader nord (2), sør (1), vest (2), og innvendige dører i bolig

Ytterdører og innvendige dører i tre, inkludert skyvedør til uteområde

Ventilasjon Ventilasjons- og klimainstallasjoner

Ventilasjons- og klimainstallasjoner utført av Ventistål AS og HJELLESET KLIMA AS

Ventilasjons- og klimainstallasjoner for bolig

Trapper Innvendig trapp

🧱 Tre

Antall: 1

Innvendig trapp mellom 1. og 2. etasje i hall/trapp område

Innvendig trapp i tre mellom etasjer

Vinduer Fasadevindu

🧱 Tre

Antall: 15

Vinduer i tre, fordelt på fasader nord (5), sør (2), vest (4), øst (3), samt 2 takvinduer i andre etasje

Fasadevinduer i tre for bolig med god lysinnslipp, inkludert takvinduer

Tak Saltak med takvinduer

🧱 Takstein eller lignende

Saltak med takvinduer 150x150 og 150x80 cm, lydbjelkelag i tak

Saltak med takvinduer for naturlig lys og ventilasjon

Betong Plasstøpte betongkonstruksjoner

🧱 Betong

Plasstøpte betongkonstruksjoner for fundament og bærende konstruksjoner

Betongarbeider for fundament og bærende konstruksjoner

Rekkverk Balkongrekkverk

🧱 Tre eller metall

Rekkverk på balkong og overbygd uteareal

Sikkerhetsrekkverk på balkong og terrasse

VVS Sanitærinstallasjoner og vannbåren gulvvarme

Sanitærinstallasjoner, vannforsyning og avløp tilknyttet kommunalt nett, vannbåren gulvvarme i bolig

Fullt sanitæranlegg med vannbåren gulvvarme

Garasjeport Carport

🧱 Tre og metall

Antall: 1

Carport som del av tiltaket, integrert med bolig

Carport for parkering av kjøretøy

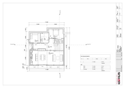
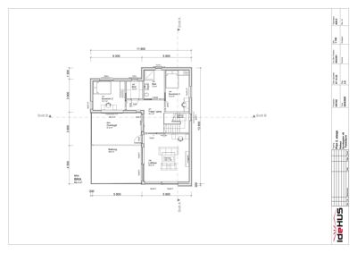
Plantegning

Enebolig 321.6 m²

Etasje 1 157.8 m²

Rom Areal Vinduer Dører
Stue kjøkken 102 53.4 m² 4 1
Hall / trapp 101 24.5 m² 0 2
Vaskerom 101 10.7 m² 0 1
Bad 101 9.0 m² 0 1
Soverom 1 106 14.9 m² 1 1
Garderobe 101 4.3 m² 0 1

Etasje 2 163.8 m²

Rom Areal Vinduer Dører
Lofstue 106 29.5 m² 2 1
Trapp / gang 101 18.1 m² 0 3
Soverom 3 104 13.3 m² 1 1
Bad 103 7.9 m² 0 1
Bod 105 3.9 m² 0 1
Soverom 2 101 12.7 m² 1 1
Overbygd BRA 21.6 m² 0 0
Balkong BRA 48.6 m² 0 0

Fasader

Enebolig

Nord
Materiale
Tre
Vinduer
5
Dører
2
Balkonger
1
Synlige etasjer
2
Sør
Materiale
Tre
Vinduer
2
Dører
1
Synlige etasjer
2
Vest
Materiale
Tre
Vinduer
4
Dører
2
Balkonger
1
Synlige etasjer
2
Øst
Materiale
Tre
Vinduer
3
Dører
0
Synlige etasjer
1

Hendelser

13.04.2026 23/02508-42 Sundegaten 40 Søknad om ferdigattest 203/261
13.04.2026 23/02508-43 Administrativt vedtak for ferdigattest for oppføring av bolig på gnr. 203, bnr. 261, Sundegaten 40
07.04.2026 23/02508-41 Sundegaten 40 Supplering av søknad 203/261
27.10.2025 23/02508-40 Sundegaten 40 Supplering av søknad 203/261
07.10.2024 23/02508-39 Vedtak om igangsettelsestillatelse for hele tiltaket på gnr, 203, bnr. 261 - Sundegaten 40
01.10.2024 23/02508-38 Sundegaten 40 Søknad om igangsettingstillatelse 203/261
29.05.2024 23/02508-31 Samtykke til riving av eksisterende boligbygg - Sundegaten 40 - Gnr 203 bnr 261 i Flekkefjrod - Kommunalt saksnr. BYGG-23/00186
29.05.2024 23/02508-32 Brev vedr. Bygg-23/00186-30 Sundegaten 40, eiendom 203/261/0/0
29.05.2024 23/02508-34 Plantegninger, Snitt of fasade
29.05.2024 23/02508-37 Vedtak om igangsettelse av deler av tiltaket, riving og grunnarbeid på gnr. 203, bnr. 261 - Sundegaten 40
29.05.2024 23/02508-36 VS: VA til bolig - BYGG-23/00186
29.05.2024 23/02508-33 Svar - Aksept fra panthaver - Søknad riving