NewConstruction UnderBehandling Enebolig

Ny enebolig med integrert garasje i Svalandsveien 227, Birkeland

📍 Svalandsveien 227 , 4760 BIRKELAND

Nøkkelinfo

Sakstype
Nybygg
Bygningstype
Enebolig
Bruksareal
303 m²
Boenheter
1
Kommune
Birkenes
Fylke
Agder
Gnr / Bnr
21 / 6
Saksnummer
2025/2501
Fase
Under behandling

Om byggesaken

Ny enebolig på ett plan med integrert garasje på totalt 302,6 m² BRA oppføres i Svalandsveien 227, Birkeland. Boligen har et bebygd areal på ca. 322,7 m² etter endringer, med saltak tekket med teglstein og liggende trekledning på fasadene. Planløsningen inkluderer stue, TV-stuer, kjøkken, vaskerom, bod, teknisk rom, WC og flere soverom. Garasjen er utvidet til 10 meter bredde med teknisk rom og bod. Bygget er tilpasset terrenget med ferdig gulv på kote 282,0 moh og mønehøyde ca. 286,9 moh. Det er etablert minirenseanlegg for sanitært avløpsvann, og adkomst via privat vei med godkjent avkjørsel. Bygget har livsløpsstandard med god tilgjengelighet og er prosjektert med fokus på visuelle kvaliteter og tilpasning til omgivelsene.

Produkter og materialer

VVS Innvendig og utvendig sanitær

Innvendig og utvendig sanitærinstallasjoner, inkludert våtrom, påstøp, membran og fall til sluk

VVS-installasjoner for bolig

Tømrer Trekonstruksjoner og montering

🧱 Tre

Tømrerarbeid og montering av trekonstruksjoner for bolig og garasje

Tømrerarbeid for bolig og integrert garasje

Tak Saltak med teglstein

🧱 Teglstein

Antall: 1

Saltak med takvinkel 22-27 grader, teglstein som takmateriale

Saltak med teglstein for bolig

VVS Minirenseanlegg for sanitært avløpsvann

Antall: 1

Biologisk-kjemisk minirenseanlegg med etterpolering i jordhaugfilter, dimensjonert for 5 PE

Minirenseanlegg for sanitært avløpsvann

Grunnarbeid Opparbeidelse av adkomstvei og avkjørsel

Privat vei med godkjent avkjørsel fra fylkesvei 3746

Adkomstvei og avkjørsel

Grunnarbeid Sprengning og grunnarbeid

Sprengning av fjell i grunnen, grunnarbeid for fundamentering og ringmur

Grunnarbeid inkludert sprengning og ringmursplan

Bad Våtrom med membran og fliser

Bad med membran, fall til sluk og flislegging

Bad og WC med våtromsstandard

Fasade Liggende trekledning

🧱 Tre

Antall: 1

Liggende trekledning som hovedmateriale på fasadene

Fasade med liggende trekledning

Dører Ytterdør og garasjeport

🧱 Tre og metall

Antall: 6

Inkluderer hovedinngangsdør, garasjeport, og dører til bod, teknisk rom og garasje

Ytterdører og garasjeport til bolig og integrert garasje

Grunnarbeid Drenering og overvannshåndtering

Overvann ledes til terreng, drenering rundt bygget

Drenering og overvannshåndtering

Garasjeport Garasjeport i integrert garasje

Antall: 1

Garasjeport justert til større bredde i utvidet garasje

Garasjeport til integrert garasje

Elektro El-installasjoner

El-installasjoner i bolig og garasje

Elektriske installasjoner

Ventilasjon Ventilasjonsanlegg med kanalgjennomføringer

Montering og innregulering av ventilasjonsanlegg med kanalgjennomføringer

Ventilasjonsanlegg for bolig

Pipe Pipe og ildsted

Antall: 1

Pipe og ildsted inkludert i prosjektet

Pipe og ildsted for bolig

Vinduer Fasadevindu

🧱 Tre med 3-lags energiglass

Antall: 22

Vinduer i ulike størrelser, inkludert 4 på fasade nord-vest, 4 på fasade sør-øst, 5 på fasade sør-vest, og flere i planløsning

Fasadevindu i tre med energiglass for bolig

Grunnarbeid Opparbeidelse av utearealer og landskapsforming

Utearealer og landskapsforming rundt bolig

Opparbeidelse av utearealer

Gulv Innvendige gulvflater

Gulv i stue, kjøkken, soverom og øvrige rom

Innvendige gulvflater

Betong Ringmur og plasstøpte betongkonstruksjoner

🧱 Betong

Ringmur og fundamenter i betong

Betongarbeid for ringmur og fundamentering

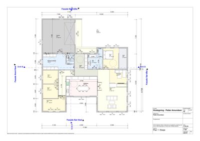
Plantegning

Enebolig 302.6 m²

Etasje 1 302.6 m²

Rom Areal Vinduer Dører
Stue 101 39.7 m² 3 1
TV-stue 042 10.6 m² 1 1
Gard 038 6.9 m² 0 1
Sov 1 039 14.4 m² 1 1
Sov 2 028 9.3 m² 2 1
Sov 3 027 9.0 m² 1 1
Sov/TV-stue 028 12.9 m² 2 1
Gang 040 15.2 m² 0 0
Gang 041 10.1 m² 0 0
Kjøkken 035 26.3 m² 0 1
Vaskerom/Bod 036 15.6 m² 1 1
Bod 037 13.2 m² 1 1
Garasje 031 49.1 m² 1 1
Teknisk 032 2.8 m² 0 1
WC 033 5.2 m² 0 1
Sov/TV-stue 029 12.8 m² 2 1
TV-stue 043 10.6 m² 1 1
Kjøkken 003 26.3 m² 1 1
Garasje 001 46.9 m² 1 1

Fasader

Enebolig

Nord-Vest
Materiale
Tre
Taktype
Saltak
Takmat.
Tegl
Vinduer
4
Dører
1
Synlige etasjer
1
Sør-Øst
Materiale
Tre
Taktype
Saltak
Takmat.
Tegl
Vinduer
4
Dører
1
Synlige etasjer
1
Sør-Vest
Materiale
Tre
Taktype
Saltak
Takmat.
Tegl
Vinduer
5
Dører
1
Synlige etasjer
1

Hendelser

21.04.2026 Gnr 21 bnr 6 – Svalandsveien 227 – endring av gitt tillatelse for oppføring av bolig
17.04.2026 Søknad om endring av gitt tillatelse eller godkjenning 21/6
14.04.2026 Tilbaketrekking av søknad med saksnummer 20252501
13.04.2026 Søknad om endring av gitt tillatelse eller godkjenning 21/6
03.12.2025 Underretning om matrikkelføring og tildeling av adresse
24.11.2025 Gnr. 21 bnr. 6 – Svalandsveien – tillatelse til oppføring av enebolig
07.11.2025 Søknad om tillatelse i ett trinn