NewConstruction UnderBehandling Enebolig

Ny enebolig med garasje i Transetkroken 4, Røyken

📍 Transetkroken 4 , 3440 RØYKEN

Nøkkelinfo

Sakstype
Nybygg
Bygningstype
Enebolig
Bruksareal
194 m²
Boenheter
1
Kommune
Asker
Fylke
Akershus
Gnr / Bnr
210 / 1
Saksnummer
25/1348
Fase
Under behandling

Om byggesaken

Ny enebolig i to etasjer med totalt 194 m² BRA og tilhørende dobbelgarasje med integrert sportsbod på 37,9 m² oppføres på en flat tomt på 1156 m² i Transetkroken 4, Røyken. Boligen har tradisjonell utførelse med liggende trekledning og valmtak med teglstein. Første etasje inneholder stue, kjøkken, hall/trapp, soverom, bad og bod/teknisk rom, mens andre etasje har stue/gang, flere soverom, bad, vaskerom og boder. Fasader er i tre med saltak og teglstein, og bygget har pipe og garasjeport. Tomten har gode uteoppholdsarealer og tilfredsstiller krav til sol og uteareal uten behov for støttemurer eller store terrenginngrep. Fundamentering er tilpasset fast leire med pukk og fiberduk. Overvann håndteres lokalt med infiltrasjon. Bygget er plassert over 4 meter fra nabogrense i tråd med regelverk. Det er gjennomført beliggenhetskontroll og geoteknisk vurdering som bekrefter trygg byggegrunn. Det foreligger nabomerknader på byggehøyde og solforhold, men tiltaket er godkjent innenfor gjeldende reguleringsplan og kommuneplan.

Produkter og materialer

Grunnarbeid Fundamentering på fast leire med pukk

🧱 Fiberduk, geonett, pukk

Fiberduk klasse 3, geonett E`Grid 3030, pukkfylling 40 cm og 10 cm lag over, fundament dimensjonert for bæreevne 110 kN med sikkerhetsfaktor 2

Fundamentering med pukk og fiberduk på fast leire

Bad Våtromsarbeider med membran og fliser

Antall: 2

Membranarbeider, støp med fall til sluk, flislegging i bad 1. og 2. etasje

Våtrom med membran og fliser

Ventilasjon Ventilasjonsanlegg med kanalføringer

Ventilasjonsanlegg for boenhet med kanalføringer

Ventilasjonsanlegg for bolig

Gulv Fliser og parkett

Fliser på bad og vaskerom, eikeparkett i øvrige rom

Innvendige gulvflater med fliser og parkett

Betong Plate på mark

🧱 Betong

Plate på mark som grunnlag for bolig

Betongplate på mark som fundament for bolig

Vinduer Fasadevindu

🧱 Tre med sprosseinndeling

Antall: 12

Vinduer tilpasset husets stil og størrelse, inkludert 5 vinduer mot nord, 2 mot vest, 1 i kjøkken, 1 i soverom, 1 i andre etasje soverom

Fasadevinduer i tre med sprosser tilpasset bolig

Grunnarbeid Drenering og overvannshåndtering

Drenering og overvann ført til grøntområde med infiltrasjon, overvannsnotat fra Lars Haga AS

Drenering og overvannshåndtering på tomt

Terrasse Overbygd uteareal

Overbygd uteareal på 12,7 m²

Overbygd uteareal til bolig

VVS Innvendig sanitæranlegg

Innvendig sanitæranlegg for bolig

Sanitæranlegg for bolig

Mur Grunnmur og eventuelle støttemurer

🧱 Murmaterialer

Grunnmur i henhold til tegninger, ingen store støttemurer planlagt

Grunnmur for bolig, uten store støttemurer

Elektro Elektriske varmekabler og elektrisk anlegg

Elektriske varmekabler og elektrisk anlegg i bolig

Elektrisk anlegg med varmekabler

Fasade Liggende trekledning

🧱 Tre

Liggende kledning i tre på fasader

Liggende trekledning på alle fasader

Dører Ytterdører og balkongdører

🧱 Tre eller tilsvarende

Antall: 9

Inkluderer hovedinngangsdør, dører til balkong, og dører til bod og tekniske rom

Ytterdører og balkongdører i tre til bolig

Pipe Stålpipe

🧱 Stål

Antall: 1

Montering av stålpipe i bolig

Stålpipe montert i bolig

Tak Saltak med teglstein

🧱 Teglstein

Antall: 1

Valmtak med teglstein som takmateriale

Saltak med teglstein som takmateriale

Garasjeport Dobbel garasjeport

Antall: 1

Garasjeport til dobbelgarasje med integrert sportsbod

Garasjeport til dobbelgarasje

Tømrer Veggelementer og bygningsmessige våtromsarbeider

Montering av veggelementer, bygningsmessige våtromsarbeider

Tømrerarbeid for bolig

Plantegning

Enebolig 194.0 m²

Etasje 1 97.0 m²

Rom Areal Vinduer Dører
Stue 101 16.5 m² 2 1
Kjøkken 102 15.9 m² 1 1
Hall/Trapp 103 21.8 m² 0 2
Sov 104 13.1 m² 1 1
Bad 105 5.8 m² 0 1
Bod/Tekno 106 4.5 m² 0 1

Etasje 2 97.0 m²

Rom Areal Vinduer Dører
Stue/Gang 201 26.9 m² 0 2
Sov 202 11.6 m² 1 1
Bod 203 6.0 m² 0 1
Sov 204 11.6 m² 1 1
Bad 205 8.5 m² 0 1
Vask 206 4.6 m² 0 1
Bod 207 5.2 m² 0 1
Sov 208 13.9 m² 1 1

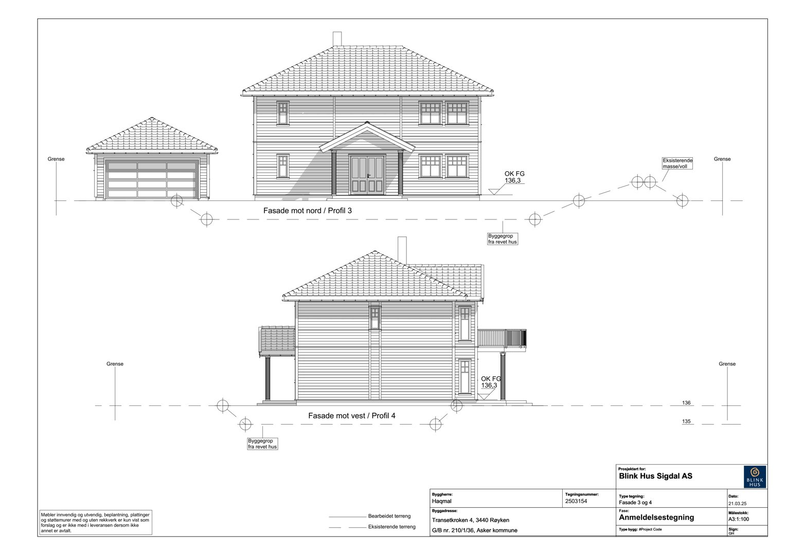
Fasader

Enebolig

Nord
Materiale
Tre
Taktype
Saltak
Takmat.
Tegl
Vinduer
5
Dører
1
Synlige etasjer
2
Vest
Materiale
Tre
Taktype
Saltak
Takmat.
Tegl
Vinduer
2
Dører
1
Balkonger
2
Synlige etasjer
2

Hendelser

21.04.2026 210/1/36 - Orientering om behandling av søknad for ferdigattest
17.04.2026 210/1/36 Transetkroken 4 - Etterspør ferdigattest
27.03.2026 210/1/36 Transetkroken 4 - Søknad om ferdigattest
11.03.2026 210/1/36 Transetkroken 4 - Beliggenhetskontroll.
09.12.2025 210/1/36 Transetkroken 4 - Purring på svar - Klage på vannavrenning fra naboeiendom
11.11.2025 210/1/36 Transetkroken 4 - Klage på vannavrenning fra naboeiendom
18.06.2025 210/1/36 Transetkroken 4 - Tillatelse til tiltak i ett trinn for nybygg enebolig
16.04.2025 210/1/36 Transetkroken 4 - Søknad om nybygg enebolig