NewConstruction Rammetillatelse Enebolig

Ny enebolig med garasje på Veldevegen 7, Avaldsnes

📍 Veldevegen 7 , 4262 AVALDSNES

Nøkkelinfo

Sakstype
Nybygg
Bygningstype
Enebolig
Bruksareal
165 m²
Boenheter
1
Kommune
Karmøy
Fylke
Rogaland
Gnr / Bnr
88 / 3
Saksnummer
2023/4331
Fase
Rammetillatelse

Om byggesaken

Ny enebolig på 165,2 m² BRA med tilhørende garasje på 18 m² oppføres på Veldevegen 7. Boligen har ett plan med rom som stue (36,7 m²), kjøkken (36,2 m²), vaskerom, bad, wc, gang, soverom, garderobe, vinterhage og grovkjøkken. Bygget har trevegger og flatt tak, med pipe og garasjeport. Fasader er i tre med flere vinduer og balkonger. Kjellergulvet senkes 25 cm i forhold til eksisterende bolig. Garasjen er plassert 8 m fra boligen og 4 m fra nabogrense. Det er godkjent tilknytning til kommunalt vann og avløp, og det er gjennomført nødvendige støy- og brannsikkerhetstiltak. Eksisterende bolig skal rives før ferdigattest kan gis.

Produkter og materialer

Maling Innvendig og utvendig maling

Maling av trepanel og innvendige flater

Elektro Elektriske installasjoner

Elektriske installasjoner i bolig

Trapper Innvendig trapp

Antall: 1

Innvendig trapp mellom etasjer

Fasade Trepanel

🧱 Tre

Trepanel på fasader i alle himmelretninger

VVS Rørleggerarbeider inne

Innvendige rørleggerarbeider for vann og avløp

Grunnarbeid Grunnarbeid, grøfter og radon

Radonforebyggende tiltak og grunnarbeid

Grunnarbeid med radonforebygging og grøfter for VA-ledninger

Gulv Gulvbelegg og parkett

Innvendige gulvflater med parkett og fliser i våtrom

Garasjeport Garasjeport

🧱 Tre

Antall: 1

Garasjeport til garasje på 18 m²

Betong Betongarbeider

Betongarbeider for fundamentering og kjeller

Bad Bad og våtromsinnredning

Bad med membran og sanitærutstyr

Ventilasjon Ventilasjonssystem

Ventilasjon i bolig

Tømrer Tømrerarbeid våtrom og ildsted

Tømrerarbeid inkludert våtrom og ildsted

Pipe Vedovn/peis pipe

Antall: 1

Pipe til ildsted i bolig

Tak Flatt tak

Flatt tak på bolig med pipe

Vinduer Fasadevindu

🧱 Tre

Antall: 20

Fasadevindu i tre til stue, kjøkken, vaskerom, gang, soverom, vinterhage og bod

Dører Ytterdør og innerdører

🧱 Tre

Antall: 11

Ytterdører og innerdører i tre til boligrom og garasje

Plantegning

Enebolig 165.2 m²

Etasje 1 165.2 m²

Rom Areal Vinduer Dører
Stue 101 36.7 m² 4 1
Kjøkken 102 36.2 m² 1 1
Gang 103 6.4 m² 0 3
Vaskerom 104 5.5 m² 1 1
Bad 105 5.8 m² 0 1
Wc 106 1.9 m² 0 1
Gang/bod 107 6.4 m² 1 1
Sov 108 11.3 m² 1 1
Gard 109 5.4 m² 0 1
Vinterhage 110 18.2 m² 1 1
Grovkjøkken 111 2.6 m² 0 0

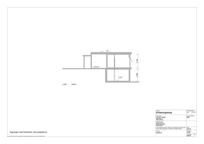
Fasader

Erstatningsbolig

Øst
Materiale
Tre
Vinduer
5
Dører
2
Balkonger
1
Synlige etasjer
1
Sør
Materiale
Tre
Vinduer
6
Dører
0
Balkonger
1
Synlige etasjer
1

Enebolig

Vest
Materiale
Tre
Taktype
Flatt tak
Vinduer
8
Dører
0
Balkonger
1
Synlige etasjer
2
Nord
Materiale
Tre
Taktype
Flatt tak
Vinduer
2
Dører
1
Synlige etasjer
2

Hendelser

17.04.2026 Gnr. 88, bnr. 3 - Oppdaterte ansvarsretter og gjennomføringsplan
04.07.2025 Gnr. 88, bnr. 3 - Oppdatert ansvarsrett - betong og radon
21.08.2023 Gnr. 88, bnr. 3 - Oppdatert ansvarsrett med gjennomføringsplan
05.06.2023 Tillatelse til tiltak - nybygg bolig - gnr. 88 bnr. 3 - Veldevegen 7
02.06.2023 Gnr. 88, bnr. 3 - supplerende dokumentasjon
08.05.2023 Tilbakemelding om mangler - nybygg bolig - gnr. 88, bnr. 3 - Veldevegen 7
08.05.2023 Gnr. 88, bnr. 3 - nybygg bolig - Veldevegen 7