Rendering
3D-visualisering av en bolig med terrasser og fasade, inkludert snittvisning.
1 / 41
NewConstruction
Avslatt
Enebolig
Oppføring av ny bolig med sekundærleilighet og terrasse
📍 Vettreåsen 4 , 1392 VETTRE
Nøkkelinfo
- Sakstype
- Nybygg
- Bygningstype
- Enebolig
- Kommune
- Asker
- Fylke
- Akershus
- Gnr / Bnr
- 58 / 394
- Saksnummer
- 20/1091
- Fase
- Avslått
Om byggesaken
Oppføring av ny bolig med sekundærleilighet og terrasse på Vettreåsen 4. Saken omfatter søknader om rammetillatelse, dispensasjonssøknader og klager.
Arbeidsomfang
- Oppføring av terrasse i nordvestre del av eiendommen
- Bygging av støttemur og trapp mot nordøst
- Bygging av støttemur og terrengtrapp mot sørvest
- Endring av gitt tillatelse for hovedbolig med sekundærleilighet
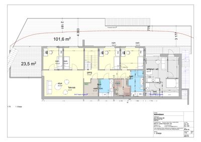
Plantegning
Terrasse 36.9 m²
Etasje 1 36.9 m²
| Rom | Areal | Vinduer | Dører |
|---|---|---|---|
| Terrasse 101 | 36.9 m² | 0 | 0 |
Enebolig 466.1 m²
Etasje 1 231.0 m²
| Rom | Areal | Vinduer | Dører |
|---|---|---|---|
| Stue 101 | 183.6 m² | 4 | 1 |
| Soverom 102 | 6.0 m² | 1 | 1 |
| Soverom 103 | 41.4 m² | 2 | 1 |
| Bad 104 | 0.0 m² | 0 | 1 |
| Teknisk rom 105 | 0.0 m² | 0 | 1 |
| Gang 106 | 0.0 m² | 0 | 0 |
| Vaskerom 107 | 6.1 m² | 0 | 1 |
| Rom 108 | 10.9 m² | 1 | 1 |
| Rom 109 | 12.0 m² | 1 | 1 |
| Bad 110 | 8.6 m² | 0 | 1 |
| Leilighet i alt 111 | 32.9 m² | 1 | 1 |
| Bad 112 | 8.0 m² | 0 | 1 |
Etasje 0 235.1 m²
| Rom | Areal | Vinduer | Dører |
|---|---|---|---|
| Stue 001 | 167.7 m² | 0 | 0 |
| Gang 002 | 11.8 m² | 0 | 0 |
| Vaskerom 003 | 16.2 m² | 0 | 0 |
| Teknisk rom 004 | 6.0 m² | 0 | 0 |
| Terrasse 005 | 33.4 m² | 0 | 0 |
Fasader
Støttemurer
Øst
- Materiale
- Betong
- Vinduer
- 0
- Dører
- 0
- Synlige etasjer
- 1
Vetreåsen
Vest
- Materiale
- Tre
- Taktype
- Saltak
- Høyde
- 4.8 m
- Vinduer
- 5
- Dører
- 1
- Balkonger
- 1
- Synlige etasjer
- 2
Øst
- Materiale
- Tre
- Taktype
- Saltak
- Vinduer
- 0
- Dører
- 0
- Synlige etasjer
- 2
Hovedbygg
Øst
- Materiale
- Tre
- Taktype
- Saltak
- Høyde
- 3.5 m
- Mønehøyde
- 6.5 m
- Vinduer
- 0
- Dører
- 0
- Synlige etasjer
- 2
Enebolig
Øst
- Materiale
- Tre
- Taktype
- Saltak
- Høyde
- 6.2 m
- Mønehøyde
- 8.9 m
- Vinduer
- 0
- Dører
- 0
- Synlige etasjer
- 2
Hendelser
31.03.2026
58/394 Vettreåsen 4 - Kvittering for mottatt klage
klage
19.03.2026
58/1091 Vettreåsen 4 - Klage på vedtak om avslag på søknad om reduksjon av gebyr
klage
27.02.2026
58/394 Vettreåsen 4 - Avslag på søknad om reduksjon av gebyr
vedtak
18.02.2026
58/394 Vettreåsen 4 - Kvittering for mottatt klage
klage
16.02.2026
58/394 Vettreåsen 4 - Klage på avslag
klage
30.01.2026
58/394 Vettreåsen 4 - Etterlyser registrering av dialog i saksinnsyn
27.01.2026
58/394 Vettreåsen 4 - Avslag på dispensasjoner og avslag på endringssøknad - Oppføring av terrasse, støttemurer og trapper ved oppføring ny bolig med sekundærleilighet
dispensasjon
03.11.2025
58/394 Vettreåsen 4 - Supplering av søknad
søknad
16.09.2025
58/394 Vettreåsen 4 - Svar på forespørsel i sak
19.08.2025
58/394 Vettreåsen 4 - Ber om tilbakemelding
10.07.2025
58/394 Vettreåsen 4 - Tilbakemelding på kommunens brev av 140525 - Ber om rask avklaring rundt nabovarsling og varsler samtidig krav om frafall av byggesaksgebyr
nabovarsel
16.05.2025
58/394 Vettreåsen 4 - Svar på brev mottatt 09.12.24
09.12.2024
58/394 Vettreåsen 4 - Supplerende opplysninger
11.10.2024
58/394 Vettreåsen 4 - Behov for ytterligere informasjon
21.02.2024
58/394 Vettreåsen 4 - Søknad om endring av gitt tillatelse
søknad
11.12.2023
58/394 Vettreåsen 4 - E-post fra ansvarlig søker vedrørende nabovarsel
nabovarsel
11.12.2023
58/394 Vettreåsen 4 - Svar fra ansvarlig søker ifm nabovarsel
nabovarsel
06.12.2023
58/394 Vettreåsen 4 - Svar på spørsmål om nabovarsel
nabovarsel
17.11.2023
58/394 Vettreåsen 4 - Status fra ansvarlig søker
17.11.2023
58/394 Vettreåsen 4 - Svar til ansvarlig søker - Møte vedrørende g/bnr 58/394, sak 20/1091
30.06.2023
58/394 Utsettelse frist for tilbakemelding - Oppføring av terrasse og støttemur ved oppføring ny bolig med sekundærleilighet
14.06.2023
58/394 Ufullstendig søknad - Oppføring av terrasse og støttemur ved oppføring ny bolig med sekundærleilighet
søknad
09.11.2022
58/394 Oppdatert dokumentasjon - Mulig ulovlighet - Oppføring av for stor terrasse / uteplass
18.08.2022
58/394 Svar om oppdatert dokumentasjon for etablert terrasse/uteplass - Oppføring av ny bolig med sekundærleilighet
16.08.2022
58/394 Svar om dokumentasjon for søknad - Oppføring av ny bolig med sekundærleilighet
søknad
13.07.2022
58/394 Ufullstendig søknad for ferdigattest - Oppføring av ny bolig med sekundærleilighet
ferdigattest
07.07.2022
58/394 Søknad om ferdigattest - Oppføring av ny bolig med sekundærleilighet
ferdigattest
01.07.2022
58/394 Endelig avklaring for søknadsplikt terrasse - Oppføring av ny bolig med sekundærleilighet
søknad
10.05.2022
58/394 Ny frist for ferdigstillelse - Oppføring av ny bolig med sekundærleilighet
04.05.2022
58/394 Ber om utsatt frist for ferdigstillelse - Oppføring av ny bolig med sekundærleilighet
10.08.2021
58/394 Revidert søknad om ny frist - Oppføring av ny bolig med sekundærleilighet
søknad
10.08.2021
58/394 Ny frist for ferdigstillelse - Oppføring av ny bolig med sekundærleilighet
09.08.2021
58/394 Svar angående ny frist - Oppføring av ny bolig med sekundærleilighet
04.08.2021
58/394 Ber om fristutsettelse for søknad om ferdigattest - Oppføring av ny bolig med sekundærleilighet
ferdigattest
26.07.2021
58/394 Purring på søknad om ferdigattest - Oppføring av ny bolig med sekundærleilighet
ferdigattest
06.04.2021
58/394 Supplerende dokumentasjon for midlertidig brukstillatelse
midlertidig_brukstillatelse
26.03.2021
58/394 Midlertidig brukstillatelse - Oppføring av ny bolig med sekundærleilighet
midlertidig_brukstillatelse
25.03.2021
58/394 Videre avklaring for midlertidig brukstillatelse - Oppføring av ny bolig med sekundærleilighet
midlertidig_brukstillatelse
04.03.2021
58/394 Feilplassert støttemur - Oppføring av ny bolig med sekundærleilighet
15.02.2021
58/394 Søknad om midlertidig brukstillatelse - Oppføring av ny bolig med sekundærleilighet
midlertidig_brukstillatelse
14.08.2020
58/394 Oversendelse dokumentasjon - Oppføring av ny bolig med sekundærleilighet
27.07.2020
58/394 Tillatelse til endring av ramme- og igangsettingstillatelse nr.1 - Endring av støttemur
igangsettingstillatelse
13.07.2020
58/394 Oppdatert gjennomføringsplan - Oppføring av ny bolig med sekundærleilighet
05.07.2020
58/394 Vedlegg til saken - Oppføring av ny bolig med sekundærleilighet
17.06.2020
58/394 Foreløpig svar på søknad om endring av gitt tillatelse - Oppføring av ny bolig med sekundærleilighet
søknad
07.06.2020
58/394 Søknad om endring av gitt tillatelse - Oppføring av ny bolig med sekundærleilighet
søknad
07.06.2020
58/394 Melding om endring av ansvarsretter - Oppføring av ny bolig med sekundærleilighet
24.02.2020
58/394 Kopi av rammetillatelse - Oppføring av ny bolig med sekundærleilighet
rammetillatelse
21.02.2020
58/394 Etterlyser tilbakemelding - Oppføring av ny bolig med sekundærleilighet
24.01.2020
58/394 Ber om bekreftelse på at eiendomsmatrikkel har blitt oppdatert - Oppføring av ny bolig med sekundærleilighet