NewConstruction UnderBehandling Enebolig

Hovedombygging med påbygg og tilbygg i Viggo Hansteens vei 29

📍 Viggo Hansteens vei 29 , 1472 FJELLHAMAR

Nøkkelinfo

Sakstype
Nybygg
Bygningstype
Enebolig
Bruksareal
260 m²
Boenheter
1
Kommune
Lørenskog
Fylke
Akershus
Gnr / Bnr
113 / 205
Saksnummer
26/2236
Fase
Under behandling

Om byggesaken

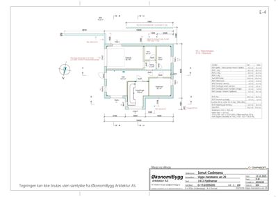
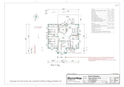
Eksisterende tomannsbolig fra 1958 i Viggo Hansteens vei 29 ombygges til en enebolig med full 2. etasje, påbygg av en 3. etasje med takterrasse, og tilbygg ved inngangsparti. Bygget får flatt tak med takoppbygg, ny trapp til takterrasse, og ny utvendig etterisolering på 10 cm samt 5 cm innvendig. Det etableres ny drenering og mindre støttemurer under 0,5 meter. Bygget får stående trekledning i ny farge, nye 3-lags vinduer, og utvendig stålpipe. Utearealet forbedres med ny takterrasse og terrasser på terreng, men det søkes dispensasjon for noe manglende utenomhusareal. Avkjørsel flyttes og utvides med snuplass på egen tomt. Bygget oppgraderes til dagens TEK17-krav med balansert ventilasjon og bedre isolasjon. Totalt areal er ca. 260 m² fordelt på kjeller, 3 etasjer og takterrasse.

Produkter og materialer

Pipe Utvendig stålpipe

🧱 Stål

Antall: 1

Riving av innvendig pipe og montering av utvendig stålpipe

Ny pipe i stål montert utvendig på bygget

Rekkverk Brannstige og rekkverk til takterrasse

Brannstige for rømningsvei fra 3. etasje og takterrasse, rekkverk på takterrasse

Sikkerhetsrekkverk og rømningsstige iht. krav

VVS Sanitær og varmeinstallasjoner

Nye VVS-installasjoner i henhold til TEK17, inkludert rørleggerarbeid

Oppgradering av vann, avløp og varme i bygget

Elektro Elektriske installasjoner

Oppgradering av elektriske installasjoner i henhold til TEK17

Nye elektriske anlegg i hele bygget

Fasade Stående trekledning

🧱 Tre

Ny stående kledning i mørkere grå/brun eller grå/sort farge, med lysere farge på påbygg og inngangsparti

Fasade med stående trekledning som skal erstatte eksisterende kledning

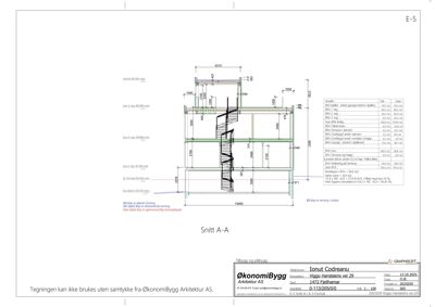
Trapper Innvendig trapp og utvendig trapp

Antall: 1

Ny trapp til 3. etasje og takterrasse, samt ny trapp ved inngangsparti

Trapper for intern adkomst og utvendig adkomst til takterrasse

Vinduer 3-lags energiglass vinduer

Antall: 27

Nye 3-lags vinduer med bedre U-verdi og støyreduksjon

Bytte ut eksisterende vinduer med nye energieffektive vinduer

Terrasse Takterrasse og terrasse på terreng

Ny takterrasse på 23,8 m² og terrasse på terreng på 19,6 m² under 0,5 m høyde

Utearealer for opphold og rekreasjon

Isolasjon Utvendig og innvendig isolasjon

10 cm utvendig isolasjon med ny vindsperre, 5 cm innvendig isolasjon for bedre U-verdi

Etterisolering av eksisterende yttervegger for energibesparelse

Gulv Innvendige gulvflater

Oppgradering av gulv i alle etasjer i henhold til TEK17

Nye gulvflater i bolig med isolasjon og overflatebehandling

Dører Ytterdører og balkongdører

Antall: 10

Ytterdører tilpasset ny inngang og utvidet inngangsparti, brannvindu i 3. etasje

Nye ytterdører og dører til balkong og takterrasse

Garasjeport Garasjeport til underetasje

Antall: 1

Garasje i underetasje med garasjeport

Garasjeport til eksisterende/ny garasje i kjeller

Maling Utvendig og innvendig maling

Maling av fasade og innvendige flater etter oppgradering

Overflatebehandling for beskyttelse og estetikk

Ventilasjon Balansert ventilasjonsanlegg med varmegjenvinning

Nytt balansert ventilasjonsanlegg i 1. etasje og påbygg etter TEK17 krav

Ventilasjonssystem for bedre inneklima og energibesparelse

Grunnarbeid Drenering og støttemurer

Ny drenering rundt huset, mindre støttemurer under 0,5 meter over terreng

Grunnarbeider for bedre fuktsikring og terrengtilpasning

Tak Flatt tak med takoppbygg

Flatt tak med takoppbygg på 2,7 meter høyde, inntrukket minimum 1 meter, takterrasse på 23,8 m²

Nytt flatt tak med takterrasse og takoppbygg for trapp til 3. etasje

Fasader

Enebolig

Sør
Materiale
Tre
Høyde
6.8 m
Vinduer
4
Dører
1
Synlige etasjer
2
Vest
Materiale
Tre
Taktype
Saltak
Høyde
6.5 m
Vinduer
4
Dører
1
Synlige etasjer
3
Nord
Materiale
Tre
Taktype
Saltak
Høyde
6.5 m
Mønehøyde
8.2 m
Vinduer
5
Dører
2
Balkonger
1
Synlige etasjer
3
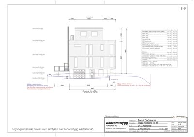
Øst
Materiale
Tre
Taktype
Saltak
Høyde
6.0 m
Mønehøyde
8.7 m
Vinduer
6
Dører
1
Balkonger
1
Synlige etasjer
3
Sør-Vest
Materiale
Tre
Taktype
Saltak
Vinduer
3
Dører
1
Synlige etasjer
2
Nordvest
Taktype
Saltak
Vinduer
1
Dører
0
Synlige etasjer
2
Nord-Øst
Materiale
Tre
Vinduer
4
Dører
1
Synlige etasjer
2

Hendelser

24.02.2026 Tilbakemelding om mangler - Hovedombygging - Sammenføyning av boenheter - Påbygg - Tilbygg
08.01.2026 Søknad i ett trinn - Sammenslåing av bolig - Flere byggetiltak - Viggo Hansteens vei 29 - gnr 113 bnr 205