NewConstruction UnderBehandling Enebolig

Ny enebolig med garasje i Voldstadveien 2, Hokksund

📍 Voldstadveien 2 , 3302 HOKKSUND

Nøkkelinfo

Sakstype
Nybygg
Bygningstype
Enebolig
Bruksareal
557 m²
Boenheter
1
Kommune
Øvre Eiker
Fylke
Buskerud
Gnr / Bnr
77 / 413
Saksnummer
2025/1028
Fase
Under behandling

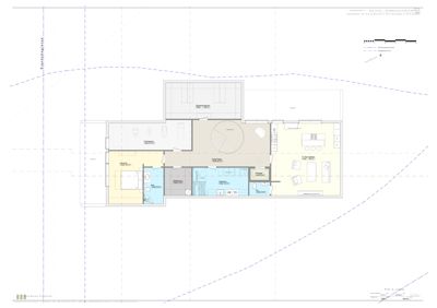
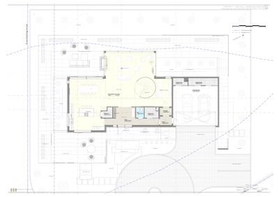
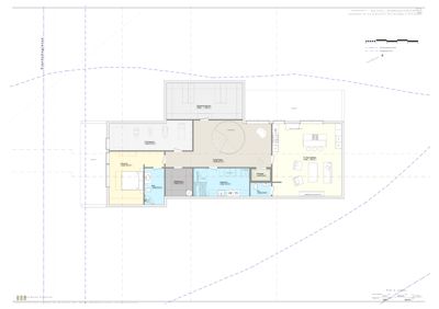
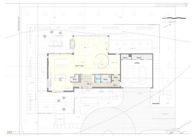
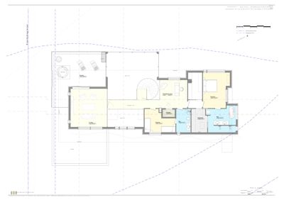
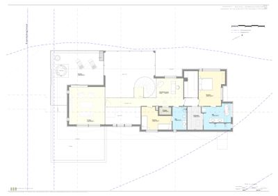
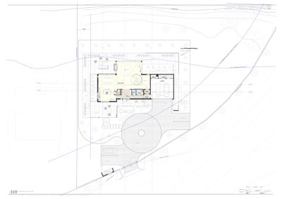
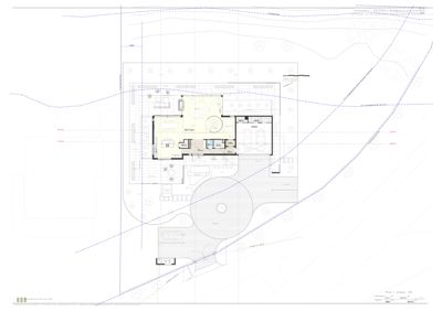
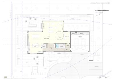
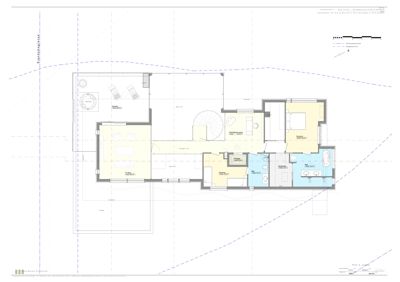
Om byggesaken

Ny enebolig med integrert dobbelgarasje og tilhørende utearealer oppføres på eiendommen Voldstadveien 2 i Hokksund. Boligen har tre etasjer inkludert kjeller, med et samlet bruksareal på ca. 557 m². Bygningen har flatt tak, fasader i tre, og flere balkonger og verandaer. Planløsningen inkluderer rom som stue, kjøkken, flere soverom, bad, treningsrom, vaskerom, teknisk rom og heis. Det etableres også utearealer med terrasse og beplantning. Tiltaket omfatter riving av eksisterende bolig og garasje, og nybygg plasseres med hensyn til flom- og skredfare, med dokumentert sikkerhet mot kvikkleire og flom. Overvann håndteres lokalt med infiltrasjon og sandfang. Støyforhold er vurdert og tilfredsstiller gjeldende krav med støyskjerming. Dispensasjoner er gitt for byggegrenser mot vei og vassdrag. Prosjektet har godkjente planer og ansvarsrett for alle relevante fagområder.

Produkter og materialer

Tømrer Tømrerarbeider

🧱 Tre

Tømrerarbeider for bolig og garasje

Tømrerarbeider for ny bolig og garasje

Fasade Tre kledning

🧱 Tre

Tre kledning på alle fasader, inkludert nord, øst, vest og sør

Tre kledning på boligfasader

Terrasse Impregnert treverk

🧱 Impregnert tre

Terrasse i impregnert treverk

Terrasse og platting i impregnert tre

Vinduer Isolerglassvinduer

🧱 Tre ramme og karm

Antall: 34

Isolerglassvinduer fra 1975-1991 med klorparafiner

Isolerglassvinduer med tre ramme og karm, totalt 34 stk, inkludert 1 i vaskerom og flere i stue og soverom

Grunnarbeid Riving og miljøsanering

Riving av eksisterende bolig og garasje, miljøsaneringsplan med håndtering av farlig avfall

Riving av eksisterende bygningsmasse med miljøsanering og avfallshåndtering

Ventilasjon Ventilasjonsanlegg

Ventilasjonsarbeider i bolig

Ventilasjonsanlegg for bolig

Rekkverk Balkongrekkverk

🧱 Glass og metall

Rekkverk på balkonger og verandaer

Rekkverk for balkonger og verandaer

Mur Murarbeider

Murarbeider i forbindelse med grunn og utearealer

Murarbeider for støttemurer og utearealer

Maling Utvendig og innvendig maling

Maling av fasader og innvendige overflater

Maling av trefasader og innvendige flater

Dører Ytterdører og innerdører

🧱 Tre

Dører i tre, inkludert hovedinngang, garasjeport og innerdører i bolig

Ytterdører og innerdører i tre tilpasset bolig og garasje

Elektro El-installasjoner

Elektriske installasjoner i bolig

El-installasjoner for belysning, strøm og tekniske systemer

VVS Sanitærinstallasjoner

Innvendig sanitærinstallasjoner i henhold til prosjektering

Sanitærinstallasjoner for bad, wc, vaskerom og tekniske rom

Kjøkken Kjøkkeninnredning

Antall: 1

Kjøkken med standard innredning

Kjøkkeninnredning i bolig

Tak Flatt tak

🧱 Taktekking ikke spesifisert

Flatt tak på bolig med tilhørende tekniske løsninger

Flatt tak på bolig med nødvendig taktekking og isolasjon

Garasjeport Dobbel garasjeport

🧱 Ikke spesifisert

Antall: 2

Dobbelgarasje med to porter

Garasjeporter til dobbelgarasje integrert i bolig

Bad Baderomsinnredning

Antall: 3

Bad med fliser på gulv og vegg, sanitærutstyr og ventilasjon

Baderomsinnredning i bolig med 3 bad

Trapper Innvendige trapper

🧱 Tre og betong

Antall: 2

To trapper i bolig, inkludert trapp mellom etasjer og lufttørktrapp

Innvendige trapper i bolig for etasjeadkomst

Gulv Parkett og fliser

Parkett i stue og soverom, fliser i gang og bad

Gulvbelegg i bolig

Isolasjon Bygningsisolasjon

Isolasjon i vegger, tak og gulv i henhold til TEK17

Isolasjon for varme- og lydisolering i bolig

Betong Grunnmur og fundamenter

🧱 Betong

Betongarbeider for grunnmur og fundamenter

Betongarbeider for ny bolig og garasje

Varmepumpe Luft-til-luft varmepumpe

Antall: 1

Varmepumpe av nyere modell plassert i stue

Luft-til-luft varmepumpe for oppvarming

Fasader

Enebolig

Nord
Materiale
Tre
Taktype
Flatt tak
Høyde
8.0 m
Vinduer
3
Dører
1
Balkonger
1
Synlige etasjer
2
Øst
Materiale
Tre
Taktype
Flatt tak
Høyde
8.0 m
Mønehøyde
9.0 m
Vinduer
4
Dører
1
Balkonger
1
Synlige etasjer
2
Vest
Materiale
Tre
Taktype
Flatt tak
Høyde
6.0 m
Vinduer
5
Dører
1
Balkonger
1
Synlige etasjer
2
Sør
Vinduer
4
Dører
1
Balkonger
2
Synlige etasjer
2

Hendelser

10.04.2026 Søknad om igangsettingstillatelse for resten av tiltaket - Riving av enebolig og oppføring av ny enebolig - gbnr 77/413 - Voldstadveien 2, Hokksund
26.01.2026 Godkjenning - Søknad om igangsettelse - Riving av eksisterende bygningsmasse - gbnr 77/413 - Voldstadveien 2
22.01.2026 Søknad om igangsettingstillatelse for del av tiltaket - Riving av enebolig - gbnr 77/413 - Voldstadveien 2, Hokksund
08.09.2025 Registreringsskjema dispensasjon
08.09.2025 Godkjenning - Rammesøknad og dispensasjonssøknad - Riving av enebolig og garasje og oppføring av ny enebolig - gbnr 77/413 - Voldstadveien 2
05.09.2025 Supplerende dokumentasjon - Riving av enebolig og oppføring av ny enebolig - gbnr 77/413 - Voldstadveien 2, Hokksund
16.07.2025 Grunnboksrapport - Voldstadveien 2 - Matrikkelnummer 77/413
19.06.2025 Uttalelse til søknad om dispensasjon fra kommuneplan for riving og oppføring av ny enebolig - gbnr. 77/413
18.06.2025 Uttalelse til rammesøknad for riving av enebolig og oppføring av ny enebolig - gbnr 77/413 - Voldstadveien 2 - Hokksund
18.06.2025 Svar på anmodning om behandling - Rammesøknad - Riving av enebolig og oppføring av ny enebolig - gbnr 77/413 - Voldstadveien 2
18.06.2025 Dispensasjon - byggegrense mot kommunal veg, gbnr 77/413, Volstadveien 2, Hokksund
02.06.2025 Uttalelse fra Geodata - Riving av enebolig og oppføring av ny enebolig - gbnr 77/413 - Voldstadveien 2, Hokksund
30.05.2025 Søknad om dispensasjon - Riving av enebolig og oppføring av ny enebolig - gbnr 77/413 - Voldstadveien 2, Hokksund
26.05.2025 Anmodning om uttalelse - Riving av enebolig og oppføring av ny enebolig - gbnr 77/413 - Voldstadveien 2, Hokksund
26.05.2025 Anmodning om behandling - Rammesøknad - Riving av enebolig og oppføring av ny enebolig - gbnr 77/413 - Voldstadveien 2
26.05.2025 Anmodning om uttalelse - Rammesøknad - Riving av enebolig og oppføring av ny enebolig - gbnr 77/413 - Voldstadveien 2
23.05.2025 Grunnboksrapport - Voldstadveien 2 - Matrikkelnummer: 77/413
15.05.2025 Søknad om rammetillatelse - Riving av enebolig og oppføring av ny enebolig - gbnr 77/413 - Voldstadveien 2, Hokksund
30.04.2025 Uttalelse - ønske om signert avstandserklæring - riving av enebolig - gbnr 77/413 - Voldstadveien 2 - Hokksund
30.04.2025 Uttalelse til søknad om dispensasjon - riving av enebolig - gbnr 77/413 - Voldstadveien 2 - Hokksund
20.02.2025 Uttalelse - riving av enebolig - gbnr 77/413 - Voldstadveien 2 - Hokksund
19.02.2025 Referat fra forhåndskonferanse - Riving av enebolig - gbnr 77/413 - Voldstadveien 2 - Hokksund
05.02.2025 Anmodning om forhåndskonferanse - riving av enebolig - gbnr 77/413 - Voldstadveien 2 - Hokksund