VerticalExtension Ferdigattest Enebolig

Påbygg av soverom i enebolig på Århaugbakken 56

📍 Århaugbakken 56 , 5541 KOLNES

Nøkkelinfo

Sakstype
Påbygg
Bygningstype
Enebolig
Bruksareal
4 m²
Boenheter
1
Kommune
Karmøy
Fylke
Rogaland
Gnr / Bnr
115 / 214
Saksnummer
2026/2736
Fase
Ferdigattest

Om byggesaken

Påbygg av eksisterende soverom i 2. etasje i enebolig på Århaugbakken 56, med utvidelse fra 8,9 m² til 13,2 m². Tiltaket innebærer å fjerne en inntrukket balkong og flytte yttervegger ut i flukt med resten av fasaden, uten endring av takets høyde eller hovedform. Balkongen bygges inn som del av påbygget, og fasaden får et mer helhetlig og harmonisk uttrykk. Bygget er en to-etasjes trehus med saltak tekket med tegl, og eksisterende pipe beholdes. Arealet på boligen er ca. 133,6 m² totalt, med påbygget som en mindre utvidelse av soverommet.

Produkter og materialer

Maling Utvendig maling

🧱 Maling for trepanel

Maling av ny yttervegg og innbygget balkong for å matche eksisterende fasade

Overflatebehandling av påbygg

Tak Eksisterende saltak med tegl

🧱 Tegl

Takets høyde og hovedform forblir uendret, tegl takstein beholdes

Ingen endring i tak, men tilpasning mot påbygg

Tømrer Påbygg konstruksjon

🧱 Tre

Utvidelse av soverom, innbygging av balkong, flytting av yttervegger

Tømrerarbeid for påbygg og fasadeendring

Grunnarbeid Ingen nye grunnarbeider

Påbygg på eksisterende konstruksjon, ingen endring i grunn

Ingen nye grunnarbeider nødvendig

Dører Innvendig dør

Antall: 1

Dør til påbygget soverom/loftstue

Innvendig dør til påbygget rom

Vinduer Fasadevindu

🧱 Tre/Aluminium (antatt)

Antall: 1

Nytt vindu i påbygget soverom, tilpasset fasade

Ett vindu i påbygget soverom i 2. etasje

Fasade Ytterveggsforlengelse og innbygging av balkong

🧱 Tre

Fjerning av inntrukket balkong, yttervegger flyttes ut i flukt med fasaden, trepanel kledning

Materialer og arbeid for å bygge ut yttervegger i tre og innbygge balkong som del av påbygg

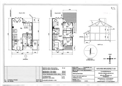
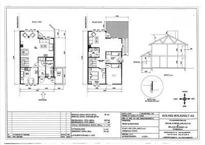
Plantegning

Enebolig 133.6 m²

Etasje 1 66.8 m²

Rom Areal Vinduer Dører
Stue 101 40.0 m² 3 1
Kjøkken 102 12.0 m² 3 1
Hall 103 5.8 m² 0 2
Bad / vaskerom 104 6.7 m² 0 1
Utv. bod / Golfstue 105 5.1 m² 1 1

Etasje 2 66.8 m²

Rom Areal Vinduer Dører
Soverom 1 201 12.0 m² 1 1
Soverom 2 202 8.9 m² 1 1
Soverom 3 203 7.8 m² 1 1
Soverom 4 204 8.4 m² 1 1
Bad 205 4.4 m² 0 1
Lofthus 206 22.6 m² 2 1

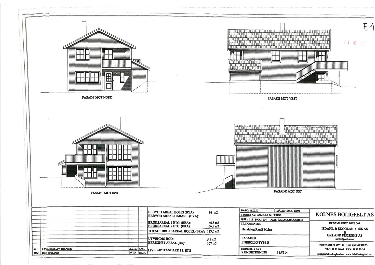
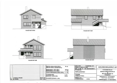
Fasader

Enebolig

Nord
Materiale
Tre
Taktype
Saltak
Takmat.
Tegl
Vinduer
5
Dører
1
Synlige etasjer
2
Vest
Materiale
Tre
Taktype
Saltak
Takmat.
Tegl
Vinduer
4
Dører
1
Balkonger
1
Synlige etasjer
2
Sør
Materiale
Tre
Taktype
Saltak
Takmat.
Tegl
Vinduer
6
Dører
0
Balkonger
1
Synlige etasjer
2
Øst
Materiale
Tre
Taktype
Saltak
Vinduer
0
Dører
0
Balkonger
1
Synlige etasjer
1

Garasje

Øst
Materiale
Tre
Taktype
Saltak
Takmat.
Tegl
Vinduer
0
Dører
0
Synlige etasjer
1

Hendelser

15.04.2026 Tillatelse til tiltak - Påbygg til bolig - gnr. 115, bnr. 214 - Århaugbakken 56
15.04.2026 Gnr. 115, bnr. 214 - Søknad om ferdigattest
15.04.2026 Ferdigattest - Påbygg - Gnr. 115, bnr. 214 - Århaugbakken 56
09.04.2026 Gnr. 115, bnr. 214 - Søknad om ferdigattest
07.04.2026 Gnr. 115, bnr. 214 - Påbygg - Århaugbakken 56