VerticalExtension Soeknad Enebolig

Påbygg med vindfang, bad og balkonginnkledning i Breivikvegen 8

📍 Dalanesvegen 66 , 5440 MOSTERHAMN

Nøkkelinfo

Sakstype
Påbygg
Bygningstype
Enebolig
Bruksareal
107 m²
Boenheter
1
Kommune
Bømlo
Fylke
Vestland
Gnr / Bnr
22 / 22
Saksnummer
2026/1696
Fase
Søknad

Om byggesaken

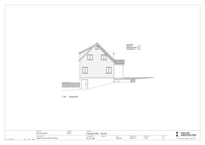
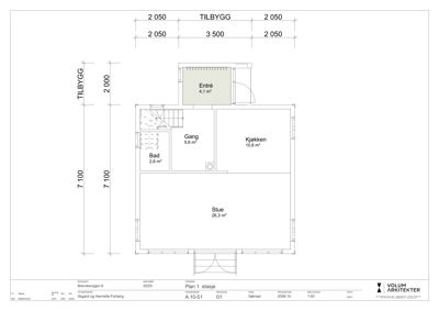
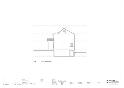
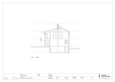
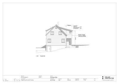
Påbygg på eksisterende enebolig i Breivikvegen 8 med en total økning i BRA på 9,8 m² til 107,2 m² eksklusiv kjeller. Påbygget inkluderer et nytt vindfang i 1. etasje under eksisterende balkong, innkledning av balkong i 2. etasje med vegger og forlengelse av takopplett, samt etablering av nytt bad i 2. etasje. Takvinkelen på påbygget er 15 grader, tilpasset eksisterende stilart med materialvalg som harmonerer med hovedbygget. Balkongen i 2. etasje bygges inn, og inngangspartiet er inntrukket for værbeskyttelse. Terrenget rundt boligen berøres ikke, og BYA forblir uendret da balkongen allerede er medregnet. Bygningen har saltak, trekledning, pipe og garasjeport, og fasaden mot øst har 5 vinduer og 2 dører.

Produkter og materialer

Elektro Elektrisk installasjon

Elektrisk anlegg for nytt bad og påbygg

Elektrisk installasjon i påbygg og nytt bad

Vinduer Balkonginnkledning

🧱 Vegger i tre eller tilsvarende

Antall: 1

Innkledning av balkong i 2. etasje med vegger og takopplett

Vegger og tak for innkledning av balkong i påbygget

VVS Sanitærinstallasjoner

VVS-installasjoner for nytt bad i påbygget

Rørleggerarbeid for bad og sanitærinstallasjoner

Tømrer Påbygg konstruksjon

🧱 Tre

Tømrerarbeid for påbygg, vindfang og balkonginnkledning

Bygging av påbyggets bærende konstruksjoner og vegger

Fasade Tre kledning

🧱 Tre

Materialvalg basert på eksisterende materialer for å tilpasse påbygget til eksisterende stilart

Utvendig kledning for påbygg og innkledning av balkong

Maling Utvendig og innvendig maling

Maling av nye overflater utvendig og innvendig i påbygget

Bad Nytt bad i 2. etasje

Antall: 1

Bad på 5,7 m² i 2. etasje som del av påbygget

Nytt bad med sanitærinstallasjoner i påbygget

Grunnarbeid Fundamentering for påbygg

Fundamentering og grunnarbeid for nytt påbygg og vindfang

Grunnarbeid for påbygg og vindfang under balkong

Vinduer Fasadevindu

Antall: 5

Vinduer i fasade øst på eneboligen

Tak Saltak med takopplett

Takvinkel på påbygg 15 grader, eksisterende takvinkel 27 grader, hovedbygg 45 grader

Forlengelse av saltak med takopplett over balkong i 2. etasje

Rekkverk Balkongrekkverk (ved behov)

Rekkverk for balkonginnkledning dersom nødvendig

Dører Ytterdører

Antall: 2

Ytterdører i fasade øst på eneboligen

Gulv Innvendige gulv

Gulv i påbygg og vindfang

Plantegning

Enebolig 53.4 m²

Etasje 1 53.4 m²

Rom Areal Vinduer Dører
Entré 4.1 m² 0 1
Gang 5.6 m² 0 2
Kjøkken 10.8 m² 0 1
Stue 26.3 m² 4 1
Bad 2.6 m² 0 1

Fasader

Enebolig

Øst
Materiale
Tre
Taktype
Saltak
Høyde
5.3 m
Vinduer
5
Dører
2
Synlige etasjer
2

Hendelser

15.04.2026 Stadfesting på mottatt - Rammesøknad - Påbygg med vindfang, nytt bad og innkledning av balkong - 22/22 - Breivikvegen 8
13.04.2026 Rammesøknad - Påbygg med vindfang, nytt bad og innkledning av balkong - 22/22 - Breivikvegen 8