VerticalExtension Rammetillatelse Enebolig

Takoppløft på enebolig i Gamle Songevei 86, Arendal

📍 Gamle Songevei 86 , 4842 ARENDAL

Nøkkelinfo

Sakstype
Påbygg
Bygningstype
Enebolig
Bruksareal
171 m²
Boenheter
1
Kommune
Arendal
Fylke
Agder
Gnr / Bnr
508 / 273
Saksnummer
2026/10005
Fase
Rammetillatelse

Om byggesaken

Takoppløftet er et påbygg på takflaten mot sørøst på en eksisterende enebolig i Gamle Songevei 86, Arendal. Påbygget øker boligens bruksareal med 4,9 m² og muliggjør etablering av et nytt soverom i loftsetasjen. Bygningen har saltak og trekledning, og takoppløftet følger samme arkitektoniske uttrykk med god visuell tilpasning til eksisterende bolig og omgivelser. Tiltaket er plassert i tråd med gjeldende byggegrenser og dispensasjon er gitt for byggegrense mot fylkesvei 410 Kystveien. Prosjektet omfatter konstruksjonsteknisk prosjektering, bygningsfysikk, brannprosjektering og utførelse av tømrerarbeider. Det foreligger godkjente tegninger for plan, snitt og fasader, samt gjennomføringsplan og erklæringer om ansvarsrett.

Produkter og materialer

Konstruksjon Konstruksjonsteknisk prosjektering

Konstruksjonsteknisk prosjektering og bygningsfysikk

Prosjektering av bærekonstruksjoner og bygningsfysikk for takoppløft

Vinduer Takvindu og fasadevindu

Antall: 5

Nye vinduer i takoppløft og fasade, inkludert rømningsvindu

Vinduer for naturlig lys og rømningsmulighet i takoppløft og fasade

Fasade Trekledning

🧱 Tre

Fasade i tre med saltak, tilpasset eksisterende bolig

Fasadeendring med trekledning i forbindelse med takoppløft

Tak Takoppløft på saltak

🧱 Tre, tilpasset eksisterende saltak

Antall: 1

Takoppløft på takflaten mot sørøst, øker BRA med 4,9 m²

Påbygg av takoppløft i tre på eksisterende saltak for å etablere nytt soverom i loftsetasje

Dører Innvendige dører

Antall: 1

Dør til nytt soverom i loftsetasje

Innvendig dør i påbygg for nytt soverom

Tømrer Tømrerarbeid for påbygg

Utførelse av takoppløft og tilpasning til eksisterende konstruksjon

Tømrerarbeid for oppføring av takoppløft og tilpasning av eksisterende bygg

Brannvern Brannprosjektering

Brannprosjektering i tiltaksklasse 1

Brannprosjektering for påbygg i henhold til gjeldende regelverk

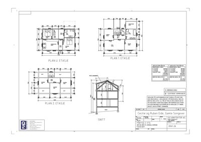
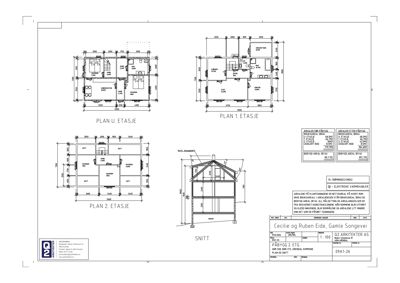
Plantegning

Enebolig 171.2 m²

Etasje -1 68.5 m²

Rom Areal Vinduer Dører
Soverom U01 9.3 m² 1 1
Gang U02 5.4 m² 0 2
Gang U03 6.2 m² 0 1
Bad U04 8.6 m² 0 1
Soverom U05 10.4 m² 1 1
Kjøkken/stue U06 18.6 m² 2 1

Etasje 1 66.7 m²

Rom Areal Vinduer Dører
Stue 101 23.3 m² 2 1
Kjøkken 102 10.7 m² 1 1
Gang 103 5.2 m² 0 2
Bad 104 10.7 m² 0 1
WC 105 3.2 m² 0 1
Kontor 106 13.8 m² 1 1
Uisolert bod 107 8.5 m² 1 1

Etasje 2 36.0 m²

Rom Areal Vinduer Dører
Soverom 201 11.4 m² 1 1
Soverom 202 12.0 m² 1 1
Gang 203 6.3 m² 0 2
Kott 204 5.8 m² 1 1
Kott 205 6.0 m² 1 1

Fasader

Enebolig

Sør
Materiale
Tre
Taktype
Saltak
Vinduer
5
Dører
1
Synlige etasjer
2
Vest
Materiale
Tre
Taktype
Saltak
Vinduer
3
Dører
0
Synlige etasjer
2
Øst
Materiale
Tre
Taktype
Saltak
Vinduer
3
Dører
0
Synlige etasjer
2
Nord
Materiale
Tre
Taktype
Saltak
Vinduer
2
Dører
1
Synlige etasjer
1

Hendelser

13.04.2026 Tillatelse til tiltak - Gamle Songevei 86, takoppløft
13.04.2026 Fakturagrunnlag
07.04.2026 DOK-analyse - 508/273/0/0 Gamle Songevei 86
07.04.2026 Sentral godkjenning
07.04.2026 Gamle Songevei 86 Søknad om tillatelse i ett trinn 508/273
30.03.2026 DOK-analyse - 508/273/0/0 Gamle Songevei 86
27.03.2026 508/273 - Fv. 410 - Kystveien - Dispensasjon fra byggegrense for takoppløft på eksisterende bolig