VerticalExtension Ferdigattest Enebolig

Endring av rekkverk og sportsbod på enebolig, Gjellumlia 3C, Asker

📍 Gjellumlia 3C , 1389 HEGGEDAL

Nøkkelinfo

Sakstype
Påbygg
Bygningstype
Enebolig
Bruksareal
332 m²
Boenheter
1
Kommune
Asker
Fylke
Akershus
Gnr / Bnr
78 / 484
Saksnummer
20/2914
Fase
Ferdigattest

Om byggesaken

Ny enebolig med integrert garasje og sekundærleilighet på totalt ca. 332 m² BRA, oppført i tre med saltak teglstein. Boligen har to etasjer med flere soverom, stuer, kjøkken, bad, vaskerom, gang og sportsbod. Det er etablert to takaltaner (innhugg i takflaten) med rekkverk, hvor det søkes om endring av rekkverkets plassering fra 1,5 meter inntrukket til ytterkant av gulvflaten. Sportsboden utvides fra 2,7 til 3,3 m². Eiendommen har opparbeidet intern adkomstvei. Det foreligger ferdigattest for tiltaket. Saken har vært gjenstand for omfattende dispensasjonsbehandling og klagesaker knyttet til rekkverksplassering på takaltaner, hvor kommunen og Statsforvalteren har hatt ulik tolkning av kommuneplanens bestemmelser. Kommunen har nå lagt til grunn at takaltanene er innhugg i takflaten og ikke takterrasser, og at tiltaket ikke er avhengig av dispensasjon. Endringssøknaden for sportsbod er godkjent. Nabomerknader gjelder hovedsakelig innsyn, støy og nabolagskarakter.

Produkter og materialer

Grunnarbeid Opparbeidelse av intern adkomstvei

Antall: 1

Opparbeidelse av intern adkomstvei til eiendommen.

Intern adkomstvei opparbeidet i forbindelse med nybygg.

Maling Innvendig og utvendig maling

🧱 Maling

Maling av innvendige og utvendige flater.

Maling av bolig og utvendige konstruksjoner.

Elektro Elektrisk anlegg

Antall: 1

Elektrisk installasjon i bolig og garasje.

Elektrisk anlegg for bolig og garasje.

Tak Saltak med teglstein

🧱 Teglstein

Antall: 1

Saltak med teglstein som takmateriale.

Saltak med teglstein på eneboligen.

Tømrer Nybygg enebolig med garasje og sekundærleilighet

🧱 Tre

Antall: 1

Enebolig med saltak teglstein, ca. 332 m² BRA, med integrert garasje og sekundærleilighet.

Ny enebolig med tilhørende garasje og sekundærleilighet.

Vinduer Fasadevindu

🧱 Tre eller aluminium

Antall: 14

Vinduer i fasader, inkludert takvinduer i takaltaner.

Fasadevindu og takvinduer i eneboligen.

Gulv Innvendige gulv

🧱 Parkett, fliser

Innvendige gulv i bolig, sannsynligvis parkett og fliser på bad.

Innvendige gulv i bolig og sekundærleilighet.

Bygningskomponenter Sportsbod

🧱 Tre eller tilsvarende

Antall: 1

Utvidelse av sportsbod fra 2,7 m² til 3,3 m² BYA.

Utvidelse av utvendig sportsbod på eiendommen.

Betong Grunnmur og fundament

🧱 Betong

Antall: 1

Grunnmur og fundament for enebolig og garasje.

Betongfundament og grunnmur for bolig og garasje.

Fasade Rekkverk på takaltan

🧱 Glassrekkverk eller rekkverk som del av takkonstruksjon

Antall: 2

Rekkverk flyttes fra 1,5 m inntrukket til ytterkant av gulvflaten på to takaltaner (innhugg i takflaten).

Rekkverk for takaltaner på 3. etasje, som enten er glassrekkverk eller utformet som del av takkonstruksjonen.

Dører Ytterdører og terrassedører

🧱 Tre eller aluminium

Antall: 12

Ytterdører og dører til terrasser og sportsbod.

Dører til bolig, sportsbod og terrasser.

VVS Sanitær og varme

Antall: 1

VVS-installasjoner for bolig og sekundærleilighet.

Sanitær- og varmeanlegg i bolig.

Plantegning

Enebolig 331.8 m²

Etasje 2 140.7 m²

Rom Areal Vinduer Dører
Stue 201 26.4 m² 2 1
Sovev. 1 202 12.3 m² 1 1
Kjøkken 203 12.3 m² 0 1
Vaskerom 204 6.5 m² 0 1
Bad 205 1.8 m² 0 1
Gang 206 6.0 m² 0 2
Sport 207 5.3 m² 0 1
TV-stue/soverom 208 7.4 m² 1 1
Garasje 209 33.9 m² 1 1

Etasje 3 191.1 m²

Rom Areal Vinduer Dører
Stue 301 19.1 m² 1 2
Evr soverom 302 7.3 m² 1 1
Soverom 4 303 9.0 m² 1 1
Soverom 304 14.5 m² 1 1
Soverom 1 305 9.9 m² 1 1
Soverom 2 306 9.3 m² 1 1
Garderobe 307 6.9 m² 0 1
Bad 308 6.0 m² 0 1
Altan 309 5.1 m² 1 1
Altan 310 4.2 m² 1 1
Altan 311 4.2 m² 1 1
Gang 312 1.3 m² 0 1

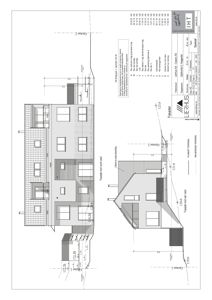
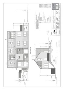
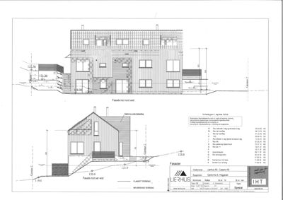
Fasader

Enebolig

Sørøst
Materiale
Tre
Taktype
Saltak
Takmat.
Tegl
Høyde
121.0 m
Mønehøyde
121.3 m
Vinduer
3
Dører
1
Synlige etasjer
2
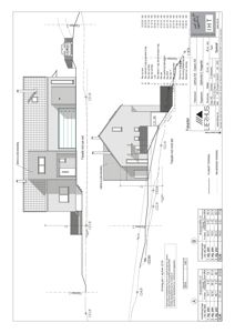
Nordøst
Materiale
Tre
Taktype
Saltak
Takmat.
Tegl
Høyde
121.0 m
Mønehøyde
121.3 m
Vinduer
4
Dører
1
Synlige etasjer
2
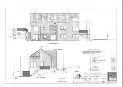
Nordvest
Materiale
Tre
Taktype
Saltak
Takmat.
Tegl
Høyde
6.9 m
Mønehøyde
8.5 m
Vinduer
6
Dører
1
Balkonger
1
Synlige etasjer
2
Sørvest
Materiale
Tre
Taktype
Saltak
Takmat.
Tegl
Høyde
6.9 m
Mønehøyde
8.5 m
Vinduer
4
Dører
1
Synlige etasjer
2

Hendelser

21.04.2026 78/484 (tidl. 78/169), 78/438 Gjellumlia 3C og D - Svar på tilbakemelding
13.04.2026 78/484 (tidl. 78/169), 78/438 Gjellumlia 3C og D - Svar på mangelbrev - Oversender ferdigattest for tiltaket gitt 280621
25.03.2026 78/484 (tidl. 78/169), 78/438 Gjellumlia 3C og D - Nybygg enebolig med garasje og sekundærleilighet, opparbeidelse av intern adkomstvei
19.12.2023 78/484 (tidl. 78/169), 78/438 Gjellumlia 3C og D - Statsforvalterens vedtak i klagesak - kommunens vedtak av 040423 opprettholdes
04.10.2023 78/484 - Oversendelse av klagesak for behandling
28.08.2023 78/484 (tidl. 78/169), 78/438 Bekreftelse på mottatt klage - Avslag på søknad om endring av tillatelse
21.08.2023 78/484 (tidl. 78/169), 78/438 Avslått endringstillatelse - Utfyllende og komplett klage - Nybygg enebolig med garasje
02.05.2023 78/484 (tidl. 78/169), 78/438 - Foreløpig klage på vedtak
05.04.2023 78/484 (tidl. 78/169), 78/438 Feil vedtaksdato på avslag - Nybygg enebolig med garasje og sekundærleilighet
04.04.2023 78/484 Avslag på søknad om endringstillatelse med dispensasjon - Plassering av rekkverk på takterrasser
09.09.2022 78/484 (tidl. 78/169), 78/438 - Svar på anmodning om omgjøring av endelig vedtak - Nybygg enebolig med garasje
31.01.2022 78/484 Anmodning om at Statsforvalterens vedtak oppheves
26.01.2022 78/484 (tidl. 78/169), 78/438 Statsforvalteren omgjør ikke sitt vedtak av 170122 - Nybygg enebolig med garasje
19.01.2022 78/484 Anmodning om omgjøring - Nybygg enebolig med garasje og sekundærleilighet, opparbeidelse av intern adkomstvei
18.01.2022 78/484 (tidl. 78/169), 78/438 Statsforvalterens vedtak i klagesak - kommunens vedtak oppheves - Nybygg enebolig med garasje
29.12.2021 78/484 (tidl. 78/169), 78/438 Dokumentasjon - Nybygg enebolig med garasje og sekundærleilighet, opparbeidelse adkomstvei
29.10.2021 78/484 (tidl. 78/169), 78/438 Statsforvalterens melding om saksbehandlingstid i klagesak - Nybygg enebolig med garasje
20.10.2021 78/484 (tidl. 78/169), 78/438 Oversendelse av klagesak - Nybygg enebolig med garasje og sekundærleilighet
24.08.2021 78/484 (tidl. 78/169), 78/438 Uttalelse til klage datert 130821 - Nybygg enebolig med garasje og sekundærleilighet, opparbeide
13.08.2021 78/484 Kvittering for mottatt klage - Klage på takterrasse rekkverk - Nybygg enebolig med garasje og sekundærleilighet
13.08.2021 78/484 Anmodning om uttalelse til klage på endringstillatelse takaltan - Nybygg enebolig med garasje og sekundærleilighet
15.07.2021 78/484 (tidl. 78/169), 78/438 Klage på kommunens godkjenning av enndringstillatelse - Nybygg enebolig med garasje og
23.06.2021 78/484 (tidl. 78/169), 78/438 Klage på gebyr - Nybygg enebolig med garasje og sekundærleilighet, opparbeidelse av adkomstvei
23.06.2021 78/484 (tidl. 78/169), 78/438 Gebyr krediteres - Nybygg enebolig med garasje og sekundærleilighet,
15.06.2021 78/484 Endringstillatelse - Nybygg enebolig med garasje og sekundærleilighet, opparbeidelse av intern adkomstvei
03.06.2021 78/484 (tidl. 78/169), 78/438 Utsatt frist på ferdigstillelse - Nybygg enebolig med garasje og sekundærleilighet
24.05.2021 78/484 Innspill - Endring av gitt tillatelse
24.05.2021 78/484 Innspill - Endring av gitt tillatelse
24.05.2021 78/484 (tidl. 78/169), 78/438 Ber om utsatt frist for ferdigattest - Nybygg enebolig med garasje og sekundærleilighet
14.04.2021 78/484 Ber om kontakt for å gi innspill til begrunnelse for tillatelse til dispensasjon - Endring av gitt tillatelse
18.03.2021 78/484 Statsforvalterens vedtak i klagesak - Endring av gitt tillatelse
29.12.2020 78/484 Foreløpig melding i klagesak - Endring av gitt tillatelse
18.12.2020 78/484 Oversendelse av klagesak for behandling - dispensasjon og tillatelse til endring av rekkverk på takterrasse
12.10.2020 78/484 Bekreftelse på mottatt klage på vedtak om dispensasjon og enringstillatelse
30.09.2020 78/484 Klage på vedtak - Endring av gitt tillatelse
10.09.2020 78/484 - Godkjent dispensasjon og endringstillatelse
28.08.2020 78/484 Etterspør ferdigstilling - Endring av gitt tillatelse
12.08.2020 78/484 Svar på spørsmål om dispensasjon
13.07.2020 78/484 Svar på spørsmål om innhugg
13.07.2020 78/484 Spørsmål om innhugg - Endring av gitt tillatelse
13.07.2020 78/484 Søknad om endring med dispensasjon - Endring av gitt tillatelse
29.06.2020 78/484 - Endring av gitt tillatelse for utvidelse av sportsbod
23.06.2020 78/484 Kommentarer fra søker angående takaltan - Endring av gitt tillatelse
23.06.2020 78/484 - Svar på kommentarer angående takaltan - Endring av gitt tillatelse
21.06.2020 78/484 Ber om at søknad om rekkverk og utvendig bod ferdigbehandles - Endring av gitt tillatelse
10.06.2020 78/484 Spørsmål - Søknad om dispensasjon rekkverk og avklaringer
14.05.2020 78/484 Avklaring takaltan - Endring av gitt tillatelse
28.04.2020 78/484 Oversendelse vedlegg til nabomerknader - Endring av gitt tillatelse
24.04.2020 78/484 - Foreløpig svar på søknad - endring av rekkverk er avhengig av dispensasjon - Endring av gitt tillatelse
06.04.2020 78/484 Søknad om endring av gitt tillatelse