VerticalExtension Ferdigattest Enebolig

Påbygg med valmet tak på enebolig i Haldensvingen 39, Asker

📍 Haldensvingen 39 , 1387 ASKER

Nøkkelinfo

Sakstype
Påbygg
Bygningstype
Enebolig
Bruksareal
104 m²
Boenheter
1
Kommune
Asker
Fylke
Akershus
Gnr / Bnr
48 / 154
Saksnummer
20/3327
Fase
Ferdigattest

Om byggesaken

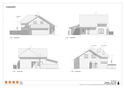
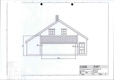
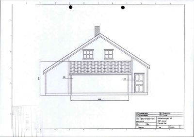
Påbygget er et to-etasjes tilbygg over et eksisterende stuetilbygg på eneboligen i Haldensvingen 39. Påbygget har en grunnflate på ca. 104,5 m² BYA, som er en liten overskridelse av regulert maks grunnflate. Taket er valmet med ca. 40 graders takvinkel, noe som er et lite avvik fra reguleringsbestemmelsene. Påbygget inneholder blant annet et soverom/loftstue på 28,1 m² i 2. etasje med dagslys via takvinduer og vindu i nordfasaden. Fasaden mot nabo i vest er uten vinduer for å hindre innsyn og brannspredning. Tiltaket er nabovarslet, og det er mottatt merknader fra nabo, men også støtte fra øvrige naboer. Det er gitt dispensasjon for avstand til nabogrense, takvinkel og grunnflate. Påbygget er utført uten forutgående tillatelse, men senere godkjent etter klagebehandling. Det foreligger krav om ferdigattest og tiltaket er under oppfølging for å sikre brannsikringstiltak. Bygget er i tre med saltak og teglstein, og har to trapper.

Produkter og materialer

VVS Etterisolering og energieffektivisering

Etterisolering av yttervegger og tak, nye energieffektive vinduer

Tiltak for bedre energieffektivitet i eksisterende bolig

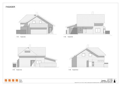
Fasade Vindusløse vegg- og takflater mot nabo

🧱 Tre

Fasade mot vest uten vinduer for å hindre innsyn og brannspredning

Vindusløse vegg- og takflater mot nabo i vest

Elektro Ny installasjon i påbygg

Elektriske installasjoner i påbygg

Grunnarbeid Innmåling

Antall: 1

Innmåling av fasadehjørnet og avstand til nabogrense

Oppmåling for dokumentasjon av plassering og avstand til nabogrense

Dører Ytterdører og innerdører

Dører i påbygg og eksisterende bolig

Tømrer Påbygg og tilbygg

🧱 Tre

Antall: 1

Påbygg over eksisterende stuetilbygg, bredde 5,8 m, dybde uendret

Utførelse av påbygg i to etasjer med tilhørende konstruksjoner

Gulv Innvendige gulv

Innvendige gulv i påbygg

Tak Valmet tak

🧱 Teglstein

Antall: 1

Takvinkel ca. 40 grader, valmet tak som demper visuell høyde

Nytt valmet tak på påbygg, erstatter tidligere saltak

Trapper Innvendige trapper

Antall: 2

To trapper i bygget, inkludert påbygg

Brannvern Brannsikringstiltak

Tiltak mot brannspredning mellom byggverk iht TEK, uten vinduer i knevegger

Brannsikring av påbygg mot nabo

Vinduer Takvindu og fasadevindu

🧱 Tre/aluminium

Antall: 3

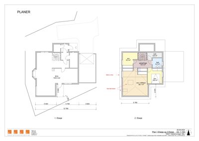
Takvinduer flyttet til takflate mot nord, vindu i nordfasade større enn tidligere

Vinduer for dagslys i soverom/loftstue i 2. etasje, uten innsyn mot nabo

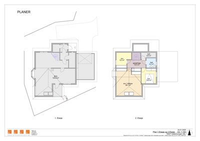
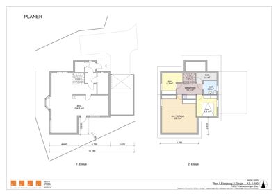
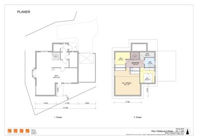
Plantegning

Enebolig 160.2 m²

Etasje 1 104.5 m²

Rom Areal Vinduer Dører
Stue 101 104.5 m² 3 2
Kjøkken 102 20.0 m² 1 1
Gang 103 10.0 m² 0 2
Bad 104 8.0 m² 0 1
Sov 105 15.0 m² 1 1
Trapp 106 0.9 m² 0 0
Stue 38 0.0 m² 0 0
SP. BOD 3 0.0 m² 0 0
V.F. 3V 0.0 m² 0 0
Kjøkken 11 0.0 m² 0 0
S. MC/VASK 5 0.0 m² 0 0
Garasje 107 16.4 m² 1 1
Sov 12 108 12.0 m² 1 2
Sov 11 109 11.0 m² 1 2
Sov 13 110 13.0 m² 1 2
5 Bad/WC 111 5.0 m² 0 1
HALL 112 7.0 m² 0 2
Disponibelt 113 6.3 m² 0 1
Gang 2 2.8 m² 0 1
Garasje 20 20.0 m² 1 1
S WC/VASK 0 0.0 m² 0 1
Stue 9 9.1 m² 0 1
S WC/VASK 1 1.0 m² 0 1

Etasje 2 55.7 m²

Rom Areal Vinduer Dører
Sov 201 8.3 m² 1 1
Sov / loftstue 202 28.1 m² 1 1
Sov 203 9.6 m² 1 1
Bad 204 4.2 m² 0 1
Kott 205 3.6 m² 0 1
Gang/trapp 206 10.3 m² 0 2
SOV 10 0.0 m² 0 0
SOV 12 0.0 m² 0 0
Hall 7 0.0 m² 0 0
DISPONIBELT 6.3 0.0 m² 0 0
KOTT 4 0.0 m² 0 0
BAD/WC 5 0.0 m² 0 0
5 Bad/WC 207 5.0 m² 0 1
Disponibelt 208 6.3 m² 0 1

Etasje 0 0.0 m²

Rom Areal Vinduer Dører
Entré Hall 001 12.5 m² 0 2
Gang 002 3.0 m² 0 1
Vask / Bad 003 5.5 m² 0 1
Hall 004 2.5 m² 0 1
Kjøkken 005 11.0 m² 1 1
Stue inkl. trapp 006 14.4 m² 2 1
Garasje 007 16.4 m² 1 1

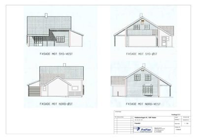
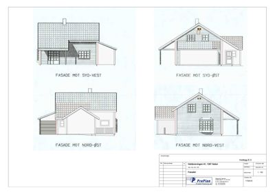
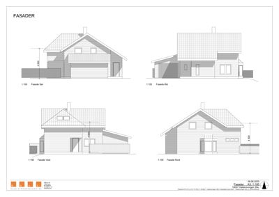
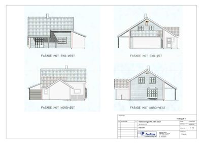
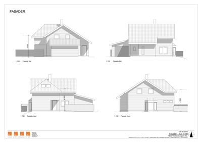
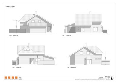
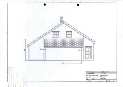
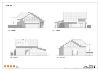
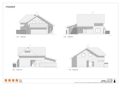
Fasader

Enebolig

Sør
Materiale
Tre
Taktype
Saltak
Takmat.
Tegl
Høyde
4.5 m
Vinduer
2
Dører
1
Balkonger
1
Synlige etasjer
2
Øst
Materiale
Tre
Taktype
Saltak
Takmat.
Tegl
Vinduer
3
Dører
1
Synlige etasjer
2
Vest
Materiale
Tre
Taktype
Saltak
Takmat.
Tegl
Høyde
4.5 m
Vinduer
2
Dører
1
Synlige etasjer
2
Nord
Materiale
Tre
Taktype
Saltak
Takmat.
Tegl
Høyde
4.5 m
Vinduer
5
Dører
1
Synlige etasjer
2
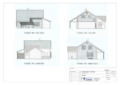
Syd-Vest
Materiale
Tre
Taktype
Saltak
Vinduer
1
Dører
1
Synlige etasjer
2
Syd-Øst
Materiale
Tre
Taktype
Saltak
Vinduer
2
Dører
1
Synlige etasjer
2
Nord-Øst
Materiale
Tre
Taktype
Saltak
Vinduer
1
Dører
1
Balkonger
1
Synlige etasjer
2
Nord-Vest
Materiale
Tre
Taktype
Saltak
Vinduer
4
Dører
1
Balkonger
1
Synlige etasjer
2

Hovedbygg

Ukjent
Vinduer
0
Dører
0
Synlige etasjer
0

Ukjent

Ukjent
Vinduer
0
Dører
0
Synlige etasjer
0

Hendelser

08.04.2026 48/154 Haldensvingen 39 - Tilbakemelding på brev om manglende ferdigattest eller midlertidig brukstillatelse ferdigattest
25.03.2026 48/154 Haldensvingen 39 - Påbygg enebolig - Manglende ferdigattest eller midlertidig brukstillatelse ferdigattest
22.11.2024 48/154 - Haldensvingen 39 - Vedrørende naboens bekymring om brannfare
22.11.2024 48/154 Haldensvingen 39 - Bekymring om brannfare
17.09.2024 48/ 154 Haldensvingen 39 - Oversender tegninger ifm utførelse og oppfølging av vilkår i tillatelsen
12.07.2022 48/154 Statsforvalterens vedtak i klagesak - kommunens vedtak av 020821 stadfestes klage
15.02.2022 48/154 Statsforvalterens foreløpige melding i klagesak - Påbygg enebolig klage
23.09.2021 48/154 Søkers kommentar til naboklage - Nybygg enebolig og garasje
15.09.2021 48/154 Anmodning om uttalelse til klage - Påbygg enebolig klage
15.09.2021 48/154 Kvittering for mottatt klage - Påbygg enebolig klage
20.08.2021 48/154 Klage på endret vedtak av 020821 - Påbygg enebolig klage
03.08.2021 48/154 Dispensasjoner og tillatelse (endret vedtak) - Påbygg enebolig dispensasjon
26.03.2021 48/154 Statsforvalterens vedtak - Påbygg enebolig vedtak
22.01.2021 48/154 Ytterligere bemerkninger - Påbygg enebolig
21.01.2021 48/154 Kommentar til supplerende klageanførsler - Påbygg enebolig klage
18.01.2021 48/154 Tilsvar til ytterligere merknader fra nabo - Påbygg enebolig
18.01.2021 48/154 Ytterligere bemerkninger til min klage - Påbygg enebolig klage
11.01.2021 48/154 Statsforvalterens melding om saksbehandlingstid i klagesak - Påbygg enebolig klage
18.12.2020 48/154 Oversendelse av klagesak - Påbygg enebolig klage
25.09.2020 48/154 Søkers kommentar til naboens klage - Påbygg enebolig klage
25.09.2020 48/154 Tilbakebetaling av gebyret - Påbygg enebolig
23.09.2020 48/154 Innspill til kommunedirektørens saksfremleggelse - Påbygg enebolig
23.09.2020 48/154 Innspill til mottatt vedtak om dispensasjon - Påbygg enebolig dispensasjon
21.09.2020 48/154 Oversendelse saksfremlegg - Påbygg enebolig
17.09.2020 48/154 Søknad om nedsettelse av gebyr - Påbygg enebolig søknad
14.09.2020 48/154 Anmodning om uttalelse til klage - Påbygg enebolig klage
14.09.2020 48/154 Kvittering for mottatt klage - Påbygg enebolig klage
11.09.2020 48/154 Godkjent dispensasjon og tillatelse til påbygg enebolig dispensasjon
10.09.2020 48/154 Klage på vedtak - Påbygg enebolig klage
08.09.2020 Saksprotokoll PB, 26082020, Sak 54-20, 48-154 Haldensvingen 39 - Påbygg enebolig
19.08.2020 48/154 Påbygg enebolig - Orientering om befaring og politisk behandling
22.06.2020 48/154 Melding om politisk vedtak - Påbygg enebolig vedtak
09.06.2020 48/154 Oversendelse målsatte tegninger - Påbygg enebolig
08.06.2020 48/154 Ber om målsatte tegninger - Påbygg enebolig
05.05.2020 48/154 Kvitteringsbrev - Påbygg enebolig
02.05.2020 48/154 Korrigert vedlegg til søknad - Påbygg enebolig søknad
29.04.2020 48/154 Søknad om påbygg enebolig søknad