VerticalExtension Ferdigattest Enebolig

Påbygg med takark på enebolig i Knappenveien 56, Bergen

📍 Knappenveien 56 , 5151 STRAUMSGREND

Nøkkelinfo

Sakstype
Påbygg
Bygningstype
Enebolig
Bruksareal
149 m²
Boenheter
1
Kommune
Bergen
Fylke
Vestland
Gnr / Bnr
28 / 61
Saksnummer
BYGG-2025/14568
Fase
Ferdigattest

Om byggesaken

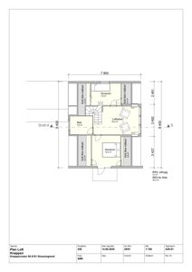
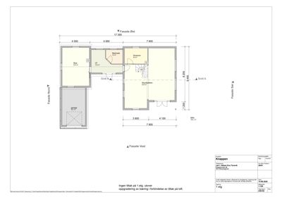
Påbygg i form av en takark på fasade sør på en eksisterende enebolig i Knappenveien 56, Bergen. Påbygget utvider loftsstuen med 5,3 m² BRA og inkluderer nye skråvinduer tilpasset takvinkel. Bygget har saltak og trekledning som resten av huset, som har totalt 149,1 m² BRA fordelt på to etasjer. Loftet inneholder loftsstue, soverom og bad, mens første etasje består av stue, kjøkken, soverom, bad, vaskerom og garasje. Påbygget medfører oppgradering av bærende konstruksjoner i loftsetasjen. Fasader er i tre med flere vinduer og balkonger, og det er pipe og garasjeport på bygget.

Produkter og materialer

Vinduer Skråvinduer til takark

Antall: 9

Skråvinduer tilpasses takvinkel, antall 9 stk ifølge tegning A20-01 Plan Loft

Nye skråvinduer i takark for loftsstue og soverom

Gulv Loftsgulv

Nytt gulv i påbygg på loftsstue og soverom

Gulv i påbygg på loft, materialvalg ikke spesifisert

Fasade Takark på fasade sør

🧱 Tre

Antall: 1

Påbygg i form av takark med saltak og trekledning som eksisterende fasade

Takark påbygg på loft med trekledning og saltak som matcher eksisterende bygg

Grunnarbeid Ingen nye grunnarbeider

Påbygg på loft, ingen nye grunnarbeider eller fundamentering

Ingen grunnarbeider nødvendig for loftspåbygg

Tømrer Bærende konstruksjoner for påbygg

Oppgradering av bærende konstruksjoner i loftsetasje i forbindelse med påbygg

Tømrerarbeider inkludert bæring for takark på loft

Ventilasjon Ventilasjon for påbygg loft

Ventilasjon iht. TEK17 for nytt loftsareal

Ventilasjonssystem for påbygg på loft

Tak Saltak

🧱 Tre

Antall: 1

Saltak som eksisterende bygg, inkludert nytt takoppløft for takark

Taktekking og konstruksjon for saltak på påbygg

Dører Innvendige dører loft

Antall: 5

Innvendige dører til soverom, bad og kott i påbygg loft

Dører til nye rom i påbygg loft

Fasader

Enebolig

Sør
Materiale
Tre
Taktype
Saltak
Vinduer
4
Dører
0
Balkonger
1
Synlige etasjer
2
Vest
Materiale
Tre
Taktype
Saltak
Vinduer
3
Dører
1
Balkonger
1
Synlige etasjer
2
Øst
Materiale
Tre
Taktype
Saltak
Vinduer
4
Dører
0
Synlige etasjer
2
Nord
Materiale
Tre
Taktype
Saltak
Vinduer
4
Dører
0
Balkonger
1
Synlige etasjer
2

Hendelser

13.11.2025 Ferdigattest, 28/61, Knappenveien 56
11.11.2025 Knappenveien 56 Søknad om ferdigattest 28/61
11.08.2025 Fakturagrunnlag - 28/61/0/0 Knappenveien 56, endring av bygg - utvendig - Påbygg
11.08.2025 Ubw ordre 20674918
17.07.2025 Tillatelse til tiltak med ansvarsrett, 28/61, Knappenveien 56
11.07.2025 Knappenveien 56 Søknad om tillatelse i ett trinn 28/61