VerticalExtension Soeknad Enebolig

Oppføring av arker på enebolig i Kullhusbakken 25

📍 Kullhusbakken 25 , 3830 ULEFOSS

Nøkkelinfo

Sakstype
Påbygg
Bygningstype
Enebolig
Bruksareal
68 m²
Boenheter
1
Kommune
Nome
Fylke
Telemark
Gnr / Bnr
12 / 153
Saksnummer
26/2664
Fase
Søknad

Om byggesaken

To nye arker bygges på eksisterende saltak på enebolig i Kullhusbakken 25. Arkene plasseres på takflatene mot nordøst og sørvest for å forbedre romfunksjon og takhøyde i boligen. Påbygget er tilpasset bygningens form og uttrykk, med begrenset endring av bygningens ytre volum og høyde. Bygget har tre fasader i tre med saltak, og inneholder blant annet soveområde, bad, WC, gang og trapp i påbygget på totalt 68 m². Tiltaket påvirker i liten grad naboeiendommer med hensyn til utsyn, solforhold eller innsyn.

Produkter og materialer

Isolasjon Tak- og veggisolasjon

Isolasjon i tak og vegger i påbygg

Isolasjon for energieffektivitet og komfort i påbygg

Fasade Trepanel

🧱 tre

Tre som fasademateriale på påbygg

Fasadebekledning i tre til påbygg og arker

VVS Sanitærinstallasjoner

VVS-installasjoner for bad og WC i påbygg

Tømrer Påbygg konstruksjon

🧱 tre

Tømrerarbeid for oppføring av arker og påbygg

Tømrerarbeid for konstruksjon og montering av påbygg og arker

Vinduer Fasadevindu

🧱 tre

Antall: 12

4 vinduer på hver av fasadene nordøst, sørvest og nordvest/sørøst

Nye fasadevinduer i tre til arker og påbygg

Elektro Innvendig elektrisk anlegg

Elektrisk installasjon i påbygg for belysning og strøm

Trapper Innvendig trapp

Antall: 1

Trapp i påbygget på 15,5 m²

Innvendig trapp for adkomst mellom etasjer i påbygget

Maling Innvendig og utvendig maling

Maling av fasade og innvendige flater i påbygg

Tak Saltak

🧱 tre

Saltak tilpasset eksisterende takflate med arker

Taktekking og konstruksjon for påbygg med arker

Dører Innvendig dør

Antall: 4

Dører til soveområde, bad, WC og gang

Innvendige dører i påbygget

Grunnarbeid Fundamentering

Fundamentering for påbygg på eksisterende bolig

Grunnarbeid for påbygg

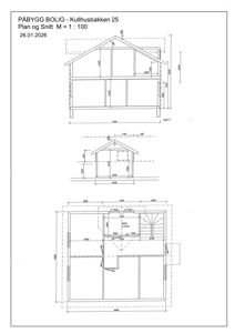
Plantegning

Påbygg Bolig 68.0 m²

Etasje 1 68.0 m²

Rom Areal Vinduer Dører
Soveområde 101 29.5 m² 2 1
Bad 102 8.0 m² 0 1
WC 103 3.0 m² 0 1
Gang 104 12.0 m² 0 0
Trapp 105 15.5 m² 0 0

Fasader

Påbygg

Nordøst
Materiale
Tre
Taktype
Saltak
Vinduer
4
Dører
0
Synlige etasjer
2
Sørvest
Materiale
Tre
Taktype
Saltak
Vinduer
4
Dører
0
Synlige etasjer
2
Nordvest
Materiale
Tre
Taktype
Saltak
Vinduer
4
Dører
1
Balkonger
1
Synlige etasjer
2
Sørøst
Materiale
Tre
Taktype
Saltak
Vinduer
4
Dører
1
Balkonger
1
Synlige etasjer
2

Hendelser

21.04.2026 Søknad om oppføring av arker på Kullhusbakken 25 gnr./bnr. 12/153