VerticalExtension Rammetillatelse Enebolig

Nytt påbygg 2. etasje på enebolig, Laubakken 6, Jessheim

📍 Laubakken 6A , 2053 JESSHEIM

Nøkkelinfo

Sakstype
Påbygg
Bygningstype
Enebolig
Bruksareal
106 m²
Boenheter
1
Kommune
Ullensaker
Fylke
Akershus
Gnr / Bnr
134 / 384
Saksnummer
2024/5496
Fase
Rammetillatelse

Om byggesaken

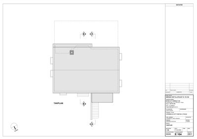
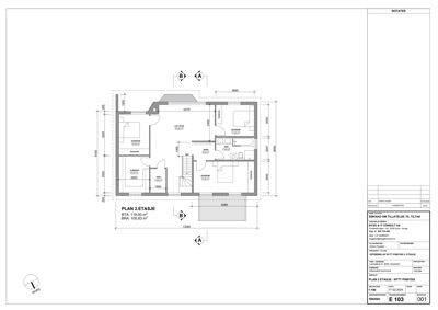
Nytt påbygg i 2. etasje på eksisterende enebolig på Laubakken 6, Jessheim, med et bruksareal på 105,63 m². Påbygget inneholder tre soverom, en stue, kjøkken, bad, bod og gang, og oppføres med saltak. Gesimshøyden blir 6,5 meter og mønehøyden 8,45 meter. Påbygget plasseres i samme fotavtrykk som eksisterende bolig uten økning i BYA. Det er én trapp i påbygget, og fasaden utføres i tre. Det foreligger nabosamtykke for plassering i 0 meters avstand til nabogrense. Tiltaket medfører ingen endring i antall boenheter eller parkeringsløsning.

Produkter og materialer

Trapper Innvendig trapp

Antall: 1

Trapp mellom 1. etasje og nytt påbygg i 2. etasje

Innvendig trapp for adkomst til påbygg

Tak Saltak

Antall: 1

Saltak på nytt påbygg i 2. etasje

Taktekking og konstruksjon for saltak på påbygg

Fasade Trepanel

🧱 Tre

Fasade i tre med saltak, gesimshøyde 6,5 m, mønehøyde 8,45 m

Utvendig kledning i tre for påbyggets fasader

Maling Innvendig og utvendig maling

Maling av innvendige og utvendige flater i påbygg

VVS Sanitærinstallasjoner

Sanitærinstallasjoner for bad i påbygg

VVS-installasjoner for nytt bad i påbygg

Tømrer Trekonstruksjoner

🧱 Tre

Tømrerarbeid og montering av trekonstruksjoner for påbygg

Bygging av trekonstruksjoner for påbyggets bærende og ikke-bærende deler

Vinduer Fasadevindu

Antall: 4

Vinduer i fasade sør-øst og nord-øst, 1 vindu i hvert soverom og 1 i loftstue

Nye vinduer i påbyggets fasader, antall og plassering iht. tegninger

Dører Innvendige dører

Antall: 8

Innvendige dører til soverom, bod, bad, gang og loftstue i påbygg

Dører for rominndeling i påbygg

Gulv Innvendige gulv

Innvendige gulv i påbyggets rom

Elektro Elektriske installasjoner

Elektriske installasjoner for belysning og strøm i påbygg

Elektroarbeid for nytt påbygg

Betong Fundamentering

Fundamentering for påbygg i henhold til K0-tiltak uten forverring av stabilitet

Grunnarbeid og fundamentering for nytt påbygg

Fasader

Enebolig

Sør-Øst
Materiale
Tre
Taktype
Saltak
Høyde
6.6 m
Mønehøyde
8.4 m
Vinduer
4
Dører
0
Synlige etasjer
2

Hendelser

15.04.2026 Søknad om utsettelse - Gnr 134 bnr 384 - Laubakken 6 - Påbygg - Enebolig
22.11.2024 Tillatelse til tiltak - gnr 134 bnr 384 - Laubakken 6 - Påbygg - Enebolig
18.11.2024 Spørsmål om ytterligere dokumentasjon - Gnr 134 bnr 384 - Laubakken 6 - Påbygg - Enebolig
05.11.2024 Tilleggsdokumentasjon - Gnr 134 bnr 384 - Laubakken 6 - Påbygg - Enebolig
06.08.2024 Tilbakemelding om mangler - gnr 134 bnr 384 - Laubakken 6 - Påbygg - Enebolig
19.06.2024 Søknad om tillatelse til tiltak i ett trinn - Gnr 134 bnr 384 - Laubakken 6 - Oppføring av nytt påbygg 2. etasje