VerticalExtension Ferdigattest Enebolig

Påbygg, fasadeendring og bruksendring på enebolig i Midtre Gunnaråsen 18

📍 Midtre Gunnaråsen 18 , 3475 SÆTRE

Nøkkelinfo

Sakstype
Påbygg
Bygningstype
Enebolig
Bruksareal
212 m²
Boenheter
1
Kommune
Asker
Fylke
Akershus
Gnr / Bnr
301 / 207
Saksnummer
21/2728
Fase
Ferdigattest

Om byggesaken

Prosjektet omfatter et påbygg over eksisterende integrert garasje på en enebolig i Midtre Gunnaråsen 18. Påbygget utvider stuearealet og får et flatt tak med en takterrasse over. Fasadeendringer inkluderer nye vinduer og erstatning av garasjeport med vindu og betong. Garasjen endres fra tilleggsdel til hoveddel og bygges om til treningsrom. Bygningen har saltak med teglstein, trekledning og to etasjer. Påbygget har fått et visuelt uttrykk som står i kontrast til boligens tradisjonelle arkitektur, men er godkjent etter omprosjektering. Totalt areal etter tiltaket er ca. 212,5 m².

Produkter og materialer

Tømrer Påbygg konstruksjon

🧱 Treverk

Påbygg over eksisterende garasje, utvidelse av stue

Tømrerarbeid for påbygg og innlemming av garasje i bolig

Fasade Vinduer

🧱 Tre med 3-lags glass

Antall: 12

Nye vinduer i fasade nordøst, erstatning av garasjeport med vindu og betong

Nye fasadevinduer for påbygg og fasadeendring

Rekkverk Glassrekkverk

🧱 Glass

Antall: 1

Glassrekkverk på takterrasse for lettere og mindre topptung løsning

Rekkverk for takterrasse

Gulv Innvendige gulv

Gulv i påbygg og ombygget treningsrom

Nye gulv i påbygg og ombygget garasje til treningsrom

Elektro Elektrisk anlegg

Elektrisk installasjon i påbygg og ombygget treningsrom

Elektroarbeid for nye rom og fasadeendringer

Fasade Dører

🧱 Tre eller tilsvarende

Antall: 1

Dør i fasade nordøst

Dør i fasade for adkomst

Grunnarbeid Fundament og drenering

Mulige fundamentendringer for påbygg

Grunnarbeid for påbygg, eventuelle fundamentjusteringer

Tak Flatt tak med takterrasse

🧱 Membran og rekkverk i glass

Antall: 1

Flatt tak over påbygg med takterrasse, glassrekkverk anbefalt for estetikk

Tak med takterrasse over påbygg

VVS Sanitær og ventilasjon

Oppgradering av VVS i påbygg og ombygget rom

VVS-installasjoner for påbygg og bruksendring

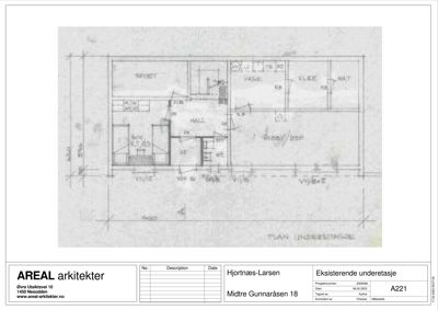
Plantegning

Enebolig 212.5 m²

Etasje 0 104.5 m²

Rom Areal Vinduer Dører
Sport 001 44.4 m² 1 1
Vask 002 6.4 m² 0 1
Klar 003 2.6 m² 0 1
Mat 004 2.8 m² 0 1
Sov 005 24.0 m² 1 1
Hall 006 1.8 m² 0 1
VF 007 2.4 m² 0 1
WC 008 1.5 m² 0 1
Hobby/Disp 009 28.6 m² 3 1

Etasje 1 108.0 m²

Rom Areal Vinduer Dører
Stue 101 35.0 m² 3 2
Sove 1 102 14.0 m² 1 1
Sove 2 103 14.0 m² 1 1
Sove 3 104 14.0 m² 1 1
Bad 105 8.0 m² 0 1
Gang 106 12.0 m² 0 3
Kjøkken 107 10.0 m² 1 1
Entré 108 5.0 m² 0 1

Eksisterende underetasje 0.0 m²

Etasje 0 0.0 m²

Rom Areal Vinduer Dører
Kjeller 001 0.0 m² 0 0

Fasader

Enebolig

Nordøst
Materiale
Tre
Taktype
Saltak
Takmat.
Tegl
Høyde
5.1 m
Mønehøyde
5.4 m
Vinduer
6
Dører
1
Balkonger
1
Synlige etasjer
2
Nordvest
Materiale
Tre
Taktype
Saltak
Takmat.
Tegl
Høyde
5.1 m
Mønehøyde
5.4 m
Vinduer
2
Dører
1
Balkonger
1
Synlige etasjer
2
Sørvest
Materiale
Tre
Taktype
Saltak
Takmat.
Tegl
Høyde
5.1 m
Mønehøyde
5.4 m
Vinduer
3
Dører
1
Synlige etasjer
2
Sørøst
Materiale
Tre
Taktype
Saltak
Takmat.
Tegl
Høyde
5.1 m
Mønehøyde
5.4 m
Vinduer
1
Dører
0
Balkonger
1
Synlige etasjer
2
Nord-øst
Materiale
Tre
Taktype
Saltak
Høyde
6.8 m
Mønehøyde
8.5 m
Vinduer
8
Dører
1
Balkonger
1
Synlige etasjer
2
Syd-vest
Materiale
Tre
Taktype
Saltak
Høyde
6.8 m
Mønehøyde
8.5 m
Vinduer
3
Dører
1
Synlige etasjer
1
Vest
Taktype
Saltak
Vinduer
3
Dører
1
Synlige etasjer
1

Hovedbygg

Nordøst
Vinduer
12
Dører
1
Synlige etasjer
2

Hendelser

21.04.2026 301/207 Midtre Gunnaråsen 18 - Ferdigattest - påbygg, fasadeendring og bruksendring
07.04.2026 301/207 Søknad om ferdigattest
09.05.2023 301/207 Tillatelse til tiltak i ett trinn - Påbygg, fasadeendring og bruksendring
18.04.2023 301/207 Tegninger - Påbygg, fasadeendring og bruksendring
22.02.2023 301/207 Nye fasadetegninger etter avtale - Påbygg, fasadeendring og bruksendring
29.04.2022 301/207 Tilbakemelding på justerte tegninger - Påbygg, fasadeendring og bruksendring
31.03.2022 301/207 Justerte tegninger - Påbygg, fasadeendring og bruksendring
15.12.2021 301/207 Begrunnelse for at søknaden ikke kan godkjennes - Påbygg, fasadeendring og bruksendring
10.12.2021 301/207 Begrunnelse for at søknaden ikke kan godkjennes - Påbygg, fasadeendring og bruksendring
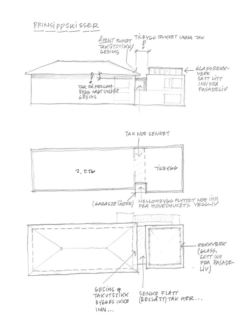
10.12.2021 301/207 Prinsippskisse - Påbygg, fasadeendring og bruksendring
15.10.2021 301/207 E-postkorrespondanse - Påbygg, fasadeendring og bruksendring
09.10.2021 301/207 Referat forhåndskonferanse - Påbygg, fasadeendring og bruksendring
11.08.2021 301/207 Bilder - Påbygg, fasadeendring og bruksendring
11.08.2021 301/207 Oppsummering av telefonsamtale med tiltakshaver - Påbygg, fasadeendring og bruksendring
06.08.2021 301/207 Varsel om avslag - Søknad om påbygg, fasadeendring og bruksendring
21.06.2021 301/207 Kvitteringsbrev - Påbygg, fasadeendring og bruksendring
17.06.2021 301/207 Søknad om påbygg, fasadeendring og bruksendring