VerticalExtension Ferdigattest Enebolig

Mindre påbygg på eksisterende terrassedekke i Myrvangen 82, Drammen

📍 Myrvangen 82

Nøkkelinfo

Sakstype
Påbygg
Bygningstype
Enebolig
Bruksareal
10 m²
Boenheter
1
Kommune
Drammen
Fylke
Buskerud
Saksnummer
24/31242
Fase
Ferdigattest

Om byggesaken

Mindre påbygg på ca. 10 m² på eksisterende terrassedekke i enebolig på Myrvangen 82. Påbygget består av forlengelse av eksisterende yttervegger på siporex-elementer, slik at ytterveggene samsvarer med boligdelens fotavtrykk i plan 1. Hovedtaket utvides sømløst for å dekke påbygget. Tiltaket inkluderer ny yttervegg, ny terrassedør, og flere vinduer, blant annet gjenbruk av eksisterende vindu ved ny terrassedør. Påbygget etablerer et ekstra soverom. Alle konstruksjonstiltak er prosjektert av RIB Konsult AS. Bygget har tre takvinduer og flere fasadevinduer i tre med tegltak. Påbygget er ferdigstilt og det er utstedt ferdigattest.

Arbeidsomfang

- Påbygg på ca. 10 m² på eksisterende terrassedekke for å skape ekstra soverom.

Produkter og materialer

Vinduer Fasadevindu

🧱 Tre

Antall: 3

Nye vinduer 12x12, 12x8, og gjenbruk av eksisterende vindu ved ny terrassedør

Nye og gjenbrukte fasadevinduer i tre i påbygget

Fasade Yttervegg

🧱 Tre, Siporex-elementer

Forlengelse av eksisterende yttervegger på siporex-elementer, yttervegger benyttes videre som innvendige vegger

Ny yttervegg som forlengelse av eksisterende yttervegger på siporex terrassedekke

Tømrer Tømrerarbeid

Utførelse av påbygg med forlengelse av yttervegger, takutvidelse og montering av vinduer og dør

Tømrerarbeid for påbygg

Tak Takkonstruksjon

🧱 Tegl takstein, valmtak/saltak

Hovedtak utvides slik at takkonstruksjon blir sømløs over påbygget

Utvidelse av hovedtak med tegltak for å dekke påbygg

Dører Terrassedør

🧱 Tre

Antall: 1

Ny terrassedør 12x21

Ny terrassedør i påbygget

Grunnarbeid Terrassedekke

🧱 Siporex-elementer

Eksisterende terrassedekke av siporex-elementer benyttes som grunnlag for påbygg

Eksisterende terrassedekke som bærekonstruksjon for påbygg

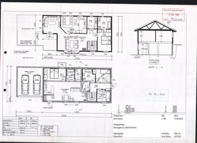
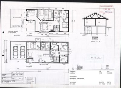
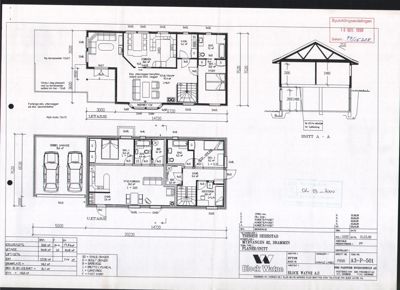
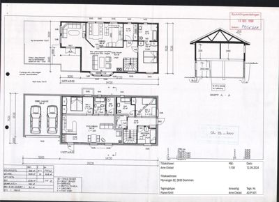
Plantegning

Enebolig 127.5 m²

Etasje 1 94.4 m²

Rom Areal Vinduer Dører
Stue 101 47.4 m² 3 2
Kjøkken 102 18.5 m² 1 1
Vaskerom 103 5.2 m² 0 1
Bad 104 7.1 m² 0 1
Sov. 1 105 13.3 m² 1 1
Trapperom 106 0.0 m² 0 0
Trapperom 107 0.0 m² 0 0

Etasje 0 33.1 m²

Rom Areal Vinduer Dører
Stue/Kjøkken 001 31.9 m² 2 1
Gang 002 2.6 m² 0 2
Sov. 1 003 11.9 m² 1 1
Bad 004 4.4 m² 0 1
Bod 005 3.1 m² 0 1
Gang 006 6.4 m² 0 2
Sov. 2 007 9.2 m² 1 1
Gjestesov 008 6.8 m² 1 1
Bod 009 3.3 m² 0 1
Gjestesov 010 6.8 m² 1 1
Bod 011 3.3 m² 0 1

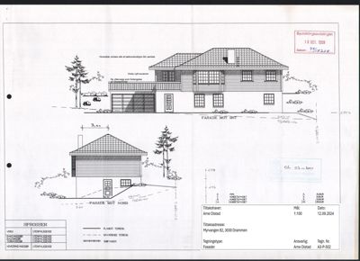
Fasader

Enebolig

Vest
Materiale
Tre
Taktype
Valmtak
Takmat.
Tegl
Høyde
2.5 m
Mønehøyde
4.1 m
Vinduer
5
Dører
0
Synlige etasjer
1
Sør
Materiale
Tre
Taktype
Valmtak
Takmat.
Tegl
Høyde
2.5 m
Mønehøyde
4.1 m
Vinduer
1
Dører
1
Balkonger
1
Synlige etasjer
1
Øst
Materiale
Tre
Taktype
Saltak
Takmat.
Tegl
Vinduer
6
Dører
1
Balkonger
1
Synlige etasjer
2
Nord
Materiale
Tre
Taktype
Saltak
Takmat.
Tegl
Vinduer
1
Dører
1
Synlige etasjer
1

Hendelser

07.04.2026 Myrvangen 82, ferdigattest for påbygg på eksisterende terrassedekke (omgjøringsvedtak) ferdigattest
23.03.2026 Myrvangen 82, Feil i gebyrkrav
24.02.2026 Myrvangen 82, ferdigattest for mindre påbygg på eksisterende terrassedekke ferdigattest
18.02.2026 Myrvangen 82, søknad om ferdigattest og melding om endring ansvarsrett ferdigattest
17.02.2026 Myrvangen 82, tilbakemelding angående ferdigattest ferdigattest
12.02.2026 Myrvangen 82 - Avklaring før søknad ferdigattest ferdigattest
24.09.2024 Myrvangen 82, tillatelse til oppføring av mindre påbygg på eksisterende terrassedekke
20.09.2024 Myrvangen 82, reviderte tegninger
12.09.2024 Myrvangen 82, Ettersendelse av informasjon
12.09.2024 Myrvangen 82, vi trenger flere opplysninger for å behandle søknaden din søknad
28.08.2024 Myrvangen 82, melding om mottatt søknad søknad
27.08.2024 Myrvangen 82, Søknad om tillatelse til tiltak - Påbygg rammetillatelse