VerticalExtension Ferdigattest Enebolig

Påbygg og glassrekkverk på terrasse, Ridderkleiva 32

📍 Ridderkleiva 32 , 1386 ASKER

Nøkkelinfo

Sakstype
Påbygg
Bygningstype
Enebolig
Bruksareal
7 m²
Boenheter
1
Kommune
Asker
Fylke
Akershus
Gnr / Bnr
55 / 223
Saksnummer
20/2217
Fase
Ferdigattest

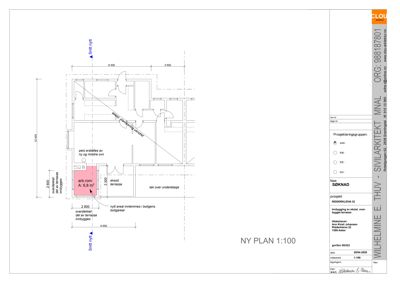
Om byggesaken

Ny innbygging av eksisterende overbygget terrasse på 6,8 m² i 2. etasje på en enebolig i Ridderkleiva 32. Påbygget omfatter isolerte vegger med nye vindusrammer i hvitt, og glasspartier på den åpne siden for å likne naboboligens løsning. Eksisterende trerekkverk på terrassen erstattes med et nytt rekkverk i glass. Innbyggingen gir et nytt arbeidsrom som knyttes til boligens stue med åpen forbindelse. Taket over terrassen beholdes, men isoleres på undersiden, noe som medfører en lavere romhøyde (1,8 m) ved yttervegg, som det er søkt om fravik for. Bygget har saltak og trefasade, og inngår i et boligområde med liknende bebyggelse.

Produkter og materialer

Gulv Isolert gulv

Gulv i innbygget terrasse må isoleres som del av innbyggingen

Fasade Glassrekkverk

🧱 Glass med aluminiumsramme eller lignende

Antall: 1

Glassrekkverk som erstatter eksisterende trerekkverk på terrasse

Nytt glassrekkverk monteres på resterende del av veranda for å erstatte eksisterende trerekkverk

Tak Isolert tak underside

🧱 Isolasjon i takets underside

Eksisterende tak over terrassen beholdes, men isoleres på undersiden for å oppfylle dagens krav

Isolasjon monteres på undersiden av eksisterende tak over terrassen

Grunnarbeid Ingen nye grunnarbeider

Påbygget bygges på eksisterende terrassekonstruksjon, ingen nye grunnarbeider nødvendig

Ingen nye grunnarbeider da påbygget er innbygging av eksisterende terrasse

Tømrer Innbygging av terrasse

🧱 Treverk og isolasjon

Innbygging av eksisterende overbygget terrasse med isolerte vegger og nye vinduer

Innbygging av terrasse som omgjøres til arbeidsrom med isolerte vegger og glasspartier

Vinduer Fasadevindu

🧱 Hvitmalte vindusrammer

Nye vindusrammer i hvitt som erstatter gamle vinduer på terrassen

Nye vinduer monteres i innbyggingen av terrassen for å isolere og lukke arealet

Brannvern Brannsikring mot nabo

Brannsikring i henhold til ansvarserklæring og søknad

Tiltaket inkluderer brannsikring mot tilliggende og underliggende nabo

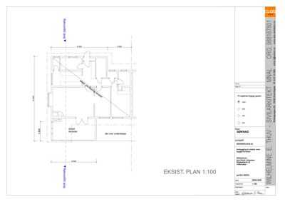
Plantegning

Eksisterende plan 0.0 m²

Etasje 1 0.0 m²

Rom Areal Vinduer Dører
Gang 0 0.0 m² 0 2
Stue 0 0.0 m² 2 1
Kjøkken 0 0.0 m² 1 1
Vaskerom 0 0.0 m² 0 1
Bad 0 0.0 m² 0 1
Soverom 0 0.0 m² 1 1
Soverom 0 0.0 m² 1 1
Sovegang 0 0.0 m² 0 1

Enebolig 120.5 m²

Etasje 1 120.5 m²

Rom Areal Vinduer Dører
Stue 101 35.2 m² 2 2
Soverom 102 12.5 m² 1 1
Soverom 103 11.0 m² 1 1
Bad 104 6.5 m² 0 1
Gang 105 8.0 m² 0 3
Kjøkken 106 15.0 m² 1 1
Vaskerom 107 4.5 m² 0 1
Teknisk rom 108 3.5 m² 0 1

Fasader

Enebolig

Sydvest
Materiale
Tre
Taktype
Saltak
Vinduer
6
Dører
2
Balkonger
1
Synlige etasjer
2
Nordvest
Materiale
Tre
Taktype
Saltak
Høyde
5.0 m
Vinduer
5
Dører
1
Balkonger
1
Synlige etasjer
2

Hendelser

10.04.2026 55/223 Ridderkleiva 32 - Søknad om ferdigattest
25.03.2026 55/223 Ridderkleiva 32 - Utsatt frist for ferdigstillelse av tiltaket
23.03.2026 55/223 Ridderkleiva 32 - Ber om utsatt frist for innsending av søknad om ferdigattest
19.03.2026 55/223 Påbygg på overbygget terrasse og oppføring av glassrekkverk - Manglende ferdigattest eller midlertidig brukstillatelse
15.05.2020 55/223 Tillatelse til påbygg på overbygget terrasse og oppføring av glassrekkverk
06.05.2020 55/223 Oversendelse supplerende dokumentasjon - Påbygg på overbygget terrasse og oppføring av glassrekkverk
05.05.2020 55/223 Oppfølging av mangelbrev - Påbygg på overbygget terrasse og oppføring av glassrekkverk
04.05.2020 55/223 Ufullstendig søknad om påbygg på overbygget terrasse og oppføring av glassrekkverk
27.04.2020 55/223 Kompletterende dokumentasjon - Påbygg på overbygget terrasse og oppføring av glassrekkverk
13.03.2020 55/223 Ufullstendig søknad om påbygg på overbygget terrasse og oppføring av glassrekkverk
03.03.2020 55/223 Beskrivelse og supplerende dokumentasjon - Påbygg på overbygget terrasse og oppføring av glassrekkverk