VerticalExtension UnderBehandling Enebolig

Påbygg på garasje i Solvollveien 7D, Fauske

📍 Solvollveien 7D , 8206 FAUSKE

Nøkkelinfo

Sakstype
Påbygg
Bygningstype
Enebolig
Bruksareal
50 m²
Boenheter
2
Kommune
Fauske - Fuossko
Fylke
Nordland - Nordlánnda
Gnr / Bnr
104 / 779
Saksnummer
2026/889
Fase
Under behandling

Om byggesaken

Påbygg på eksisterende garasje tilknyttet vertikaldelt tomannsbolig i Solvollveien 7D. Påbygget utvider boligarealet med nye rom inkludert stue og soverom, med et totalt tilleggsareal under 50 m². Bygget er i to etasjer med saltak og trekledning, og har brannmotstand EI 30 i konstruksjonen. Det er ett nytt vindu i tilbygget og nødvendige branntekniske tiltak er ivaretatt. Fundamenteringen benytter eksisterende garasjes konstruksjon uten nye grunnarbeider. Prosjektet inkluderer trapper og nye dører, og er tilpasset gjeldende reguleringsplan og brannkrav.

Produkter og materialer

Elektro

Elektrisk anlegg i tilbygget i henhold til forskrift

Elektrisk installasjon for belysning og strøm i tilbygget

Trapper Innvendig trapp

Antall: 1

Trapp i tilbygget til 2. etasje

Innvendig trapp for adkomst til tilbyggets 2. etasje

VVS

VVS-installasjoner for bad og kjøkken i tilbygget

Vann, avløp og ventilasjon i tilbygget

Fasade Trekledning

🧱 Tre

Trekledning på fasader med saltak

Kledning av tilbygget i tre for fasader med saltak

Brannvern Branncellebegrensende bygningsdeler

Brannmotstand EI 30 i konstruksjon og bygningsdeler

Branntekniske tiltak i henhold til krav for brannklasse 1

Isolasjon

Isolasjon i vegger og tak i henhold til TEK17

Isolasjon for varme og lyd i tilbygget

Dører Ytterdør

🧱 Tre eller tilsvarende

Antall: 2

Nye dører i tilbygget med brannmotstand EI 30

Ytterdører til tilbygget med brannmotstand

Grunnarbeid Fundamentering

Bruk av eksisterende fundamentering på garasje, ingen nye grunnarbeider

Fundamentering basert på eksisterende garasjes konstruksjon

Gulv

Innvendige gulv i tilbygget, antatt parkett eller fliser på bad

Gulvbelegg i tilbygget tilpasset romfunksjon

Vinduer Fasadevindu

🧱 Tre/Aluminium med 3-lags energiglass

Antall: 1

Nye vinduer i tilbygget med brannmotstand EI 30

Nye vinduer i tilbygget med brannmotstand og energiglass

Tak Saltak

🧱 Takstein eller tilsvarende

Saltak på tilbygget

Taktekking med saltak på tilbygget

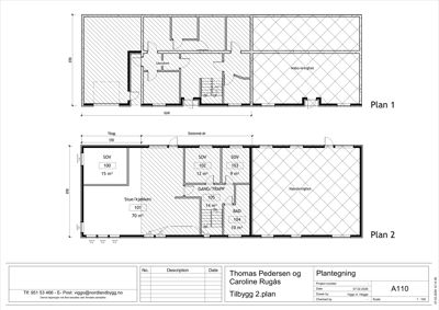
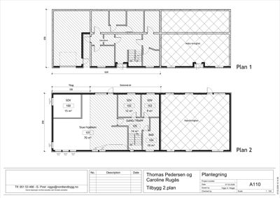
Plantegning

Tilbygg 130.0 m²

Etasje 2 130.0 m²

Rom Areal Vinduer Dører
SOV 100 15.0 m² 1 1
Stue/kjøkken 101 70.0 m² 3 1
SOV 102 12.0 m² 1 1
SOV 103 9.0 m² 1 1
BAD 104 10.0 m² 0 1
GANG/TRAPP 105 14.0 m² 0 1

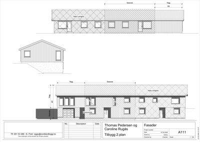
Fasader

Tilbygg 2.plan

Vest
Materiale
Tre
Taktype
Saltak
Høyde
6.9 m
Vinduer
10
Dører
2
Synlige etasjer
2
Nord
Materiale
Tre
Taktype
Saltak
Vinduer
2
Dører
0
Synlige etasjer
1

Nabo Leilighet

Vest
Materiale
Tre
Taktype
Saltak
Vinduer
6
Dører
2
Synlige etasjer
1

Hendelser

21.04.2026 104/779 - Søknad om tillatelse i ett trinn - Solvollveien 7D
18.03.2026 104/779 - Thomas Pedersen - Foreløpig svar angående søknad om oppføring av påbygg - Solvollveien 7D, Fauske
11.03.2026 104/779 - Thomas Pedersen - Søknad om tillatelse til tiltak mindre enn 50 m2 - Tilbygg