VerticalExtension Rammetillatelse Enebolig

Påbygg og bruksendring på enebolig i Storeteigane 6, Godøya

📍 Storeteigane 6 , 6055 GODØYA

Nøkkelinfo

Sakstype
Påbygg
Bygningstype
Enebolig
Bruksareal
214 m²
Boenheter
1
Kommune
Giske
Fylke
Møre og Romsdal
Gnr / Bnr
125 / 54
Saksnummer
2026/145
Fase
Rammetillatelse

Om byggesaken

På Storeteigane 6 på Godøya gjennomføres et byggeprosjekt som omfatter påbygg, bruksendring og fasadeendringer på en eksisterende enebolig. Prosjektet inkluderer fjerning av karnapp, innsetting av nye vinduer, utvidelse av terrasse med pergola på ca. 9 m² med to vegger og glasstak, samt etablering av et uisolert takoverbygg over inngang i underetasjen. Bruksendringen omfatter omgjøring av disponibelt rom i underetasjen til kjellerstue og soverom med tilfredsstillende himlingshøyde. Bygningen har saltak og trekledning, og fasadene oppgraderes med nye vinduer og glassrekkverk på terrasse. Det er etablert ny støttemur på 80 cm høyde, og terrassen utvides med ca. 8,3 m². Prosjektet er i rammetillatelsesfasen med godkjente vedtak for tiltakene.

Produkter og materialer

Mur Støttemur

🧱 Mur

Antall: 1

Ny støttemur 80 cm høy ved terrasse

Støttemur for terrasseutvidelse

Isolasjon Etterisolering vegger

🧱 Isolasjon

Etterisolering av vegger i forbindelse med fasadeendring

Isolasjon for vegger ved fasadeendring

VVS Sanitæranlegg

Oppgradering av sanitæranlegg i forbindelse med bruksendring

Sanitærinstallasjoner i ombygde rom

Elektro Elektrisk installasjon

Elektriske installasjoner i påbygg og ombygde rom

Elektrisk arbeid for nye rom og påbygg

Bruksendring Innvendig rom

Antall: 2

Ombygging av disponibelt rom til kjellerstue (29 m²) og soverom (9 m²) i underetasje

Bruksendring av to rom i underetasjen til oppholdsrom og soverom med tilfredsstillende himlingshøyde

Fasade Vinduer

🧱 Tre/aluminium

Antall: 5

Nye vinduer i fasader, inkludert høyt vindu for rømming, uten sprosser

Utskifting og innsetting av nye fasadevinduer i tre/aluminium med energiglass

Tak Takoverbygg

🧱 Uisolert tre

Antall: 1

Uisolert takoverbygg over inngang i underetasjen

Takoverbygg over inngang i underetasjen, ikke søknadspliktig men del av prosjektet

Tømrer Trearbeid

🧱 Tre

Montering av trekonstruksjoner for påbygg og pergola

Tømrerarbeid for påbygg, pergola og terrasseutvidelse

Fasade Dører

🧱 Tre

Antall: 3

Nye dører i fasade, inkludert dobbel balkongdør og inngangsdør

Nye ytterdører i tre tilpasset fasadeendring

Terrasse Pergola

🧱 Tre med glasstak

Antall: 1

Pergola med to vegger og glasstak på ca. 9 m² på eksisterende terrasse

Pergola med glasstak og to vegger på terrasse, utvidelse av terrasse med ca. 8,3 m²

Gulv Innvendig gulv

Gulv i kjellerstue og soverom etter bruksendring

Nye gulvflater i ombygde rom i underetasjen

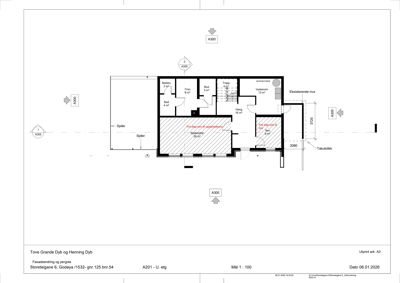
Plantegning

Enebolig 213.6 m²

Etasje 0 99.2 m²

Rom Areal Vinduer Dører
Kjellerstue 001 29.0 m² 0 1
Gang 002 16.0 m² 0 3
Bad 003 4.0 m² 0 1
Badstu 004 2.0 m² 0 1
Trim 005 8.0 m² 0 2
Bod 006 3.0 m² 0 1
Trapp 007 4.0 m² 0 0
Vaskerom 008 13.0 m² 0 1
Sov 009 9.0 m² 0 1

Etasje 1 114.4 m²

Rom Areal Vinduer Dører
Stue 101 47.0 m² 1 1
Kjøkken 102 17.0 m² 1 1
Gang 103 15.0 m² 0 2
Sov 104 8.0 m² 1 1
Bad 105 6.0 m² 0 1
Grovkjøkken 106 5.0 m² 0 1
Pergola 107 9.0 m² 0 0

Fasader

Enebolig

Nord
Materiale
Tre
Taktype
Saltak
Høyde
6.5 m
Mønehøyde
8.2 m
Vinduer
5
Dører
1
Balkonger
1
Synlige etasjer
2
Sør
Materiale
Tre
Taktype
Saltak
Høyde
6.5 m
Mønehøyde
8.2 m
Vinduer
4
Dører
1
Synlige etasjer
2
Vest
Materiale
Tre
Taktype
Saltak
Høyde
6.5 m
Mønehøyde
8.2 m
Vinduer
2
Dører
1
Synlige etasjer
2
Øst
Materiale
Tre
Taktype
Saltak
Høyde
5.2 m
Mønehøyde
7.8 m
Vinduer
3
Dører
0
Synlige etasjer
2

Garasje

Vest
Materiale
Tre
Taktype
Flatt tak
Høyde
2.5 m
Vinduer
1
Dører
1
Synlige etasjer
1

Hendelser

21.04.2026 Gbnr 125/54 - Storeteigane 6 - Endring berande konstruksjon
21.04.2026 Gbnr 125/54 - Storeteigane 6 - Endring av bygg
14.04.2026 Vedtak - Gbnr 125/54 - Storeteigane 6 - Påbygg
23.03.2026 Gbnr 125/54 - Storeteigane 6 - Bruksendring frå tillegsdel til hovuddel - tilbakemelding på vedtak
23.02.2026 Vedtak - Gbnr 125/54 - Storeteigane 6 - Bruksendring frå tilleggsdel til hovuddel
03.02.2026 Gbnr 125/54 - Storeteigane 6 - Endring av bygg - Eit-trinnssøknad
09.01.2026 Gbnr 125/54 - Storeteigane 6 - Endring av bygg - nabovarsel