Facade
Fasadetegning av en bygning sett fra sør, med mål og detaljer.
1 / 14
VerticalExtension
Unknown
Enebolig
Påbygg av bolig
📍 Tangenveien 1 , 1389 HEGGEDAL
Nøkkelinfo
- Sakstype
- Påbygg
- Bygningstype
- Enebolig
- Kommune
- Asker
- Fylke
- Akershus
- Gnr / Bnr
- 212 / 199
- Saksnummer
- 20/5804
- Fase
- Unknown
Om byggesaken
Saken gjelder søknad om tillatelse til påbygg av en bolig. Det er utstedt tillatelse til tiltaket, og det foreligger tegninger for fasader, snitt og situasjonsplan.
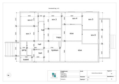
Plantegning
Enebolig 105.6 m²
Etasje 1 0.0 m²
| Rom | Areal | Vinduer | Dører |
|---|---|---|---|
| Soverom 2 sov.2 | 0.0 m² | 0 | 1 |
| Soverom 3 sov.3 | 0.0 m² | 0 | 1 |
| Soverom 4 sov.4 | 0.0 m² | 0 | 1 |
| Soverom 5 sov.5 | 0.0 m² | 0 | 1 |
| Soverom 6 sov.6 | 0.0 m² | 0 | 1 |
| Stue stue | 0.0 m² | 0 | 2 |
| Hall hall | 0.0 m² | 0 | 1 |
| Trappe trapp | 0.0 m² | 0 | 0 |
| Hall hall | 0.0 m² | 0 | 1 |
| Kjøkken kjokken | 0.0 m² | 0 | 1 |
| Bad bad | 0.0 m² | 0 | 1 |
| Gang gang | 0.0 m² | 0 | 1 |
| Toalett toalett | 0.0 m² | 0 | 1 |
Etasje 2 105.6 m²
| Rom | Areal | Vinduer | Dører |
|---|---|---|---|
| Sov rom 1 sov.1 | 14.3 m² | 1 | 1 |
| Sov rom 2 sov.2 | 15.0 m² | 1 | 1 |
| Sov rom 3 sov.3 | 16.2 m² | 1 | 1 |
| Sov rom 4 sov.4 | 14.0 m² | 1 | 1 |
| Sov rom 5 sov.5 | 16.8 m² | 1 | 1 |
| Sov rom 6 sov.6 | 15.3 m² | 1 | 1 |
| Hall hall | 8.0 m² | 0 | 6 |
| Stue stue | 24.5 m² | 1 | 1 |
Fasader
Enebolig
Sør
- Materiale
- Tre
- Taktype
- Flatt tak
- Høyde
- 5.1 m
- Vinduer
- 3
- Dører
- 1
- Balkonger
- 1
- Synlige etasjer
- 1
Vest
- Materiale
- Tre
- Taktype
- Flatt tak
- Høyde
- 4.9 m
- Vinduer
- 5
- Dører
- 0
- Balkonger
- 1
- Synlige etasjer
- 2
Nord
- Materiale
- Tre
- Taktype
- Flatt tak
- Høyde
- 4.8 m
- Vinduer
- 2
- Dører
- 1
- Synlige etasjer
- 1
Øst
- Materiale
- Tre
- Taktype
- Flatt tak
- Vinduer
- 4
- Dører
- 0
- Synlige etasjer
- 1
Hovedbygg
Øst
- Materiale
- Tre
- Taktype
- Flatt tak
- Vinduer
- 6
- Dører
- 0
- Synlige etasjer
- 1
Hendelser
13.04.2026
212/199 Påbygg bolig - Manglende ferdigattest eller midlertidig brukstillatelse
20.10.2020
212/199 Tillatelse til tiltak - Påbygg bolig
24.09.2020
212/199 Mangelfull søknad - påbygg bolig
08.09.2020
212/199 Kvitteringsbrev - Påbygg bolig
07.09.2020
212/199 Søknad om påbygg bolig