VerticalExtension Rammetillatelse Enebolig

Påbygg, tilbygg og fasadeendring av våningshus i Tinghaugvegen 79

📍 Tinghaugvegen 78 , 3810 GVARV

Nøkkelinfo

Sakstype
Påbygg
Bygningstype
Enebolig
Bruksareal
116 m²
Boenheter
1
Kommune
Midt-Telemark
Fylke
Telemark
Gnr / Bnr
178 / 7
Saksnummer
26/7201
Fase
Rammetillatelse

Om byggesaken

Eksisterende enebolig med kjeller og én etasje bygges om til to etasjer med påbygg og tilbygg. Påbygg i 2. etasje på ca. 107 m² BRA etablerer flere soverom, TV-rom og bad, samt en overbygd veranda på 8,4 m². Tilbygg i 1. etasje på ca. 8,8 m² inkluderer ny inngangsportal og veranda. Fasadeendring med trekledning og tradisjonell detaljering, samt integrerte solpaneler i takflaten mot sør. Terrasser og verandaer oppføres i tilknytning til boligen. Bygget får saltak med tilpasset takvinkel og møneretning, og fasadene harmonerer med eksisterende tunstruktur og kulturlandskap. Totalt BRA etter tiltaket er ca. 115,6 m² i 2. etasje, med uendret kjeller og 1. etasje, og tilbyggets BYA er 10,5 m². Tiltaket er tilpasset LNF-område og vurdert i tråd med kommuneplanens bestemmelser.

Produkter og materialer

Bygningskomponenter Vinduer

🧱 Tre/aluminium

Antall: 27

Vinduer i fasader fordelt på 3 etasjer, inkludert soverom, stue og loftstue

Nye og eksisterende vinduer i boligen, tilpasset fasadeendring og påbygg

Gulv Innvendige gulvflater

Gulv i nye rom i påbygg og tilbygg, inkludert stue, kjøkken og soverom

Innvendige gulvflater med overflatebehandling tilpasset boligstandard

Terrasse Terrasse og veranda

🧱 Tre

Terrasse i 1. etasje på 28,8 m² og veranda i 2. etasje på 8,4 m²

Utendørs oppholdsarealer i tilknytning til bolig

Rekkverk Rekkverk på veranda og trapper

🧱 Tre

Rekkverk i tradisjonell stil på veranda og trapper

Sikkerhetsrekkverk for utendørs arealer

Betong Kjeller og fundament

🧱 Betong

Eksisterende kjeller opprettholdes, fundamentering for nye konstruksjoner

Betongarbeider i kjeller og fundament for påbygg og tilbygg

Fasade Trekledning med tradisjonell detaljering

🧱 Tre

Markerte gesimser, omramminger og rekkverk i tradisjonell stil

Fasadeendring med trekledning og tradisjonell detaljering for å harmonere med eksisterende bebyggelse og kulturlandskap

Elektro Elektriske installasjoner

Elektriske installasjoner i påbygg og tilbygg, inkludert solpaneler integrert i tak

Elektroarbeid for belysning, strøm og solcelleanlegg

Trapper Innvendig trapp

🧱 Tre

Antall: 1

Trapp mellom 1. og 2. etasje, tilpasset ny planløsning

Innvendig trapp for adkomst til påbygg

Isolasjon Termisk isolasjon

Isolasjon i vegger, tak og gulv i henhold til TEK17 krav

Isolasjon for energieffektivitet og komfort i påbygg og tilbygg

Bygningskomponenter Dører

🧱 Tre/glass

Antall: 11

Ytterdører og innerdører i bolig, inkludert inngangsportal og veranda

Dører for adkomst og rominndeling i påbygg og tilbygg

Maling Innvendig og utvendig maling

Maling av fasade og innvendige flater i påbygg og tilbygg

Overflatebehandling for beskyttelse og estetikk

Tømrer Bindingsverk og konstruksjon

🧱 Tre

Bindingsverk for vegger i påbygg og tilbygg, i henhold til TEK17 og Norsk Standard

Tømrerarbeid for nye vegger, tak og detaljer i påbygg og tilbygg

Grunnarbeid Fundamentering og grunnarbeid

Grunnarbeid tilpasset eksisterende bygg og nytt tilbygg/påbygg, vurdert i geoteknisk notat

Grunnarbeid og fundamentering for påbygg og tilbygg, med hensyn til områdestabilitet

Tak Saltak med integrerte solpaneler

🧱 Tegl takstein

Solpaneler integrert i takflaten mot sør, takvinkel og møneretning tilpasset eksisterende bygg

Nytt saltak med integrerte solpaneler som del av takflaten, i tråd med kommuneplanens føringer

VVS Sanitærinstallasjoner og varme

Våtromsarbeider, sanitærinstallasjoner og varmepumpe fra MULTI VVS & VARMEPUMPER AS

VVS-installasjoner i våtrom og varmeinstallasjoner i bolig

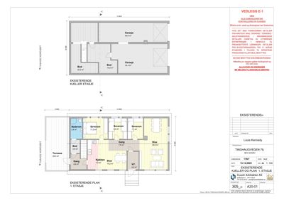
Plantegning

Enebolig 315.6 m²

Etasje 0 100.0 m²

Rom Areal Vinduer Dører
Bod 001 22.3 m² 0 1
Bod 002 14.0 m² 0 1
Garasje 003 29.6 m² 0 0
Garasje 004 34.4 m² 0 0

Etasje 1 100.0 m²

Rom Areal Vinduer Dører
Baderom 101 5.4 m² 0 1
Soverom 102 11.3 m² 1 1
Soverom 103 8.5 m² 1 1
Soverom 104 7.1 m² 1 1
Gang 105 7.6 m² 0 0
Stue 106 29.6 m² 2 1
Kjøkken 107 7.0 m² 1 1
Stue 108 14.2 m² 1 1
V.F. 109 4.5 m² 0 1
Gang 110 4.8 m² 0 1
VF. 111 8.0 m² 0 0

Etasje 2 115.6 m²

Rom Areal Vinduer Dører
Sov. 01 Sov. 01 9.8 m² 1 1
Baderom Baderom 6.4 m² 0 1
Sov. 02 Sov. 02 9.0 m² 1 1
Sov. 03 Sov. 03 9.8 m² 1 1
Sov. 04 Sov. 04 9.5 m² 1 1
Gang Gang 10.5 m² 0 0
Sov 06 Sov 06 15.8 m² 1 1
Loftstue Loftstue 9.0 m² 1 1
Sov.05 Sov.05 17.9 m² 1 1
Veranda Veranda 8.4 m² 0 0

Fasader

Enebolig

Nord
Materiale
Tre
Taktype
Saltak
Høyde
7.1 m
Mønehøyde
8.9 m
Vinduer
8
Dører
1
Synlige etasjer
2
Sør
Materiale
Tre
Taktype
Saltak
Høyde
6.6 m
Mønehøyde
8.9 m
Vinduer
4
Dører
1
Balkonger
1
Synlige etasjer
2
Nord/Vest
Materiale
Tre
Taktype
Saltak
Takmat.
Tegl
Høyde
6.6 m
Mønehøyde
8.9 m
Vinduer
5
Dører
1
Balkonger
1
Synlige etasjer
1
SydØst
Materiale
Tre
Taktype
Saltak
Takmat.
Tegl
Vinduer
4
Dører
0
Synlige etasjer
1
NordØst
Materiale
Tre
Taktype
Saltak
Takmat.
Tegl
Vinduer
0
Dører
1
Balkonger
1
Synlige etasjer
1
Sør/Vest
Materiale
Tre
Taktype
Saltak
Høyde
6.6 m
Mønehøyde
8.9 m
Vinduer
4
Dører
0
Balkonger
1
Synlige etasjer
2

Garasje

Sør/Vest
Materiale
Tre
Taktype
Saltak
Takmat.
Tegl
Vinduer
1
Dører
0
Synlige etasjer
1

Hendelser

17.04.2026 Tillatelse til tiltak - 178/7 - Tinghaugvegen 79 - Påbygg, tilbygg og fasadeendring av eksisterende våningshus
17.04.2026 Reviderte arealer på tiltaket
10.04.2026 Søknad om tillatelse i ett trinn 178/7 Tinghaugvegen 79
09.04.2026 Nabovarsel for tiltak på gbnr 178/7