VerticalExtension Ferdigattest Enebolig

Påbygg og fasadeendring på enebolig i Vasshaugen 1, Steinsland

📍 Vasshaugen 1 , 5379 STEINSLAND

Nøkkelinfo

Sakstype
Påbygg
Bygningstype
Enebolig
Bruksareal
218 m²
Boenheter
1
Kommune
Øygarden
Fylke
Vestland
Gnr / Bnr
127 / 38
Saksnummer
25/9161
Fase
Ferdigattest

Om byggesaken

Påbygg på eksisterende enebolig med innbygging av en balkong på 11,5 m² BYA som utvider kjøkken/stue-arealet, samt riving av 4 m² av eksisterende garasje som omgjøres til bod. Totalt bruksareal etter tiltaket er 218,4 m². Fasadeendringene omfatter fjerning av planlagte skråvinduer på sørfasaden og erstatning av en større skyvedør med en mindre dør på østfasaden. Bygget har saltak og stående trekledning, og tiltaket er tilpasset eksisterende bygningsmasse og terreng. Parkeringsplassene oppfyller kravene i gjeldende plan, og uteareal er tilstrekkelig for uteopphold og lek. Tiltaket er utført i henhold til godkjent dokumentasjon og har mottatt ferdigattest.

Produkter og materialer

Elektro Elektrisk anlegg

Elektrisk anlegg i påbygg og ombygget areal

Elektroinstallasjoner i påbygg

Tømrer Tømrerarbeid

Tømrerarbeid for påbygg, innbygging av balkong og ombygging av garasje til bod

Tømrerarbeid i påbygg og ombygging

VVS Varme og sanitær

Varmefordeling med ovn/kamin/peis, energiforsyning elektrisitet

VVS-installasjoner i påbygg og ombygget areal

Terrasse Innbygging av balkong

Antall: 1

Innbygging av eksisterende balkong på 11,5 m² BYA til utvidet kjøkken/stue

Terrasse/balkong innbygging

Vinduer Fasadevindu

Antall: 8

Eksisterende vinduer i trefasade, fjernet skråvinduer på sørfasade

Vinduer i fasade, inkludert fjerning av planlagte skråvinduer

Dører Ytterdør

Antall: 1

Ny mindre dør erstatter større skyvedør på østfasade

Ytterdør i påbygg/ombygging

Trapper Innvendig trapp

Antall: 1

Eksisterende innvendig trapp opprettholdes

Innvendig trapp i enebolig

Fasade Tre kledning

🧱 Stående trekledning

Fasadeendring med fjerning av skråvinduer på sørfasade, og ny mindre dør på østfasade

Materialer og utførelse til fasadeendring og påbygg i tre, tilpasset eksisterende fasade

Grunnarbeid Tomtearbeid og drenering

Drenering og grunnarbeid i forbindelse med påbygg og ombygging

Grunnarbeid for påbygg og ombygging

Tak Saltak

🧱 Taktekking ikke spesifisert, men saltak som eksisterende

Påbygg med saltak i samme stil som eksisterende bygg

Taktekking og konstruksjon for påbygg med saltak

Maling Utvendig og innvendig maling

Maling av fasade og innvendige flater i påbygg

Overflatebehandling av nye og ombygde flater

Mur Fundament og grunnmur

Fundament og grunnmur for påbygg i henhold til gjeldende byggeregler

Grunnarbeid og fundamentering for påbygg

Gulv Innvendige gulv

Gulv i påbygg og innbygging av balkong til kjøkken/stue

Gulv i påbygg og ombygget areal

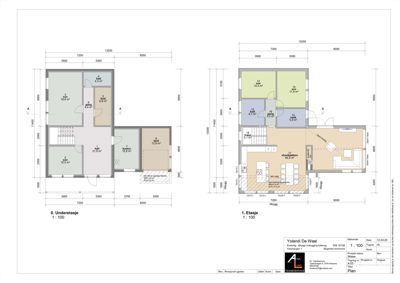
Plantegning

Enebolig 156.0 m²

Etasje 0 42.0 m²

Rom Areal Vinduer Dører
Gang 001 10.0 m² 0 4
Bad 002 6.0 m² 0 1
Vaskerom 003 6.0 m² 0 1
Sove 1 004 10.0 m² 1 1
Sove 2 005 10.0 m² 1 1
Teknisk 006 6.0 m² 0 1

Etasje 1 114.0 m²

Rom Areal Vinduer Dører
Stue 101 35.0 m² 2 2
Kjøkken 102 15.0 m² 1 1
Spisestue 103 10.0 m² 1 1
Gang 104 10.0 m² 0 3
Bad 105 6.0 m² 0 1
Toalett 106 3.0 m² 0 1
Sove 1 107 12.0 m² 1 1
Sove 2 108 12.0 m² 1 1
Sove 3 109 12.0 m² 1 1
Balcony 110 11.0 m² 0 1

Fasader

Enebolig

Vest
Materiale
Tre
Taktype
Saltak
Vinduer
4
Dører
0
Synlige etasjer
2
Sør
Materiale
Tre
Taktype
Saltak
Vinduer
4
Dører
0
Synlige etasjer
2
Nord
Materiale
Tre
Taktype
Saltak
Vinduer
4
Dører
0
Synlige etasjer
2
Øst
Materiale
Tre
Taktype
Saltak
Vinduer
2
Dører
1
Synlige etasjer
1

Hendelser

17.11.2025 GBNR 127/38 - Ferdigattest - Oppføring av påbygg og fasadeendring
03.11.2025 GBNR 127/38 - Søknad om ferdigattest
30.05.2025 GBNR 127/38 - Vedtak om løyve i eitt-trinn - Oppføring av påbygg og fasadeendring
02.05.2025 GBNR 127/38 - Tilbakemelding om manglar
02.05.2025 GBNR 127/38 - Supplering av søknad
14.04.2025 GBNR 127/38 - Søknad om løyve i eitt trinn