Rehabilitation Rammetillatelse Enebolig

Ombygging og fasadeendring av enebolig på Bakklandet 33

📍 Bakklandet 33 , 7130 BREKSTAD

Nøkkelinfo

Sakstype
Rehabilitering
Bygningstype
Enebolig
Bruksareal
120 m²
Boenheter
1
Kommune
Ørland
Fylke
Trøndelag - Trööndelage
Gnr / Bnr
167 / 50
Saksnummer
2026/988
Fase
Rammetillatelse

Om byggesaken

Eksisterende enebolig på 120,5 m² med saltak og trekledning gjennomgår ombygging og fasadeendring. Tiltaket inkluderer utskifting og økning av antall vinduer i 1. og 2. etasje, samt endringer i planløsning som blant annet flytting av vaskerom. Badet i 1. etasje på 2,5 m² opprettholdes med toalett og dusj. Fasadeendringen berører hovedsakelig den nord-sør orienterte delen av bygget, og fasadematerialet er tre. Bygget har en trapp, flere dører og vinduer fordelt på fasadene, og det er pipe tilknyttet. Tiltaket medfører ikke endringer i grunnarbeid eller økt bruk av eiendommen.

Produkter og materialer

Elektro Elektriske installasjoner

Oppgradering av elektriske anlegg i forbindelse med ombygging og fasadeendring

Elektriske installasjoner tilpasses nye vinduer og romløsninger

VVS Sanitærinstallasjoner

Oppdatering av sanitærinstallasjoner i bad og vaskerom i forbindelse med ombygging

Oppgradering av vann- og avløpsinstallasjoner i våtrom

Dører Ytterdører og balkongdører

🧱 Tre

Antall: 8

Dører fordelt på fasader, inkludert balkongdører på sør- og vestfasade

Bytte og tilpasning av ytterdører og balkongdører i forbindelse med fasadeendring

Fasade Trekledning

🧱 Tre

Fasadeendring med ny trekledning på deler av bygget, spesielt nord-sør fasade

Oppgradering og vedlikehold av trekledning i forbindelse med fasadeendring

Bad Våtrom

Antall: 1

Eksisterende bad på 2,5 m² med toalett og dusj opprettholdes, vaskerom flyttes internt

Oppgradering og flytting av våtrom, krever uavhengig kontroll

Gulv Innvendige gulv

Oppgradering av gulv i ombygde rom kan forventes, men ikke spesifisert

Gulvoppgradering i forbindelse med ombygging

Tak Saltak

🧱 Takstein eller tilsvarende

Eksisterende saltak opprettholdes, ingen endring i taktekking

Takets saltakform beholdes, ingen planlagt endring i takmateriale

Tømrer Innvendige og utvendige tømrerarbeider

🧱 Tre

Ombygging av planløsning, fasadeendring og utskifting av vinduer og dører

Tømrerarbeid for ombygging og fasadeendring

Grunnarbeid Ingen endring

Ingen grunnarbeider planlagt, tiltaket berører ikke grunnen

Ingen grunnarbeid nødvendig

Vinduer Fasadevindu

🧱 Tre med 3-lags energiglass

Antall: 24

Utskifting og økning av antall vinduer i 1. og 2. etasje, fasadeendring nord-sør side

Nye og større vinduer i fasaden for bedre lysinnslipp og estetikk

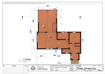
Plantegning

Enebolig 120.5 m²

Etasje 1 120.5 m²

Rom Areal Vinduer Dører
Gang 1 12.0 m² 0 2
Bad 1 2 2.5 m² 0 1
Kjøkken / Spisestue 3 37.1 m² 3 1
Stue 4 34.2 m² 3 1
Sov 5 6.9 m² 1 1
Vask / Tekn 6 10.4 m² 0 1

Fasader

Enebolig

Ukjent
Materiale
Tre
Taktype
Saltak
Vinduer
4
Dører
1
Synlige etasjer
1
Vest
Materiale
Tre
Taktype
Saltak
Vinduer
4
Dører
0
Balkonger
2
Synlige etasjer
2
Sør
Materiale
Tre
Taktype
Saltak
Vinduer
6
Dører
2
Balkonger
1
Synlige etasjer
2
Øst
Materiale
Tre
Taktype
Saltak
Vinduer
4
Dører
1
Synlige etasjer
2
Nord
Materiale
Tre
Taktype
Saltak
Vinduer
4
Dører
1
Synlige etasjer
2

Hendelser

18.04.2026 Tillatelse til tiltak - Gnr 167 bnr 50 - Bakklandet 33- Ombygging av bolig
16.04.2026 Re: Vedr. tiltak gbnr. 167/50
16.04.2026 Re: Vedr. tiltak gbnr. 167/50
13.04.2026 Vedr. tiltak gbnr. 167/50
11.04.2026 Vedr. søknad om fasadeendring
10.04.2026 Bakklandet 33 Supplering av søknad 167/50
07.04.2026 Bakklandet 33 Supplering av søknad 167/50
01.04.2026 Bekrefter mottak av søknad om ombygging og fasadeendring av enebolig - saken er fordelt til saksbehandler
01.04.2026 Foreløpig svar - Gnr 167 bnr 50 - Bakklandet 33- Ombygging av bolig
24.03.2026 Søknad om tillatelse i ett trinn - 167/50