Rehabilitation Igangsettingstillatelse Enebolig

Ombygging av enebolig med garasje på Bergertoppen 22, Slemmestad

📍 Bergertoppen 22 , 3470 SLEMMESTAD

Nøkkelinfo

Sakstype
Rehabilitering
Bygningstype
Enebolig
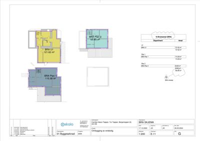
Bruksareal
315 m²
Boenheter
1
Kommune
Asker
Fylke
Akershus
Gnr / Bnr
241 / 39
Saksnummer
21/757
Fase
Igangsettingstillatelse

Om byggesaken

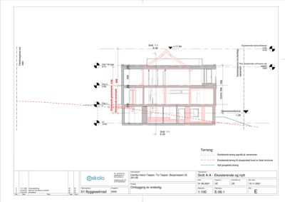
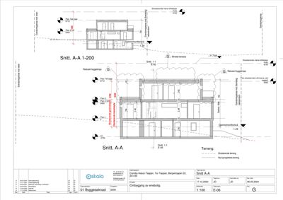
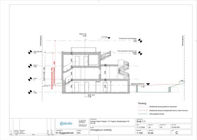
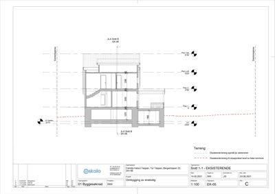
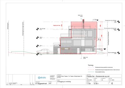
Ombygging av en eksisterende frittliggende enebolig på tre plan med totalt bruksareal på ca. 315 m². Boligen har flatt tak med gesimshøyde ca. 7 meter og omfattende rehabilitering inkludert riving og utskifting av grunnmur, bjelkelag og stenderverk på grunn av skader. Planløsningen endres med nye rom, inkludert garasje integrert i underetasjen, vinterhage og terrasser. Fasaden består av stående trepanel i lys grå farge med hvite eller sorte vinduer, og det benyttes glassrekkverk på terrasser. Det utføres terrengarbeider med støttemurer og beplantning for å tilpasse uteområdene. Det er etablert ny adkomst med flyttet innkjøring. Prosjektet inkluderer også tekniske installasjoner som VVS, elektro og ventilasjon, samt miljøsanering og miljøtiltak. Det foreligger godkjente rammetillatelser, igangsettingstillatelse og endringstillatelser, og prosjektet er under utførelse.

Produkter og materialer

Betong Grunnmur og ringmur

🧱 betong

riving og utskifting av grunnmur, forsterkning av ringmur utvendig på to sider

Betongarbeider for grunnmur og ringmur

VVS Ventilasjon

balansert ventilasjon i bolig

Ventilasjonsanlegg i bolig

Riving Riving av deler av bygget

riving av tilbygg, deler av grunnmur, bjelkelag og stenderverk

Riving i forbindelse med ombygging

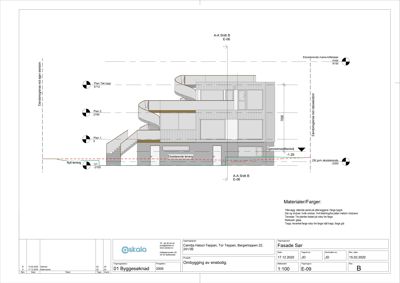
Fasade Stående trepanel

🧱 trepanel, beiset i lys grå og naturlig gråbrun farge

fasadekledning i stående trepanel, med hvite og sorte treplater mellom vinduer

Fasadebekledning for bolig

Tømrer Tømrerarbeid og montering av trekonstruksjoner

🧱 tre

tømrerarbeid for ombygging, montering av trekonstruksjoner

Tømrerarbeid i bolig og garasje

Garasjeport Enkel garasjeport

Antall: 1

garasjeport flyttet og endret til enkel port

Garasjeport til integrert garasje i underetasje

Mur Støttemurer

🧱 betong/mur

støttemurer opp til 1,5 meter høyde, lav støttemur 0,3-1 meter

Støttemurer i uteområder og gårdsplass

Bad Bad og våtrom

oppgradering og ombygging av bad og våtrom

Bad og våtromsarbeider

VVS Vann- og avløpsanlegg

tilknytning til privat vann og avløp, sanitærabonnement godkjent

VVS-installasjoner for vann og avløp

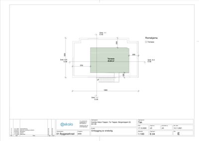
Terrasse Terrasse og vinterhage

🧱 treplanker, glassrekkverk

terrasse og vinterhage med glassrekkverk, beiset treplanker

Uteoppholdsarealer med terrasse og vinterhage

Trapper Innvendig trapp og utvendig trapp

🧱 tre og stål

Antall: 3

innvendige trapper i tre og stål, spiraltrapp fjernet og erstattet med tradisjonell trapp

Trapper i bolig, inkludert korridor og til takterrasse

Rekkverk Glassrekkverk

🧱 glass

glassrekkverk på terrasser og balkonger

Rekkverk for terrasser

Kjøkken Kjøkkeninnredning

kjøkkeninnredning i bolig

Kjøkkeninnredning og installasjoner

Gulv Innvendige gulv

gulvbelegg i bolig, inkludert bad og vaskerom

Innvendige gulvbelegg

Vinduer Fasadevindu

🧱 tre/aluminium

Antall: 14

hvite og sorte vinduer, store glassflater, tilpasset redusert byggekropp

Vinduer i fasader, inkludert nye vinduer tilpasset endret planløsning og fasade

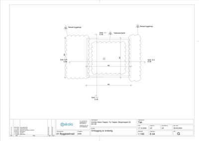
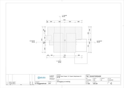
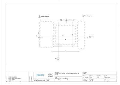
Tak Flatt tak og saltak

🧱 takshingel

flatt tak på hoveddel, saltak med takshingel på deler av bygget

Taktekking for bolig, inkludert takterrasse som er fjernet i endringssøknad

Elektro Elektriske installasjoner

elektriske installasjoner i bolig

Elektroinstallasjoner i bolig

Dører Ytterdører og garasjeport

🧱 tre/aluminium

Antall: 10

hvite og sorte ytterdører, garasjeport endret til enkel port

Ytterdører til bolig og garasjeport i fasade

Maling Utvendig og innvendig maling

maling av fasade og innvendige overflater

Maling og overflatebehandling

VVS Sanitærinstallasjoner

sanitærinstallasjoner i bolig

Sanitærinstallasjoner i bolig

Grunnarbeid Terrengarbeider og drenering

terrengendringer med skråninger, regnbed, permeable flater, overvannshåndtering

Grunnarbeider for uteområder, drenering og overvannshåndtering

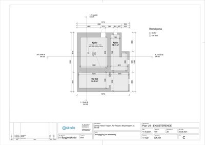
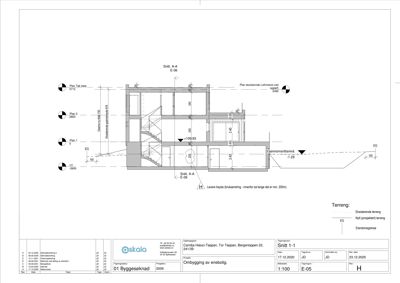
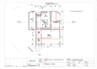
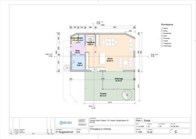
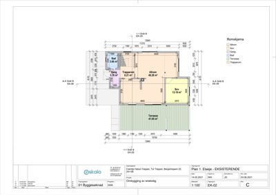
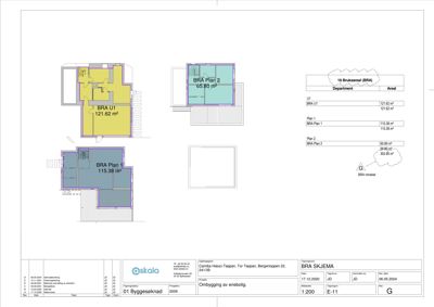
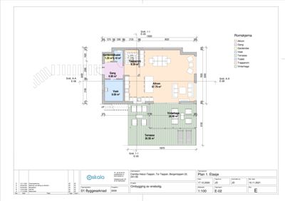
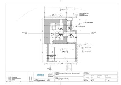
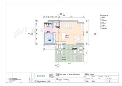
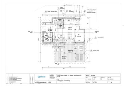
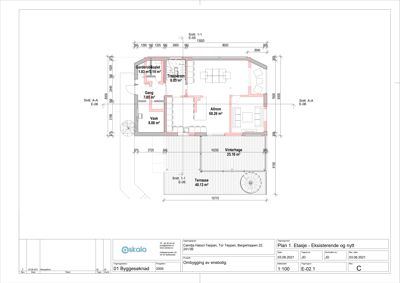
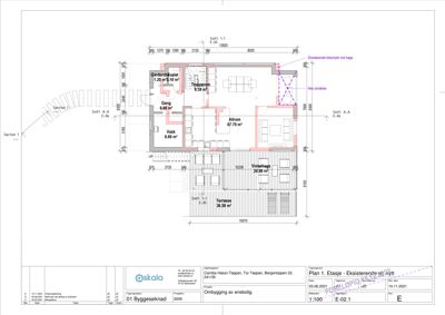
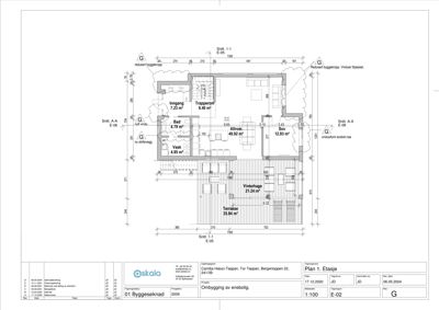
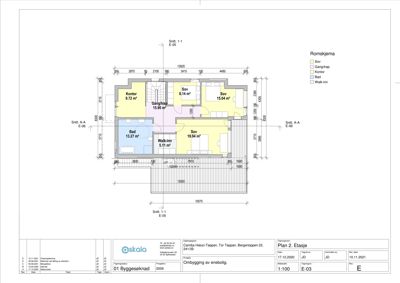
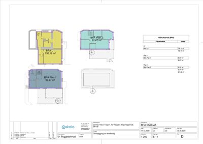
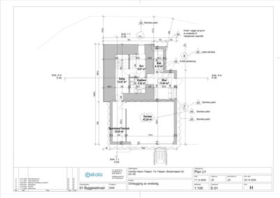
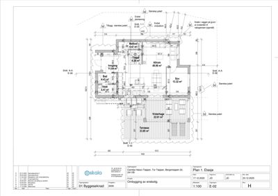
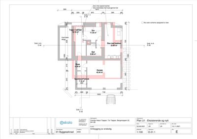
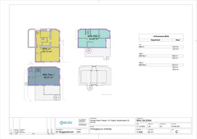
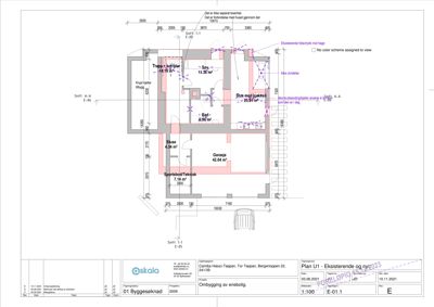
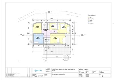
Plantegning

Enebolig 314.6 m²

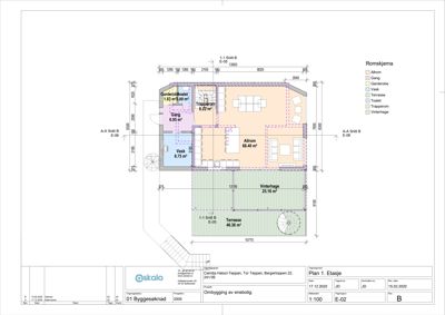
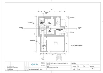
Etasje 0 125.7 m²

Rom Areal Vinduer Dører
Underetasje U1 125.7 m² 0 0
Trapperom U01 6.4 m² 0 1
Teknisk rom U02 8.1 m² 0 1
Sov U03 10.8 m² 1 1
Bad U04 6.2 m² 0 1
Stue med kjøken U05 22.5 m² 1 1
Sportsbod U06 11.7 m² 0 1
Garasje U07 42.0 m² 0 1
Krypt kjeller tilbygg 001 14.4 m² 0 1
Trapp + korridor 002 14.2 m² 0 2
Sov 003 11.4 m² 1 2
Bad 004 7.0 m² 0 2
Stue med kjøkken 005 28.2 m² 1 2
Sluse 006 4.3 m² 0 2
Garasje 007 43.2 m² 1 1
Sportsbod/Teknisk 008 7.1 m² 0 1

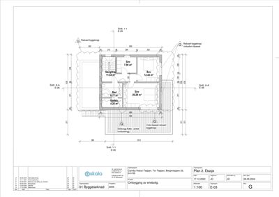
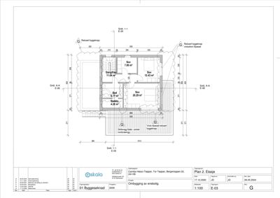
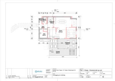
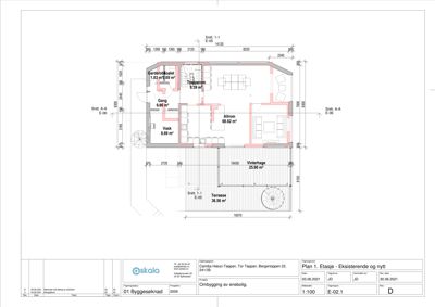
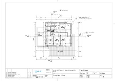
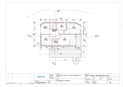
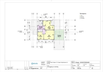
Etasje 1 97.8 m²

Rom Areal Vinduer Dører
Stue 101 45.0 m² 2 1
Soverom 102 25.0 m² 1 1
Gang 103 15.0 m² 0 2
Vaskerom 104 12.8 m² 0 1
Trapp + korridor 105 13.8 m² 0 2
Sluse 106 4.8 m² 0 2
Bod 107 7.8 m² 0 1
Garasje 108 45.0 m² 1 1
Terrasse 109 33.9 m² 0 0
Hus HUS 112.1 m² 0 0
Terrasse TERRASSE 36.8 m² 0 0
Trapp Trapp 3.3 m² 0 0
Soverom 3 110 12.0 m² 1 1

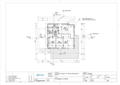
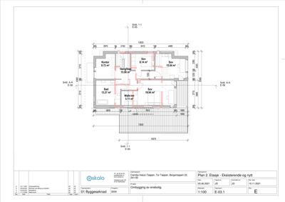
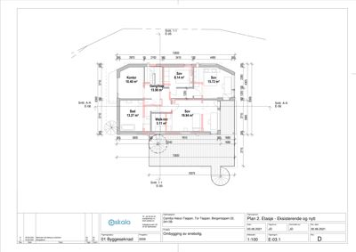
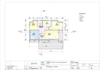
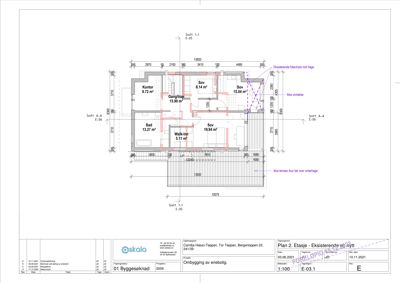
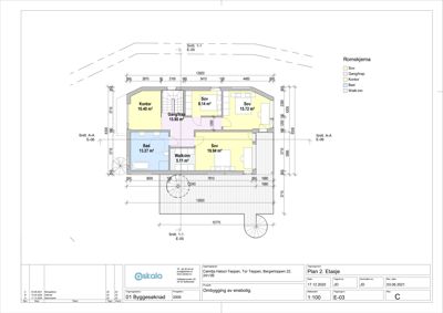
Etasje 2 91.0 m²

Rom Areal Vinduer Dører
Soverom 201 30.0 m² 1 1
Soverom 202 30.0 m² 1 1
Gang 203 31.0 m² 0 2
Sov 204 15.7 m² 1 1
Sov 205 19.9 m² 1 1
Bad 206 13.3 m² 0 1
Walk-in 207 5.1 m² 0 1
Bod 208 3.9 m² 1 1

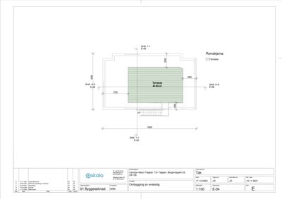
Tak 57.4 m²

Etasje 0 57.4 m²

Rom Areal Vinduer Dører
Terrasse 0 57.4 m² 0 0

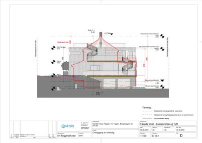
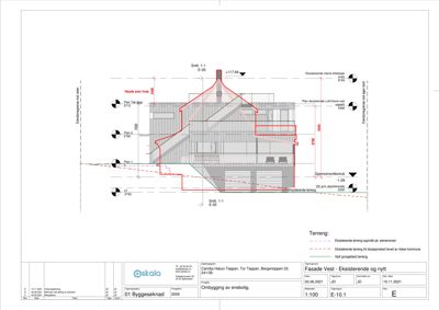
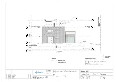
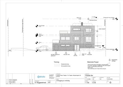
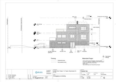
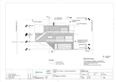
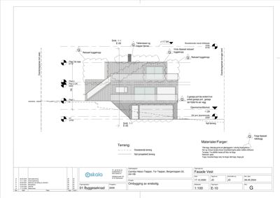
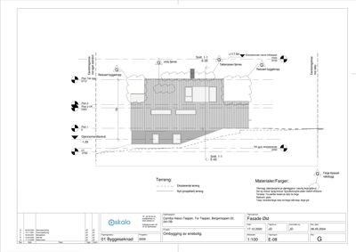
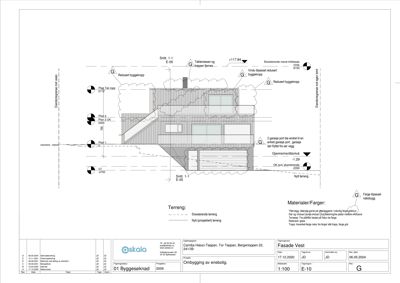
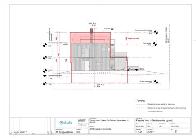
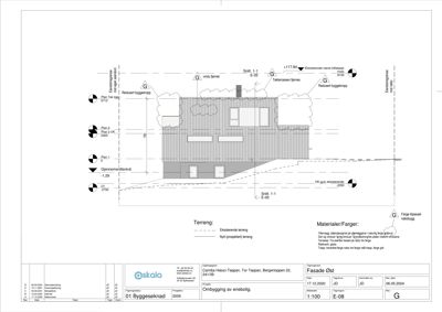
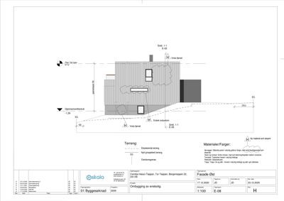
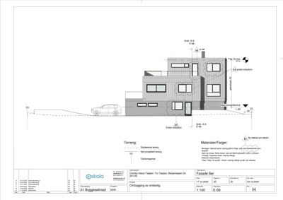
Fasader

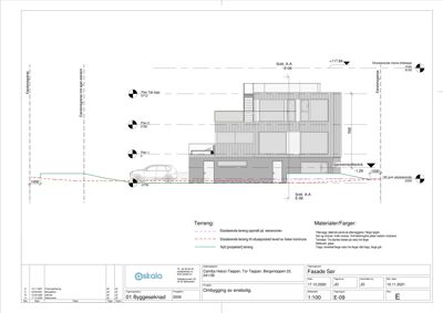
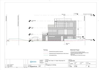
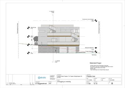
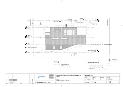
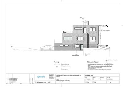
Enebolig

Sør
Materiale
Tre
Taktype
Saltak
Takmat.
Takshingel
Høyde
2.8 m
Mønehøyde
8.2 m
Vinduer
4
Dører
1
Balkonger
1
Synlige etasjer
3
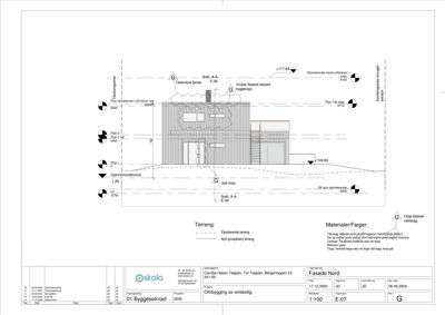
Nord
Materiale
Tre
Taktype
Flatt tak
Høyde
2.4 m
Mønehøyde
5.8 m
Vinduer
4
Dører
2
Synlige etasjer
2
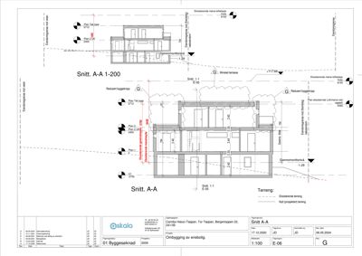
Vest
Materiale
Tre
Taktype
Saltak
Takmat.
Takshingel
Høyde
6.5 m
Mønehøyde
8.2 m
Vinduer
3
Dører
1
Synlige etasjer
2
Øst
Materiale
Tre
Taktype
Saltak
Takmat.
Takshingel
Høyde
7.0 m
Mønehøyde
8.7 m
Vinduer
4
Dører
2
Synlige etasjer
2

Hendelser

09.04.2026 241/39 Bergertoppen 22 - Endringstillatelse nr. 2 - Ombygging av enebolig
25.02.2026 241/39 Bergertoppen 22 - Søknad om endring av gitt tillatelse
17.07.2025 241/39 Bergertoppen 22 - Endringstillatelse - ombygging enebolig
18.06.2025 241/39 Bergertoppen 22 - Søknaden er mottatt
13.06.2025 241/39 Bergertoppen 22 - Nabomerknader
29.05.2025 241/39 Bergertoppen 22 - Søknad om endring av gitt tillatelse
05.05.2025 241/39 Bergertoppen 22 - Svar på spørsmål til faktura for igangsettingstillatelse
20.03.2025 241/39 Bergertoppen 22 - Spørsmål til faktura for igangsettingstillatelse
17.03.2025 241/39 Bergertoppen 22 - Igangsettingstillatelse for ombygging av enebolig
10.03.2025 241/39 Bergertoppen 22 - Purring på svar
17.02.2025 241/39 Bergertoppen 22 - Søknad om igangsettingstillatelse - Purring på svar
14.01.2025 241/39 Bergertoppen 22 - Søknad om igangsettingstillatelse
04.09.2024 241/39 Bergertoppen 22 - Spørsmål om nye tiltak kan utføres innenfor godkjente tegninger
04.09.2024 241/39 Bergertoppen 22 - Tilbakemelding på svar
04.09.2024 241/39 Bergertoppen 22 - Svar på spørsmål - Ombygging av enebolig
21.12.2023 241/39 Bergertoppen 22 - Ønsker vurdering av mulig endring i prosjektet
03.04.2022 241/39 - Rammetillatelse til tiltak - Ombygging av enebolig
21.02.2022 241/39 Svar på mangelbrev datert 050122 - Ombygging av enebolig
07.02.2022 241/39 Supplerende dokumentasjon - Ombygging av enebolig
05.01.2022 241/39 Ufullstendig søknad - Ombygging av enebolig
18.12.2021 241/39 Spørsmål om byggesøknad kan innsendes med midlertidig kart - Ombygging av enebolig
24.11.2021 241/39 Dokumentasjon omprosjektert bolig - Ombygging av enebolig
03.10.2021 241/39 Ber om fristutsettelse - Ombygging av enebolig
29.09.2021 241/39 Oppsummering etter telefonsamtale - Ombygging av enebolig
24.09.2021 241/39 Varsel om avslag - Ombygging av enebolig
12.07.2021 241/39 Reviderte tegninger - Ombygging av enebolig
23.06.2021 241/39 Supplerende dokumentasjon - Ombygging av enebolig
06.05.2021 241/39 Svar på mangelbrev - Ombygging av enebolig
22.04.2021 241/39 Svar på mangelfull tilbakemelding til naboer etter søknad om rammetillatelse - Ombygging av enebolig
22.04.2021 241/39 Mangler i søknad om ombygging av enebolig - Ombygging av enebolig
22.03.2021 241/39 Svar på nabomerknader - Ombygging av enebolig
09.03.2021 241/39 E-postkorrespondanse om mangelfull tilbakemelding til naboer - Ombygging av enebolig
08.03.2021 241/39 Mangelfull tilbakemelding til naboer etter søknad om rammetillatelse - Ombygging av enebolig
01.03.2021 241/39 Rettelse og kommentarer til søknaden - Ombygging av enebolig
18.02.2021 241/39 Kvitteringsbrev - Ombygging av enebolig
17.02.2021 241/39 Søknad om ombygging av enebolig