Rehabilitation Rammetillatelse Enebolig

Åpning i bærevegg i enebolig, Kullhusbakken 36

📍 Kullhusbakken 36 , 3830 ULEFOSS

Nøkkelinfo

Sakstype
Rehabilitering
Bygningstype
Enebolig
Bruksareal
0 m²
Boenheter
1
Kommune
Nome
Fylke
Telemark
Gnr / Bnr
12 / 107
Saksnummer
26/2588
Fase
Rammetillatelse

Om byggesaken

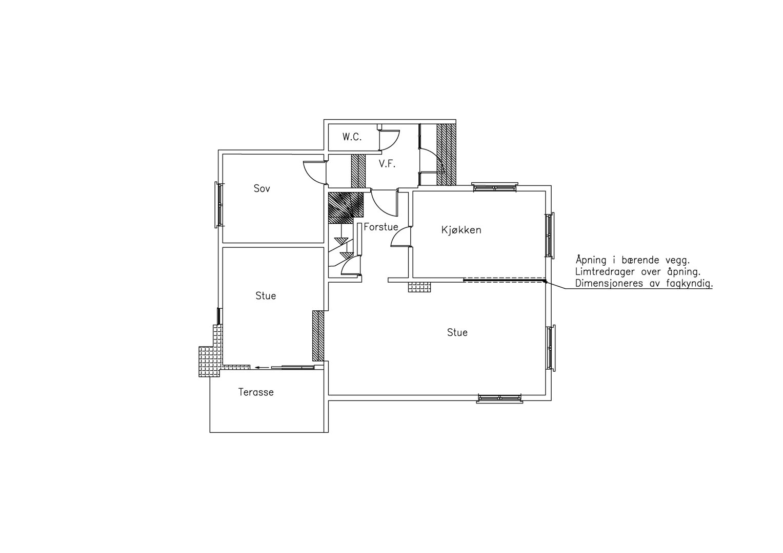
Åpning i eksisterende bærevegg mellom kjøkken og stue i eneboligens 1. etasje. En ca. 3 meter bred del av veggen fjernes for å etablere en åpen løsning mellom rommene. Last fra overliggende konstruksjon overføres via limtredrager plassert over åpningen, dimensjonert av fagkyndig. Tiltaket medfører ingen endring i byggets bruksareal eller antall romenheter. Arbeidet utføres av tiltakshaver som selvbygger med bistand fra medhjelpere.

Produkter og materialer

Elektro Ingen spesifisert

Mulig behov for flytting av elektriske installasjoner i vegg som åpnes

Elektriske arbeider kan være nødvendig ved åpning i bærevegg

Stål Limtredrager

🧱 limtre

Antall: 1

Dimensjonert av fagkyndig for å overføre last over åpning i bærevegg ca. 3 meter bred

Limtredrager som skal erstatte bæreveggen over åpningen mellom kjøkken og stue

Tømrer Veggarbeid

🧱 treverk

Fjerning av eksisterende bærevegg og tilpasning rundt åpning

Arbeid med å fjerne del av bærevegg og tilrettelegge for ny bærekonstruksjon

Maling Innvendig vegg

Overflatebehandling etter veggarbeid

Maling og overflatebehandling av veggflater etter åpning i bærevegg

Grunnarbeid Ingen endring

Ingen endring i grunn eller fundamenter

Ingen grunnarbeider nødvendig da tiltaket kun gjelder vegg i 1. etasje

Plantegning

Enebolig 0.0 m²

Etasje 1 0.0 m²

Rom Areal Vinduer Dører
Sov 101 0.0 m² 1 1
Stue 102 0.0 m² 1 1
Terasse 103 0.0 m² 0 0
Stue 104 0.0 m² 2 0
Kjøkken 105 0.0 m² 1 1
Forstue 106 0.0 m² 0 2
W.C. 107 0.0 m² 0 1
V.F. 108 0.0 m² 0 1

Hendelser

20.04.2026 Søknad om tiltak – Åpning i bærevegg, Kullhusbakken 36 - Gbnr 12/107
20.04.2026 Tillatelse til tiltak - endring av bærekonstruksjon - Kullhusbakken 36 - Gbnr 12/107