Rehabilitation Soeknad Enebolig

Utbedring og påbygg av tak på enebolig, Stubsjøen Vestre 28

📍 Stubsjøveien 126 , 2500 TYNSET

Nøkkelinfo

Sakstype
Rehabilitering
Bygningstype
Enebolig
Bruksareal
183 m²
Boenheter
1
Kommune
Tynset
Fylke
Innlandet
Gnr / Bnr
106 / 6
Saksnummer
2026/1051
Fase
Søknad

Om byggesaken

Utbedring av tak på en eksisterende enebolig med totalt 183 m² fordelt på to etasjer. Tiltaket inkluderer etterisolering og legging av nytt tak på den gamle delen som i dag har torv under plater, samt heving av taket på en del av bygget for å oppnå to fulle etasjer i hele bygningsvolumet. Påbygget skal gi bedre isolasjon, redusert energitap og et mer helhetlig arkitektonisk uttrykk med ny utvendig kledning i tre. Planen innebærer også romomdisponering med flytting av TV-stue til 2. etasje og tilrettelegging for fremtidig boligbruk med soverom i tilbygget. Taket på hoveddelen har saltak, og fasadene er i tre med flere vinduer og dører. Det er en trapp i bygget og pipe tilknyttet taket.

Produkter og materialer

Isolasjon Takisolasjon

🧱 Moderne isolasjonsmateriale

Etterisolering av tak for bedre energiytelse

Isolasjon for å redusere varmetap gjennom tak

Maling Utvendig maling

Maling av ny kledning for værbeskyttelse og estetikk

Maling av trepanel på fasade

Trapper Innvendig trapp

Antall: 1

Eksisterende trapp i bolig, mulig tilpasning ved påbygg

Innvendig trapp mellom etasjer

Fasade Utvendig kledning i trepanel

🧱 Trepanel

Ny utvendig kledning på påbygget for helhetlig uttrykk

Utvendig trepanel for fasadeoppgradering og estetisk helhet

Grunnarbeid Fundamentering og drenering

Eventuelle tilpasninger i grunn for påbygg og takheving

Grunnarbeid for stabilitet og drenering

Elektro Elektrisk anlegg

Oppgradering av elektrisk anlegg i påbygget og takområdet

Elektrisk installasjon for belysning og strøm

Vinduer Fasadevindu i tre

🧱 Tre med glass

Antall: 15

Vinduer i fasader sør, nord og vest, totalt 15 stk

Vinduer for naturlig lys og ventilasjon i bolig

Dører Ytterdører i tre

🧱 Tre

Antall: 5

Dører i fasader sør, nord og gang, totalt 5 stk

Ytterdører for adkomst og utgang

Tak Nytt saltak og taktekking

🧱 Torv under plater erstattes med moderne isolasjon og taktekking

Etterisolering og nytt tak på gammel del, heving av tak til to etasjer

Nytt tak med bedre isolasjon og taktekking for å redusere energitap

Tømrer Bygging av påbygg og takstoler

🧱 Tre

Påbygg av tak og konstruksjoner i tre for ny etasje

Tømrerarbeid for påbygg og takheving

VVS Sanitærinstallasjoner

Oppgradering av bad og vaskerom i forbindelse med påbygg

Sanitærinstallasjoner for bad og vaskerom

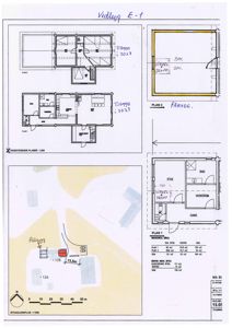
Plantegning

Enebolig 183.0 m²

Etasje 1 130.0 m²

Rom Areal Vinduer Dører
Stue 101 0.0 m² 0 1
Gang 102 0.0 m² 0 2
Vaskerom 103 0.0 m² 0 1
Bad 104 0.0 m² 0 1
WC 105 0.0 m² 0 1
Kjøkken 106 0.0 m² 0 1
Sov 107 0.0 m² 0 1
Sov 108 0.0 m² 0 1

Etasje 2 53.0 m²

Rom Areal Vinduer Dører
Sov 201 0.0 m² 0 1
Sov 202 0.0 m² 0 1

Fasader

Stubsjøen vestre

Sør
Materiale
Tre
Taktype
Saltak
Vinduer
6
Dører
2
Synlige etasjer
2
Nord
Materiale
Tre
Taktype
Flatt tak
Vinduer
2
Dører
1
Synlige etasjer
2

Enebolig

Vest
Materiale
Tre
Taktype
Saltak
Vinduer
3
Dører
0
Synlige etasjer
2
Sør
Taktype
Saltak
Vinduer
4
Dører
1
Synlige etasjer
2

Hendelser

22.04.2026 Søknad om tillatelse til tiltak utbedring av tak gbnr 106/6