Rehabilitation Soeknad Enebolig

Rehabilitering av enebolig i Tingstveitveien 206, Arendal

📍 Tingstveitveien 206 , 4823 NEDENES

Nøkkelinfo

Sakstype
Rehabilitering
Bygningstype
Enebolig
Bruksareal
95 m²
Boenheter
1
Kommune
Arendal
Fylke
Agder
Gnr / Bnr
426 / 7
Saksnummer
2026/9874
Fase
Søknad

Om byggesaken

Rehabilitering av enebolig på 95,3 m² fordelt på to etasjer med tre soverom i 2. etasje og stue, kjøkken, bad, gang og WC i 1. etasje. Tiltaket inkluderer isolering av yttervegger med utvidelse av veggtykkelsen, utskifting av gamle vinduer til klassiske sørlandsvinduer med sprosser, heving av taket med 20 cm for bedre takhøyde i 2. etasje, og bytte av taktekking fra betongstein til brente teglstein. Det bygges også en terrasse på ca. 24 m² i hagen på nivå med 1. etasje, samt oppføring av to støy- og trafikkgjerder på ca. 180 cm høyde langs veien. Innkjørselen flyttes for å tilpasse ny adkomstvei rundt låven. Innvendig opprettholdes romfunksjonene med noe endringer i bad, kjøkken og vaskerom. Prosjektet omfatter også nye plantegninger og fasadeendringer for å tilpasse huset til kulturlandskapet.

Produkter og materialer

Tømrer Innvendig oppgradering

Innvendig bytte og oppgradering av bad, kjøkken og vaskerom, samt opprettholdelse av romfunksjoner

Innvendige tømrerarbeider i forbindelse med rehabilitering

Fasade Støy/ trafikkgjerde

🧱 Gjerde ca. 180 cm høyt

Antall: 2

To støy/ trafikkgjerder på hver side av boligen, ca. 180 cm høyde

Gjerder for å skjerme mot trafikkstøy og øke sikkerhet

Grunnarbeid Adkomstvei

Antall: 1

Flytting av innkjørsel og ny adkomstvei rundt låven

Ny adkomstvei til bolig som følge av flytting av innkjørsel

Dører Terrassedør

🧱 Trelags glassdør

Antall: 1

Ny terrassedør mot hage i tilknytning til terrasse

Terrassedør for utgang til ny terrasse

Fasade Yttervegger med isolering

🧱 Isolasjon og utvendig kledning

Isolering av yttervegger med utvidelse av veggtykkelse ca. 10-15 cm

Isolasjon og ny kledning på yttervegger for bedre varmeisolasjon

Terrasse Hage-terrasse

🧱 Treverk

Antall: 1

Terrasse ca. 6 m bred og 4 m dyp, på nivå med 1. etasje

Ny terrasse foran boligen i hagen

Vinduer Sørlandsvinduer med sprosser

🧱 Trelags glass, klassisk stil

Antall: 5

Bytte ut gamle 60-talls vinduer med nye klassiske sørlandsvinduer med sprosser

Nye vinduer for fasadeendring og bedre isolasjon

Tak Takheving og ny taktekking

🧱 Brente teglstein

Heving av tak med 20 cm, utskifting av tak med brente teglstein i klassisk sørlandsstil

Takheving for bedre takhøyde og ny taktekking

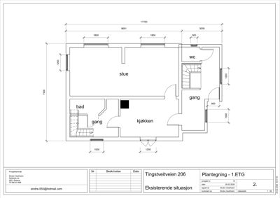
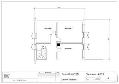
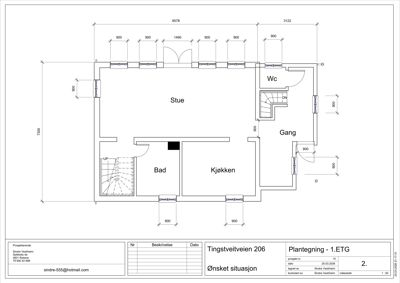
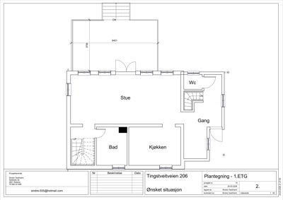
Plantegning

Enebolig 95.3 m²

Etasje 2 42.5 m²

Rom Areal Vinduer Dører
soverom 201 12.5 m² 1 1
soverom 202 15.0 m² 1 1
soverom 203 10.0 m² 1 1
gang 204 5.0 m² 0 0

Etasje 1 52.8 m²

Rom Areal Vinduer Dører
Stue 101 30.6 m² 2 1
Kjøkken 102 16.2 m² 1 2
Bad 103 4.5 m² 0 1
Gang 104 1.5 m² 0 1
WC 105 0.5 m² 0 1

Hendelser

20.04.2026 426/7/0/0 - Tingstveitveien 206 - rehabilitering av bolighus - Referat forhåndskonferanse
26.03.2026 426/7 - Byggesak - bestilling av forhåndskonferanse