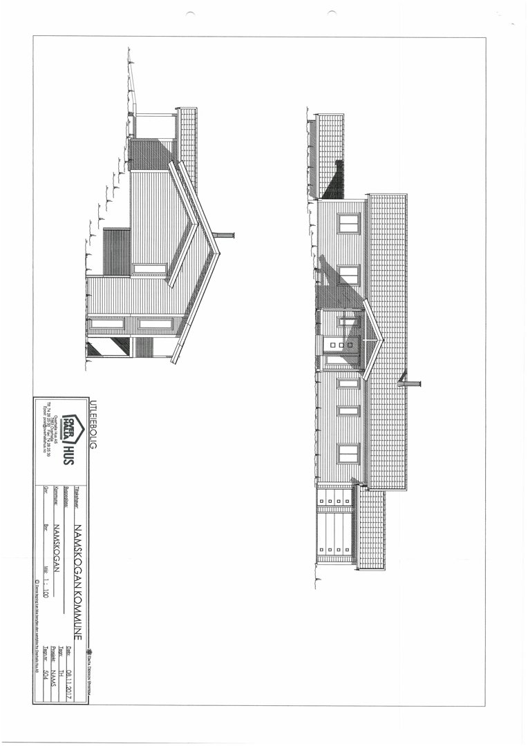
Facade
Fasadetegning som viser bygningens utseende fra to ulike vinkler.
1 / 11
Demolition
Unknown
Enebolig
Riving og gjenoppbygging av brannskadet bolig
📍 Skolhaugveien 5A , 7890 NAMSSKOGAN
Nøkkelinfo
- Sakstype
- Riving
- Bygningstype
- Enebolig
- Kommune
- Namsskogan
- Fylke
- Trøndelag - Trööndelage
- Gnr / Bnr
- 60 / 170
- Saksnummer
- 2025/988
- Fase
- Unknown
Om byggesaken
En bolig på Skolhaugveien 5A ble rive etter brannskade, deretter gjenoppbygget med branncelleinndeling og midlertidig brukstillatelse før ferdigattest ble utstedt.
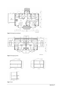
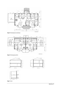
Plantegning
Enebolig 434.8 m²
Etasje 1 141.0 m²
| Rom | Areal | Vinduer | Dører |
|---|---|---|---|
| Entré 101 | 3.7 m² | 0 | 2 |
| Vaskerom 102 | 5.3 m² | 0 | 1 |
| Bod 103 | 4.9 m² | 0 | 1 |
| Kjøkken 104 | 9.4 m² | 1 | 1 |
| Stue 105 | 41.3 m² | 2 | 1 |
| Gang 106 | 8.7 m² | 0 | 2 |
| Soverom 107 | 8.8 m² | 1 | 1 |
| Soverom 108 | 14.9 m² | 1 | 1 |
| Soverom 109 | 8.7 m² | 1 | 1 |
| Soverom 110 | 8.7 m² | 1 | 1 |
| Soverom 111 | 8.1 m² | 1 | 1 |
| Bad 112 | 7.3 m² | 0 | 1 |
| Entré 113 | 5.9 m² | 0 | 1 |
| WC 114 | 1.9 m² | 0 | 1 |
| Garasje 115 | 28.1 m² | 1 | 1 |
| V.F. 001 | 3.8 m² | 1 | 1 |
| Soverom 002 | 6.9 m² | 1 | 1 |
| Stue 003 | 19.8 m² | 2 | 1 |
| Kjøkken 004 | 11.9 m² | 1 | 1 |
| Bod 005 | 3.2 m² | 0 | 1 |
| Bad/vask 006 | 5.5 m² | 0 | 1 |
| Soverom 007 | 8.9 m² | 1 | 1 |
| Entré 008 | 3.6 m² | 0 | 1 |
Etasje 2 185.8 m²
| Rom | Areal | Vinduer | Dører |
|---|---|---|---|
| V.F. 101 | 3.1 m² | 1 | 1 |
| Vask 102 | 5.3 m² | 0 | 1 |
| Bod 103 | 4.8 m² | 0 | 1 |
| Kjøkken 104 | 9.4 m² | 1 | 1 |
| Stue 105 | 41.3 m² | 2 | 1 |
| Gang 106 | 8.7 m² | 0 | 1 |
| Soverom 107 | 8.8 m² | 1 | 1 |
| Soverom 108 | 14.9 m² | 1 | 1 |
| Soverom 110 | 8.7 m² | 1 | 1 |
| Soverom 111 | 8.1 m² | 1 | 1 |
| Bad 112 | 7.3 m² | 0 | 1 |
| Entré 113 | 5.9 m² | 0 | 1 |
| WC 114 | 1.9 m² | 0 | 1 |
| Garasje 115 | 26.1 m² | 0 | 1 |
Etasje 0 108.0 m²
| Rom | Areal | Vinduer | Dører |
|---|---|---|---|
| V.F. 001 | 3.6 m² | 1 | 1 |
| Soverom 002 | 6.9 m² | 1 | 1 |
| Stue 003 | 19.8 m² | 2 | 1 |
| Kjøkken 004 | 11.9 m² | 1 | 1 |
| Bod 005 | 3.2 m² | 0 | 1 |
| Badvask 006 | 5.5 m² | 0 | 1 |
| Soverom 007 | 8.9 m² | 1 | 1 |
| Entré 008 | 3.6 m² | 0 | 2 |
| Carport 008 | 26.7 m² | 0 | 1 |
| Carport 008 | 26.7 m² | 0 | 1 |
| Bod 009 | 3.2 m² | 0 | 1 |
| Vaskerom 010 | 3.6 m² | 0 | 1 |
| Soverom 011 | 9.9 m² | 1 | 1 |
| Stue 012 | 19.8 m² | 2 | 1 |
| Kjøkken 013 | 11.9 m² | 1 | 1 |
| Kjeller 014 | 11.9 m² | 0 | 1 |
| Badvask 015 | 5.5 m² | 0 | 1 |
| Soverom 016 | 10.7 m² | 1 | 1 |
| Bod 017 | 3.2 m² | 0 | 1 |
| Vaskerom 018 | 3.6 m² | 0 | 1 |
| Soverom 019 | 9.9 m² | 1 | 1 |
| Carport 020 | 28.7 m² | 0 | 0 |
Fasader
Utleiebolig
Vest
- Materiale
- Tre
- Taktype
- Saltak
- Takmat.
- Tegl
- Vinduer
- 3
- Dører
- 1
- Synlige etasjer
- 2
Nord
- Materiale
- Tre
- Taktype
- Saltak
- Takmat.
- Tegl
- Vinduer
- 5
- Dører
- 1
- Synlige etasjer
- 2
Sør
- Materiale
- Tre
- Taktype
- Saltak
- Takmat.
- Tegl
- Vinduer
- 6
- Dører
- 1
- Balkonger
- 1
- Synlige etasjer
- 2
Hendelser
09.04.2026
Behandling av søknad om ferdigattest - gjenoppbygging etter brann - gnr/bnr 60/170 - Skolhaugveien 5A, 5B og 5C
30.03.2026
Søknad om ferdigattest - gnr/bnr 60/170 - Skolhaugveien 5A
18.03.2026
Behandling av søknad om midlertidig brukstillatelse - gnr/bnr 60/170 - Skolhaugveien 5B
18.03.2026
Behandling av søknad om midlertidig brukstillatelse - gnr/bnr 60/170 - Skolhaugveien 5B
11.03.2026
Søknad om midlertidig brukstillatelse - - gnr/bnr 60/170 - Skolhaugveien 5A
10.02.2026
Behandling av søknad om midlertidig brukstillatelse - - gnr/bnr 60/170 - Skolhaugveien 5C
04.02.2026
Søknad om midlertidig brukstillatelse - - gnr/bnr 60/170 - Skolhaugveien 5A
11.11.2025
Behandling av søknad om riving og gjenoppbygging av brannskadet bolig - gnr/bnr 60/170 - Skolhaugveien 5A
11.11.2025
Beregning av gebyr - riving og gjenoppbygging av bolig - gnr/bnr 60/170 - Skolhaugveien 5A
11.11.2025
Beregning av gebyr - riving og gjenoppbygging av bolig - gnr/bnr 60/170 - Skolhaugveien 5A
11.11.2025
Behandling av søknad om riving og gjenoppbygging av brannskadet bolig - gnr/bnr 60/170 - Skolhaugveien 5A
10.11.2025
Branncelleinndeling - gnr/bnr 60/170 - Skolhaugveien 5A
27.10.2025
Ett-trinns søknad - Endring av bygg - annet,Riving av deler av bygget - gnr/bnr 60/170 - Skolhaugveien 5A