Demolition UnderBehandling Enebolig

Riving av brannskille i enebolig, Waglesgårdveien 30, Arendal

📍 Waglesgårdveien 30 , 4844 ARENDAL

Nøkkelinfo

Sakstype
Riving
Bygningstype
Enebolig
Boenheter
3
Kommune
Arendal
Fylke
Agder
Gnr / Bnr
507 / 100
Saksnummer
2026/8803
Fase
Under behandling

Om byggesaken

Riving av et innvendig brannskille i en enebolig med tre boenheter i Waglesgårdveien 30, Arendal. Arbeidet utføres som del av reparasjon etter vannskade forårsaket av lekkasje i varmtvannsrør i betongsåle. Tiltaket omfatter midlertidig fjerning av brannskillet mellom leilighetene for å gjennomføre nødvendige utbedringer. Arbeidet utføres i henhold til gjeldende regelverk med særlig vekt på brannsikkerhet. Bygget har en etasje med stue, kjøkken, vask/WC/dusj, soverom, gang og bod, samt en trapp. Tillatelsen gjelder for den perioden reparasjons- og utbedringsarbeidene pågår.

Produkter og materialer

VVS Rørarbeid

Reparasjon av varmtvannsrør som forårsaket vannskade

Utbedring av skadet varmtvannsrør i betongsåle

Tømrer Reparasjon og gjenoppbygging av brannskille

Utførelse av tømrerarbeider i tiltaksklasse 1, inkludert brannsikkerhetsarbeid

Gjenoppbygging av brannskille etter riving og reparasjon av vannskade

Grunnarbeid Reparasjon av betongsåle

🧱 Betong

Utbedring av vannskade i betongsåle forårsaket av lekkasje i varmtvannsrør

Reparasjon av betongsåle i forbindelse med vannskade

Riving Innvendig brannskille

Antall: 1

Riving av brannskille mellom leiligheter i enebolig, midlertidig tiltak i forbindelse med vannskadereparasjon

Fjerning av eksisterende brannskille i bygg for å gjennomføre reparasjonsarbeider etter vannskade

Brannvern Brannskille

Tiltak med særlig vekt på brannsikkerhet i henhold til gjeldende regelverk

Sikring av brannskille i bolig etter reparasjon

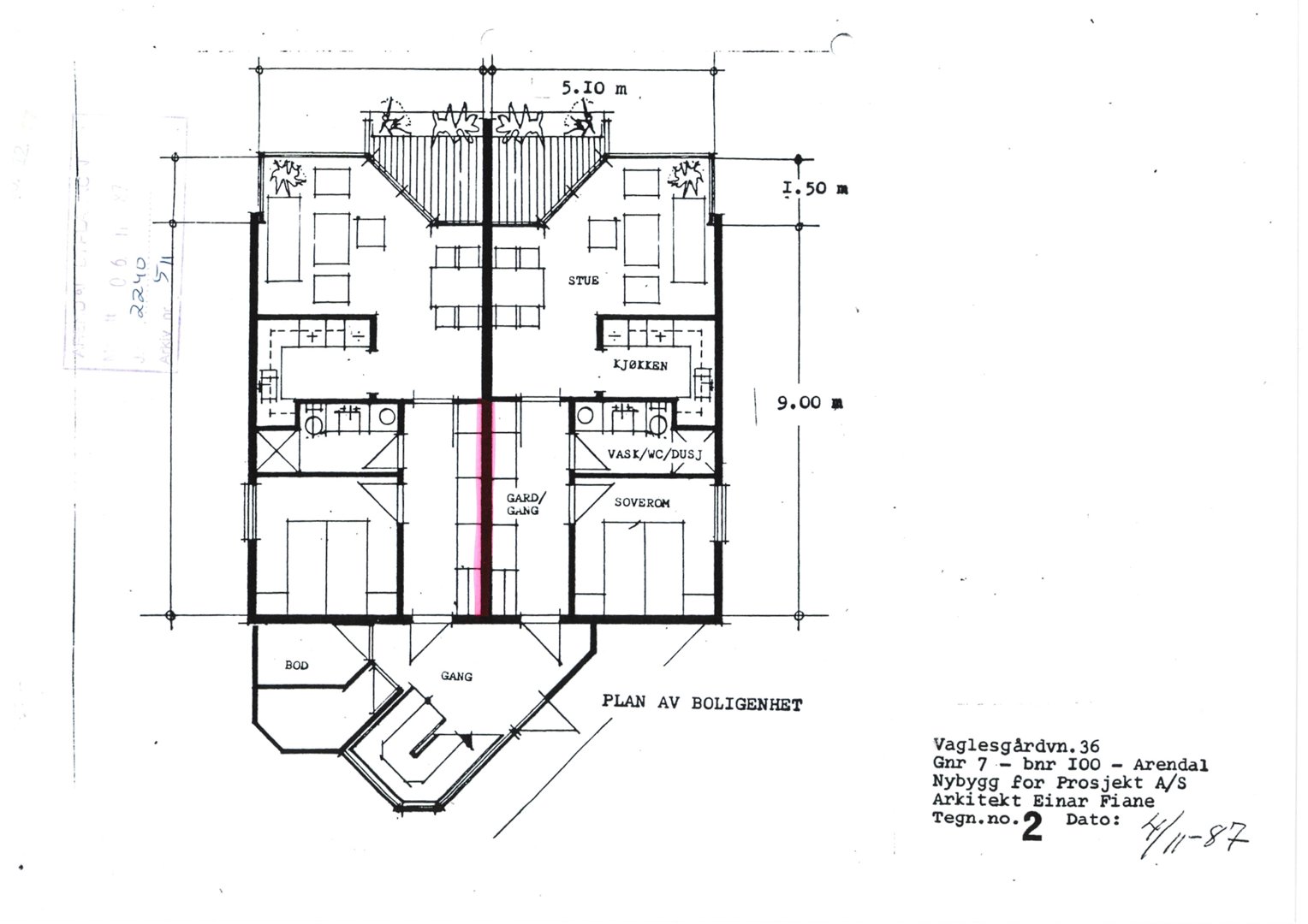
Plantegning

Enebolig 0.0 m²

Etasje 1 0.0 m²

Rom Areal Vinduer Dører
Stue 101 0.0 m² 1 1
Kjøkken 102 0.0 m² 0 1
Vask/WC/Dusj 103 0.0 m² 0 1
Soverom 104 0.0 m² 1 1
Gang 105 0.0 m² 0 0
Bod 106 0.0 m² 0 1

Hendelser

16.04.2026 Waglesgårdveien 30 Søknad om ferdigattest 507/100
19.03.2026 Gebyr - BYGG-26_00436 - BYGGPARTNERE AS v Håvard Skaaland
19.03.2026 Vedtak - 507/100 - Waglesgårdveien 30 - Riving av brannskille i bygg
19.03.2026 Sentral godkjenning
18.03.2026 Waglesgårdveien 30, melding om mottatt søknad
17.03.2026 Waglesgårdveien 30 Søknad om tillatelse i ett trinn 507/100