Extension UnderBehandling Enebolig

Ny enebolig med riving av uthus og garasje i Abelhaugveien 7

📍 Abelhaugveien 7 , 3030 DRAMMEN

Nøkkelinfo

Sakstype
Tilbygg
Bygningstype
Enebolig
Bruksareal
146 m²
Boenheter
1
Kommune
Drammen
Fylke
Buskerud
Gnr / Bnr
16 / 189
Saksnummer
25/37376
Fase
Under behandling

Om byggesaken

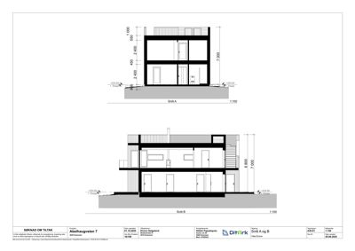
Ny enebolig på 146 m² BRA fordelt på to etasjer med flatt tak og stor takterrasse på 71 m². Første etasje inneholder gang, tre soverom, to bad, vaskerom, garderobe og sportsbod. Andre etasje har åpen stue/kjøkkenløsning, to soverom/kontor, bad og forrom. Bygget har moderne uttrykk med store vindusflater, tre som fasademateriale og flatt tak, samt pipe. Det etableres tre parkeringsplasser på terreng og to i eksisterende garasje. Eksisterende uthus og garasje rives. Tomten er på 1347,5 m² med uteoppholdsareal på 220 m² på bakkenivå. Terrenginngrep med planering og støttemur planlegges. Prosjektet er under behandling med utfordringer knyttet til dispensasjon for takterrasse.

Produkter og materialer

Elektro Belysning og elektriske installasjoner

Elektriske installasjoner for bolig

Tak Flatt tak med takterrasse

🧱 Membran og isolasjon egnet for takterrasse

Antall: 1

Flatt tak med 71 m² takterrasse med tett rekkverk 1 m høyde

Tak med membran og isolasjon tilpasset takterrassebruk

Grunnarbeid Terrengplanering og støttemur

🧱 Fjellskrent eller støttemur inntil 1 m høyde

Planering av tomt for parkeringsplasser, støttemur flyttet fra nabogrense

Terrenginngrep for opparbeidelse av parkeringsplasser og uteområder

Maling Innvendig og utvendig maling

Maling av innvendige flater og utvendig trepanel

Vinduer Store fasadevinduer

🧱 Tre med 3-lags energiglass

Antall: 14

Store vindusflater i stue, 3 vinduer i stue 1.etg og 2.etg, 1 vindu i hvert soverom

Vinduer for god dagslysinnslipp og utsikt, energiglass for isolasjon

Trapper Innvendige trapper og utvendig trapp til takterrasse

🧱 Tre eller betong med rekkverk

Antall: 2

Innvendig trapp mellom etasjer og utvendig trapp til takterrasse

Trapper for intern kommunikasjon og tilgang til takterrasse

Parkeringsplass Uteparkering på terreng

Antall: 3

Tre parkeringsplasser på terreng innenfor regulert byggegrense

Opparbeidelse av parkeringsplasser på tomt

Garasjeport Eksisterende garasjeport

Antall: 1

To parkeringsplasser i eksisterende garasje, garasjeport ikke spesifisert

Garasjeport til eksisterende garasje som beholdes

Fasade Trepanel

🧱 Tre

Tre som fasademateriale på alle fasader

Trepanel som fasadekledning for moderne uttrykk

Dører Ytterdører og balkongdører

🧱 Tre eller aluminium med glass

Antall: 10

Dører til utgang fra stue, balkong og sportsbod

Ytterdører og terrassedører for utgang til hage og balkong

Rekkverk Takterrasse rekkverk

Tett rekkverk 1 meter høyde på takterrasse

Sikkerhetsrekkverk rundt takterrasse

Terrasse Markterrasse

Markterrasse med utgang fra gang i 1.etasje

Uteoppholdsareal på bakkenivå

VVS Vaskerom og bad installasjoner

Vaskerom 4,6 m², to bad på 10 m² og 5,8 m² med sanitærutstyr

Sanitærinstallasjoner for vaskerom og bad

Gulv Innvendige gulvflater

Gulv i alle rom, antatt parkett/fliser i våtrom

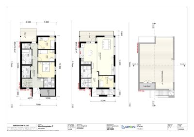
Plantegning

Enebolig 145.6 m²

Etasje 1 72.8 m²

Rom Areal Vinduer Dører
Stue 101 47.2 m² 3 2
Sov1 102 12.1 m² 1 1
Sov2 103 9.0 m² 1 1
Sov3 104 9.2 m² 1 1
Gang 105 19.5 m² 0 0
Bad 106 10.0 m² 0 1
Vaskerom 107 4.6 m² 0 1
Gard 108 4.5 m² 0 1
Sportsbod 109 5.0 m² 0 1

Etasje 2 72.8 m²

Rom Areal Vinduer Dører
Stue/Kjøkken 201 47.2 m² 3 1
Sov4 202 12.1 m² 1 1
Sov4/Kontor 203 8.1 m² 1 1
Forrom 204 5.3 m² 0 1
Bad 205 5.8 m² 0 1

Fasader

Villa Eivinn

Nord
Materiale
Tre
Taktype
Flatt tak
Høyde
6.5 m
Mønehøyde
9.0 m
Vinduer
5
Dører
1
Balkonger
1
Synlige etasjer
2
Vest
Materiale
Tre
Taktype
Flatt tak
Vinduer
2
Dører
1
Balkonger
1
Synlige etasjer
2
Sør
Materiale
Tre
Taktype
Saltak
Høyde
6.5 m
Mønehøyde
8.7 m
Vinduer
2
Dører
1
Balkonger
1
Synlige etasjer
2
Øst
Materiale
Tre
Vinduer
1
Dører
1
Synlige etasjer
2

Hendelser

15.04.2026 Abelhaugveien 7, anmodning om fristutsettelse
26.03.2026 Abelhaugveien 7, vi vurderer å avslå søknaden din
05.03.2026 Abelhaugveien 7, oversendelse av dokumentasjon i forbindelse med nabovarsler
13.02.2026 Abelhaugveien 7 Supplering av søknad 16/189
16.12.2025 Abelhaugveien 7, utsettelse av frist
12.12.2025 Abelhaugveien 7, anmodning om utsettelse av frist
12.11.2025 Abelhaugveien 7 Supplering av søknad 16/189
30.10.2025 Abelhaugveien 7, vi vurderer å avslå søknaden din
16.10.2025 Abelhaugveien 7 Søknad om rammetillatelse 16/189